Alvim Kindergarten by Øyvind Johnsen Arkitektur, Sarpsborg, Norway
A modest kindergarten blending local identity, efficient design, and child-centered spaces, creating a safe, warm, and socially meaningful learning environment.
Alvim Kindergarten by Øyvind Johnsen Arkitektur is a modest yet impactful educational project located in Sarpsborg, Norway. Designed as both an extension and renovation of an existing 1970s structure, the project responds to pressing social needs in the Alvim district, an area characterized by limited childcare facilities and a high proportion of low-income families. Within tight budget and time constraints, the building was completed in just one year, demonstrating how efficient design can still deliver meaningful architectural quality.

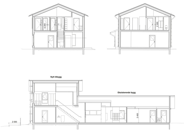
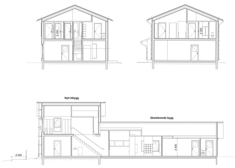
The project introduces a two-storey extension that stands in deliberate contrast to the original single-storey building. Slightly offset from the existing structure, the new volume establishes its own identity while maintaining a respectful relationship with its context. This duality, between continuity and distinction, becomes a defining characteristic of the design.


Externally, the kindergarten draws inspiration from local architectural traditions. Clad in vertical timber boards and painted in a deep barn red, the building references the familiar palette of Norwegian rural landscapes, where red barns and white timber houses dominate. This choice allows the kindergarten to stand out as a public building while remaining rooted in cultural memory.

The roof, finished with flat red clay tiles, reinforces this contextual dialogue while introducing a contemporary interpretation. A timber trellis on the gable adds a layer of generosity and future transformation. Designed to support climbing plants, the façade will gradually evolve into a living surface, connecting architecture with seasonal change and nature.


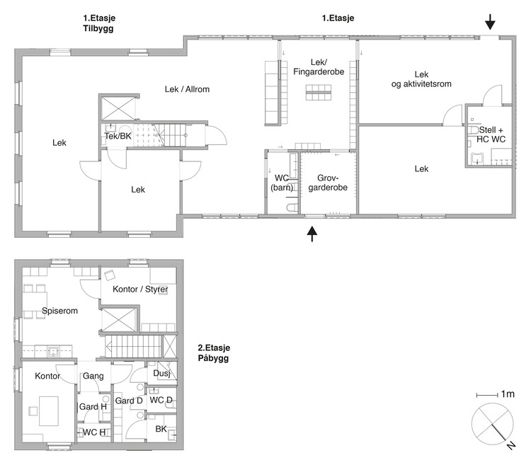
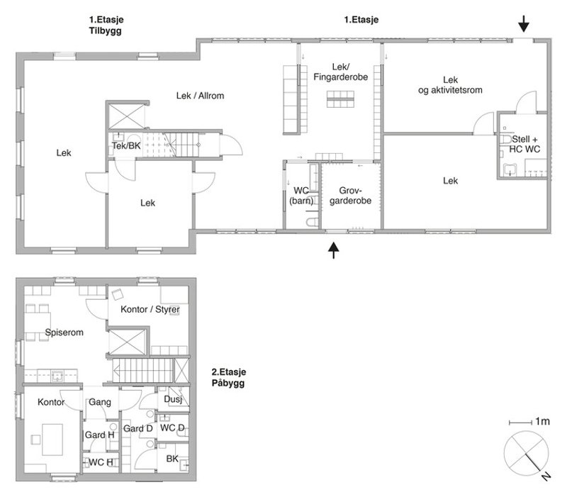
Internally, the design focuses on maximizing usable space and creating a nurturing environment for children. Compact planning ensures that play areas are prioritized, while large windows with low sills allow children to engage with the outside world from their own perspective. This human-centered approach enhances both comfort and curiosity.


Material and color choices contribute to a calm and balanced atmosphere. Neutral gray walls provide a subtle backdrop, allowing the vibrancy of children’s activities: artwork, toys, and movement, to define the space. Wood elements introduce warmth and tactility, reinforcing a sense of comfort and familiarity.

The central playroom is designed with a higher ceiling and exposed structural elements, creating spatial variation and a sense of openness. Natural light is carefully integrated, while acoustic ceilings with built-in lighting ensure a comfortable and functional indoor environment.


The second floor accommodates staff facilities and meeting areas, supporting the operational needs of the kindergarten. Accessibility is addressed through the inclusion of a lift platform, ensuring that all users: children, staff, and visitors, can navigate the building with ease.

The outdoor environment is equally important. The site layout was reorganized to improve safety and usability, with drop-off zones relocated to avoid traffic conflicts and the main playground positioned away from nearby roads. Play elements such as sand pits and climbing structures are placed in calmer areas, creating a safe and engaging environment for children.
Beyond its physical attributes, Alvim Kindergarten embodies architecture with social value. It demonstrates how even small-scale projects can make a significant impact when guided by thoughtful design decisions. By balancing economy, identity, and functionality, the project provides not only a place for learning but also a sense of dignity and care for its community.

Ultimately, Alvim Kindergarten is a testament to the power of architecture to address everyday needs with clarity and purpose. It shows that meaningful design does not depend on scale or budget, but on the ability to respond sensitively to people, place, and context.

All the Photographs are works of Carlos Rollan, Mathilde Nordhaug
Popular Articles
Popular articles from the community
20 Most Popular Commercial Architecture Projects of 2025
From sustainable market concepts to heritage factories, the commercial buildings and proposals that drew the most attention on uni.xyz this year.
Split House: A Compact Urban Home Blending Privacy, Light, and Flexible Living in Japan
Compact Japanese home featuring DOMA space, flexible café potential, passive lighting, privacy zoning, and sustainable urban living design.
Rede Arquitetos Builds an Open-Air School in Fortaleza That Doubles as a Neighborhood Living Room
Educar II SESC-CE folds sports, dance, and community gathering into a courtyard campus wrapped in mesh and tropical color.
Similar Reads
You might also enjoy these articles
20 Most Popular Commercial Architecture Projects of 2025
From sustainable market concepts to heritage factories, the commercial buildings and proposals that drew the most attention on uni.xyz this year.
Free Architecture Competitions You Can Enter Right Now
No entry fees, real prizes. Here are the best free architecture competitions open for submissions in 2026.
Top 15 Architecture Competitions to Enter in 2026
From student-friendly idea competitions to prestigious international awards, here are the best architecture competitions open for entries in 2026. Updated regularly.
DIY & Engineering in Computational Design : Enter the BeeGraphy Design Awards
Showcase Your Creativity with Computational Design and Open Source Projects
Explore Architecture Competitions
Discover active competitions in this discipline
The International Standard for Design Portfolios
The Global Benchmark for Architecture Dissertation Awards
The Global Benchmark for Graduation Excellence
Challenge to design public laboratory
Comments (0)
Please login or sign up to add comments
No comments yet. Be the first to comment!