Sustainable Tropical House Design: Inside Mentari House by Axial StudioSustainable Tropical House Design: Inside Mentari House by Axial Studio

Sustainable Tropical House Design: Inside Mentari House by Axial Studio

UNI EditorialUNI Editorial
UNI Editorial published Story under Architecture on Dec 7, 2024

Mentari House, completed in early 2023, is a stunning architectural achievement by Axial Studio. Located in Tangerang, Banten, Indonesia, this 600 m² residence is set on a prominent corner lot and designed to harmonize privacy, natural light, and airflow. With its thoughtful design catering to a family with two children, Mentari House exemplifies a sustainable approach to modern tropical living.

Thoughtful Zoning and Layout

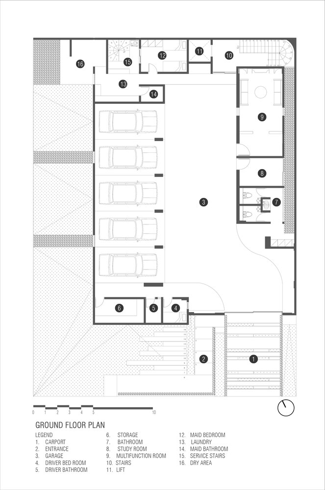
The home features distinct functional zones across its multiple levels. The ground floor is dedicated to service areas and a garage, ensuring practical functionality without compromising the home’s aesthetic appeal.

On the first floor, communal spaces such as the living room and other public zones create a warm and inviting environment for family interaction and social gatherings. The second floor serves as a private retreat, housing the bedrooms to ensure tranquility and personal space.

Atop the house, the rooftop is transformed into a multifunctional area, accommodating a workspace and gym. This elevated vantage point provides stunning panoramic views, adding an element of leisure and inspiration to the residence.

Sustainability in Design

Mentari House stands out as a prime example of sustainable tropical architecture. It incorporates a "second skin" on its western facade, which acts as a dynamic barrier against the harsh sunlight. This feature is not only functional but also adjustable, allowing residents to control sunlight penetration and temperature effectively.

The home embraces cross ventilation, strategically integrating large operable windows and open floor plans to maximize airflow. This natural cooling system significantly reduces the need for artificial air conditioning, making it environmentally friendly and energy-efficient.

Additionally, the design ensures each room is bathed in natural sunlight. Laminated glass windows minimize heat while maintaining clear views and brightness. The integration of gardens and open spaces further enhances ventilation and adds a refreshing aesthetic touch to the home.

Elevated Privacy and Comfort

Mentari House’s elevated main floor is a strategic design choice that enhances privacy. By raising the living spaces above ground level, the house is shielded from direct views from the main road, creating a secluded and tranquil environment.

Despite its elevated position, the house maintains an airy and well-lit atmosphere. Large windows and open layouts ensure that natural light and ventilation permeate every corner of the living spaces.

Blending Form and Function

The architectural design of Mentari House seamlessly blends form and function, offering a modern tropical retreat that adapts to its environment. The second skin facade not only provides sun protection but also adds a dynamic aesthetic element to the building.

Inside, the open-plan layout and sustainable features prioritize comfort and efficiency. The home’s material palette and design reflect the essence of tropical modernism, combining elegance with practicality.

A Model for Tropical Living

Mentari House by Axial Studio serves as an exemplary model for sustainable tropical house design. With its innovative features, thoughtful layout, and eco-friendly approach, the residence redefines modern living in a tropical context. It stands as a testament to the power of architecture to enhance both the quality of life and environmental harmony.

All Photographs are work of Mario Wibowo Photography

UNI EditorialUNI Editorial

UNI Editorial

Where architecture meets innovation, through curated news, insights, and reviews from around the globe.

UNI EditorialUNI Editorial
Search in