Transforming Design Limitations into Creative Solutions: A Stunning Apartment Design with a Cat-Friendly Twist
Weaving Space Between Cats and Clients: A Creative Design for a Historic Apartment
Apartment design is a challenging task that requires balancing various factors such as the client's needs, the space available, and the existing furniture. A recent project undertaken by a team of architects showcases the successful weaving of space between a client and their two cats, as well as new and existing furniture.

Located in the dormitory area of Tiantan Biological Products Co., Ltd, the building is a historic structure built with brick-concrete in 1982, making it challenging to adjust the special layout. However, the architects were tasked with respecting the historic building and the existing furniture while turning design limitations into design material.


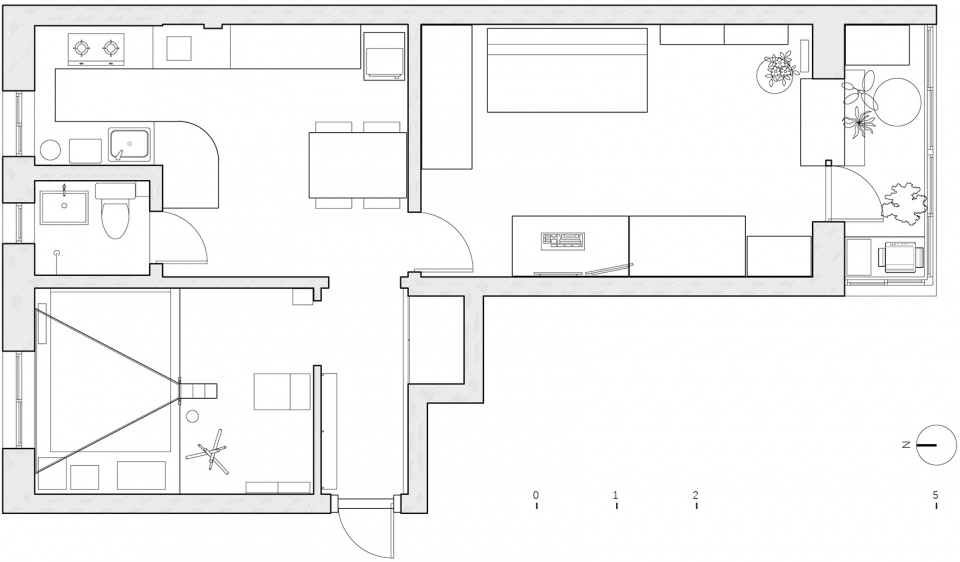
The core space was designed to weave between the client and cats as well as live and work. The combination of cat's tent and bed splits the bedroom into two rooms, a bedroom and "living room." The cat's tent is placed between the window and living room, connecting the two spaces with a vertical and horizontal opening.


The hallway and dining room were painted gray to emphasize the public area, with a cantilevered stainless steel shelf on the left side and the original wall covered with 10mm thickness polycarbonate hollow sheet on the right side. This treatment on both sides helps avoid the sense of oppression caused by the narrow corridor due to renovation and utilization.



The existing counter, furniture, and new cabinets were organized by a U-shaped countertop, contributing to the strong spatial characteristic and order for the dining room. The architects deliberately kept the pillar of the stainless shelf away from the adjacent cabinets to connect the cabinet in the kitchen and sideboard organically.




One of the challenges was storing items that the owner wanted to keep, such as the three sliding doors in the kitchen and the wooden door of the bedroom. The architects used the size difference between the existing sideboard and the countertop to create a 100mm cavity to store the sliding doors.



After removing two sliding windows on the inner wall of the balcony, the architects transformed the windowsill into a bar counter for active and flexible use. The construction of the bar top continued the principle of not destroying the existing house, using flat steel and inverted tapered fulcrums to support it and anchored by the original screw used to anchor the window.



In constructional design, each component only needed to drill one screw hole on the painted wall, resulting in only 10 holes in the wall to complete the renovation of the entire house.
Overall, this project showcases how design limitations can be turned into design material by weaving space and furniture to create a balanced and functional living and working space for the client and their cats.



Project type: interior refurbishment
Design: Beyondtime Architects
Website: https://www.world-architects.com/en/beyondtime-architects-chaoyang-district-beijing
Contact e-mail: qunsun.bta@foxmail.com
Design year: 2022
Completion Year: 2023
Leader designer & Team: Qun Sun, Dongping Sun
Project location: Beijing
Gross built area: 60㎡
Photo credit: BTA
Clients: Private
Materials: stainless steel sheet, wall painting, wood painting, polycarbonate hollow sheet, fabric, brich plywood
Brands:Jordan, sanqing