The Dirty Harry Residential Building by NEUME: Redefining Urban Living in Basel
The Dirty Harry residential building by NEUME in Basel showcases innovative, sustainable urban living through cooperative housing and thoughtful architectural design.
In the vibrant district of St. Johann in Basel, Switzerland, the Dirty Harry residential building stands as a testament to innovative urban living. Designed by the architectural firm NEUME, this unique structure marries the need for personal living spaces with a collective approach, embodying a new vision for cooperative housing. Completed in 2022, this 970 m² building not only addresses the essential needs of its residents but also exemplifies sustainable design practices through the strategic use of materials and thoughtful urban planning.


Context and Urban Integration
Located near the French border, Dirty Harry occupies a former warehouse area previously owned by a trading company. This setting is significant, as it situates the building within a rich historical and industrial context, which NEUME has cleverly integrated into their design. The building forms part of an urban block with a free inner courtyard, providing both privacy and community space for residents.



Architectural Design and Materials
The exterior of Dirty Harry is marked by its use of raw, sustainable materials, including clay bricks, concrete, and wooden roller shutters. These materials not only ensure durability but also contribute to the building's aesthetic appeal. The facade, with its vertical arrangement of high-rectangular windows and aluminum guide rails, emphasizes the building's height and gives it a distinctive look. The use of large wooden frame windows and the vibrant color of the clay bricks add warmth and character to the structure.


A noteworthy feature is the four-story-high bay window, which creates an inviting entrance and adds a dynamic element to the building's urban façade. This bay window is not just an aesthetic choice but also a functional one, enhancing the interior space and light distribution.

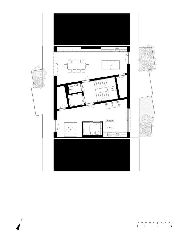
Interior Layout and Functionality
Inside, the building houses eleven apartments spread across five regular floors and a recessed top floor. These apartments vary in size, offering between 2.5 to 4.5 rooms, and are designed to be adaptable through the use of switching rooms. This flexibility caters to diverse resident needs and promotes a sense of individuality within the collective living model.



The interior design emphasizes the use of natural materials, with exposed concrete, Birchwood surfaces, and clay bricks creating a harmonious blend of hardness and warmth. Full-height Birchwood surfaces, slightly offset from the ceiling and floor, serve as room dividers and doors, contributing to a seamless flow within the apartments. Built-in installations ensure that space is utilized efficiently, with no wasted areas.

Sustainable Design and Community Living
NEUME's approach to sustainability is evident in their deliberate choice of materials and the building's energy-efficient design. The use of clay bricks and exposed concrete not only provides thermal mass but also reduces the need for artificial heating and cooling. The building's sun protection system, provided by Mensch Rolladen, further enhances its energy efficiency by minimizing heat gain during the summer months.



The cooperative housing model promoted by Dirty Harry is a response to the anonymity often associated with urban living. By fostering a sense of community and solidarity, this model encourages residents to engage with one another, share resources, and support each other. The top floor's commercial kitchen and rooftop terrace are prime examples of shared spaces designed to enhance communal living.


The Dirty Harry residential building by NEUME is a pioneering example of how architecture can address contemporary urban living challenges. By combining sustainable design practices with a cooperative housing model, NEUME has created a space that not only meets the basic needs of its residents but also fosters a sense of community and belonging. This innovative approach to housing serves as a blueprint for future residential developments, demonstrating that thoughtful design and community-oriented living can coexist harmoniously in the urban landscape.








All photographs are work of Daisuke Hirabayashi
Popular Articles
Popular articles from the community
Filtering Space: A Gradual Spatial Experience
From urban intensity to spatial calm.
Rede Arquitetos Builds an Open-Air School in Fortaleza That Doubles as a Neighborhood Living Room
Educar II SESC-CE folds sports, dance, and community gathering into a courtyard campus wrapped in mesh and tropical color.
20 Most Popular Commercial Architecture Projects of 2025
From sustainable market concepts to heritage factories, the commercial buildings and proposals that drew the most attention on uni.xyz this year.
Similar Reads
You might also enjoy these articles
Scientific and Educational Monitoring Center of the Yenisei, Krasnoyarsk
Architecture as an instrument for ecological research, education, and environmental awareness along Russia’s largest river.
Development of Andretta Artist’s Village, Palampur, Himachal Pradesh, India
Reimagining Andretta as a living cultural landscape where art, architecture, and community converge to shape a global creative village.
Street Children Rehabilitation Center: A Model of Social Architecture for Community Rehabilitation
An inclusive social architecture project that transforms streets into nurturing environments, restoring dignity, identity, and opportunity for vulnerable children.
The NEON Culture: Experiential Architecture Shaping Contemporary Urban Life
Exploring how experiential architecture responds to accelerated lifestyles through immersive spaces, adaptive programs, and sensory-driven urban design.
Explore Residential Building Competitions
Discover active competitions in this discipline
The Global Benchmark for Architecture Dissertation Awards
Challenge to design mud housing for contemporary communities
Comments (0)
Please login or sign up to add comments
No comments yet. Be the first to comment!