The Nomadic 5.0: Lotta Cangsong Store Renovation by Ruhaus Studio
The article details Ruhaus Studio's innovative renovation of Lotta Cangsong Store, transforming a compact 10 m² coffee shop in Shenzhen.
Nestled in the bustling streets of Shenzhen, China, the Lotta Cangsong Store has been a hallmark of boutique street coffee culture since its inception in 2017. Undergoing a transformative renovation in 2023 by Ruhaus Studio, this coffee shop exemplifies innovative design within an extremely compact space of just 10 square meters. This renovation project, coined Nomadic 5.0, is a testament to Ruhaus Studio's creative approach to urban retail spaces, pushing the boundaries of functionality and aesthetic within limited confines.

Background and Concept
Lotta Cangsong, with its name derived from the Italian word for "battle," embodies the spirit of perseverance and adaptation. This ethos is reflected in the renovation process led by Ruhaus Studio, which began as a gradual exploration of spatial and product possibilities and swiftly accelerated due to the need for equipment updates. The resulting design is a culmination of continuous reflection and bold decision-making.


Ultimate Space Utilization
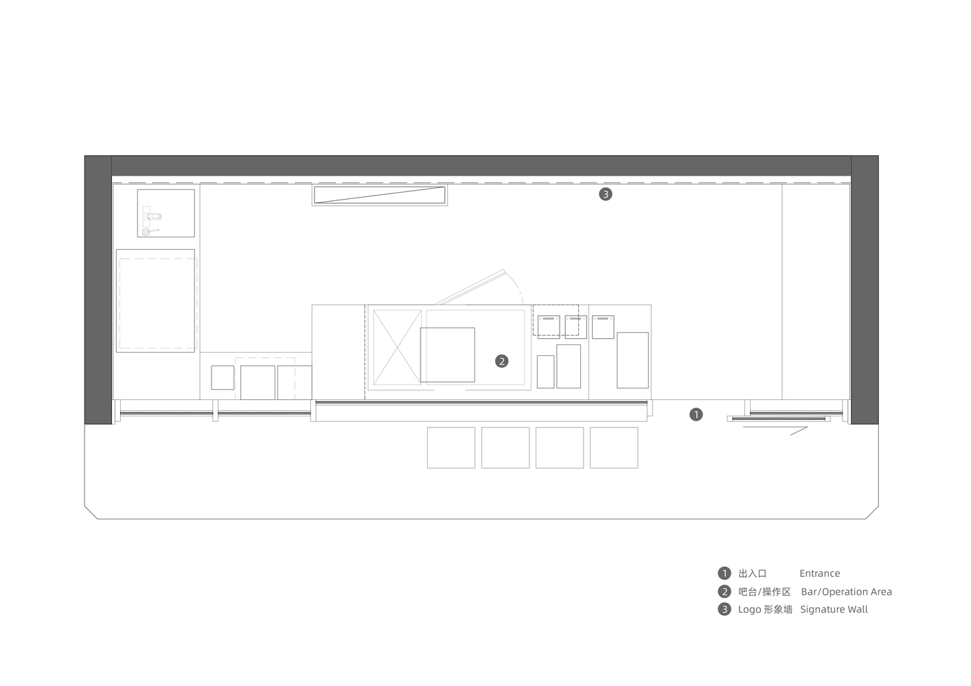
The primary challenge of the renovation was the coffee shop's minimal dimensions—5.3 meters in width and 1.8 meters in depth. To maximize the usability of this space, the design transcended traditional two-dimensional layouts. Instead, a three-dimensional approach was employed, utilizing a framework system that integrated facade language and suspension devices. This allowed for expanded temporary storage solutions and optimized the interior for various coffee-making processes.
Key Features:
- Three-Dimensional Design: Incorporation of vertical space for storage and display.
- Framework System: Structural elements that support both aesthetic and functional purposes.
- Indoor Seating: Four seats were included to provide comfort during Shenzhen's hot and rainy seasons.

Interactive Facade
One of the standout elements of the renovation is the interactive facade. Designed to maximize external visibility, it features simple yet striking visual displays framed by viewfinders. This approach not only enhances brand visibility but also creates an engaging customer experience. The bar counter, with the coffee machine facing customers, fosters interaction by allowing patrons to observe the coffee-making process up close.


Prefabricated Assembly
Efficiency was paramount in the renovation process. Leveraging the concept of prefabricated assembly, much of the construction work was completed off-site. This included the procurement, cutting, and assembly of components, which were then swiftly installed on-site over a span of just seven days. The renovation was executed in shifts, ensuring the coffee shop remained operational throughout the process. This method set a new benchmark for quick and effective store renovations.

Functional Props and Node Design
Custom-designed stools exemplify the multifunctional nature of the space. These stools can be used in a high-bar mode for casual interaction with baristas or placed horizontally to create a relaxed, street-side seating ambiance. Additionally, the renovation features unique blue structural connectors that add a playful element to the design and serve as subtle brand identifiers.


The Nomadic Series
The Nomadic 5.0 project is part of Ruhaus Studio's broader Nomadic Series. This design language emerged in response to the evolving consumer landscape, aiming to create adaptable and resilient retail environments. Each project within the series is characterized by thorough research and development, ensuring a harmonious balance between design precision, quality, and cost-efficiency.

The Lotta Cangsong Store renovation is a remarkable example of how innovative design can transform even the smallest of spaces into functional and aesthetically pleasing environments. Ruhaus Studio's approach not only addressed the immediate needs of the coffee shop but also set a precedent for future urban retail designs. The Nomadic 5.0 project stands as a beacon of creativity and practicality, inspiring future iterations of compact commercial spaces.




All Photographs are the work of Sanif, Tong Xia
Popular Articles
Popular articles from the community
Atelier Macri Concept Store Interior Design by CASE-REAL
Atelier Macri store features a "ko" counter, walnut wood details, cork displays, blending retail, gallery, and seamless customer experiences.
Solar Steam: A Climate-Responsive Architecture That Redefines the Monument
A climate-responsive memorial architecture that transforms heat, decay, and time into a living system reflecting humanity’s ecological impact.
Louis Malle Cinema: A Limestone Cultural Landmark Revitalizing Community Life in Prayssac
Limestone cinema extension with public forecourt, blending heritage and modern design to create flexible cultural spaces and strengthen community interaction.
Treehouse Apartment: A Warm Timber Interior Blending Craft, Play, and Contemporary Living
Warm timber apartment with integrated treehouse, combining natural materials, craftsmanship, and playful design to create a flexible, family-oriented living environment.
Similar Reads
You might also enjoy these articles
Scientific and Educational Monitoring Center of the Yenisei, Krasnoyarsk
Architecture as an instrument for ecological research, education, and environmental awareness along Russia’s largest river.
Development of Andretta Artist’s Village, Palampur, Himachal Pradesh, India
Reimagining Andretta as a living cultural landscape where art, architecture, and community converge to shape a global creative village.
The NEON Culture: Experiential Architecture Shaping Contemporary Urban Life
Exploring how experiential architecture responds to accelerated lifestyles through immersive spaces, adaptive programs, and sensory-driven urban design.
Narwall: Autonomous Offshore Architecture for Extreme Environments
A visionary model of sustainable offshore architecture, Narwall redefines public life, energy autonomy, and resilience in extreme Arctic waters.
Explore Interior Design Competitions
Discover active competitions in this discipline
The Global Benchmark for Architecture Dissertation Awards
Challenge to design luxury tourism on rails
VR headsets Storefront design competition
Designing a staircase for a client
Comments (0)
Please login or sign up to add comments
No comments yet. Be the first to comment!