Wisteria House: A Harmony of Heritage and Modernity
Wisteria House blends historic preservation with modern design, creating a harmonious family home that connects deeply with its outdoor environment.
In the heart of Summer Hill, Australia, Wisteria House by Carter Williamson Architects stands as a testament to the harmonious blend of historic preservation and contemporary design. This architectural marvel seamlessly integrates a fully restored Federation bungalow with a striking modern addition, creating a family home that is as functional as it is beautiful. With a generous area of 304 square meters, Wisteria House exemplifies a thoughtful approach to design, merging past and present to foster a deep connection with the outdoors.


Architectural Vision
The design brief for Wisteria House was clear: create a warm, open home that respects the historical integrity of the existing structure while introducing modern elements that enhance livability. Located in a heritage conservation area, the architects faced the challenge of balancing these requirements delicately. The result is a light, airy pavilion constructed primarily from Victorian ash, offering a rhythmic expression of contemporary design that pays homage to its heritage context.



The Design and Structure
Exterior and Form
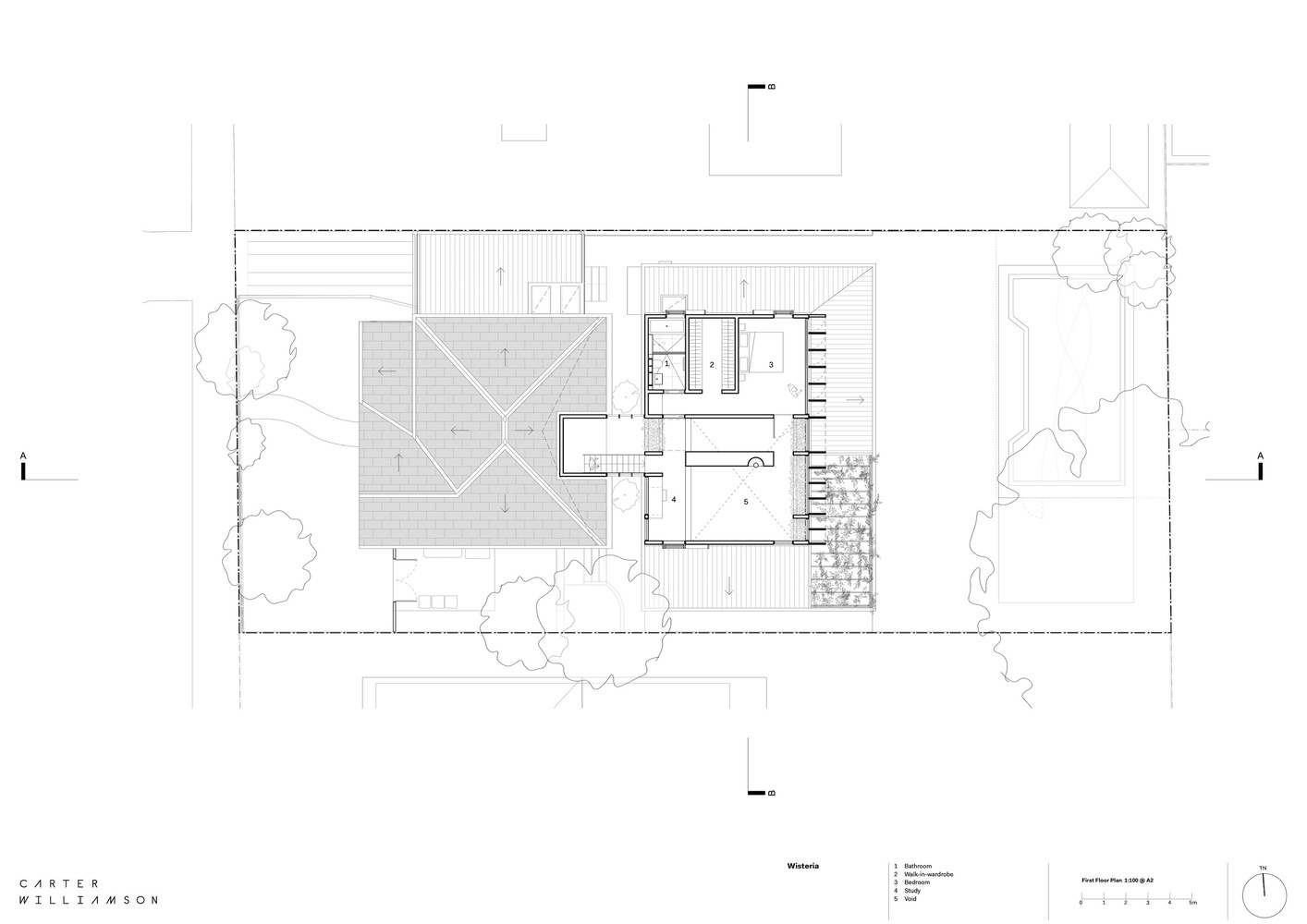
Wisteria House’s exterior showcases a dramatic timber expression, characterized by its expansive form that captures and diffuses sunlight. The addition is a pavilion-like structure that unfolds from the original Federation bungalow, establishing a clear distinction between the old and the new. This junction is not only a visual marker but also a functional one, helping the house adapt to its sloping site. The new volume is a double-height space, wrapped in timber, fixed glazing, and adjustable louvers, promoting cross-ventilation and a seamless connection to the landscape.




Interior Layout
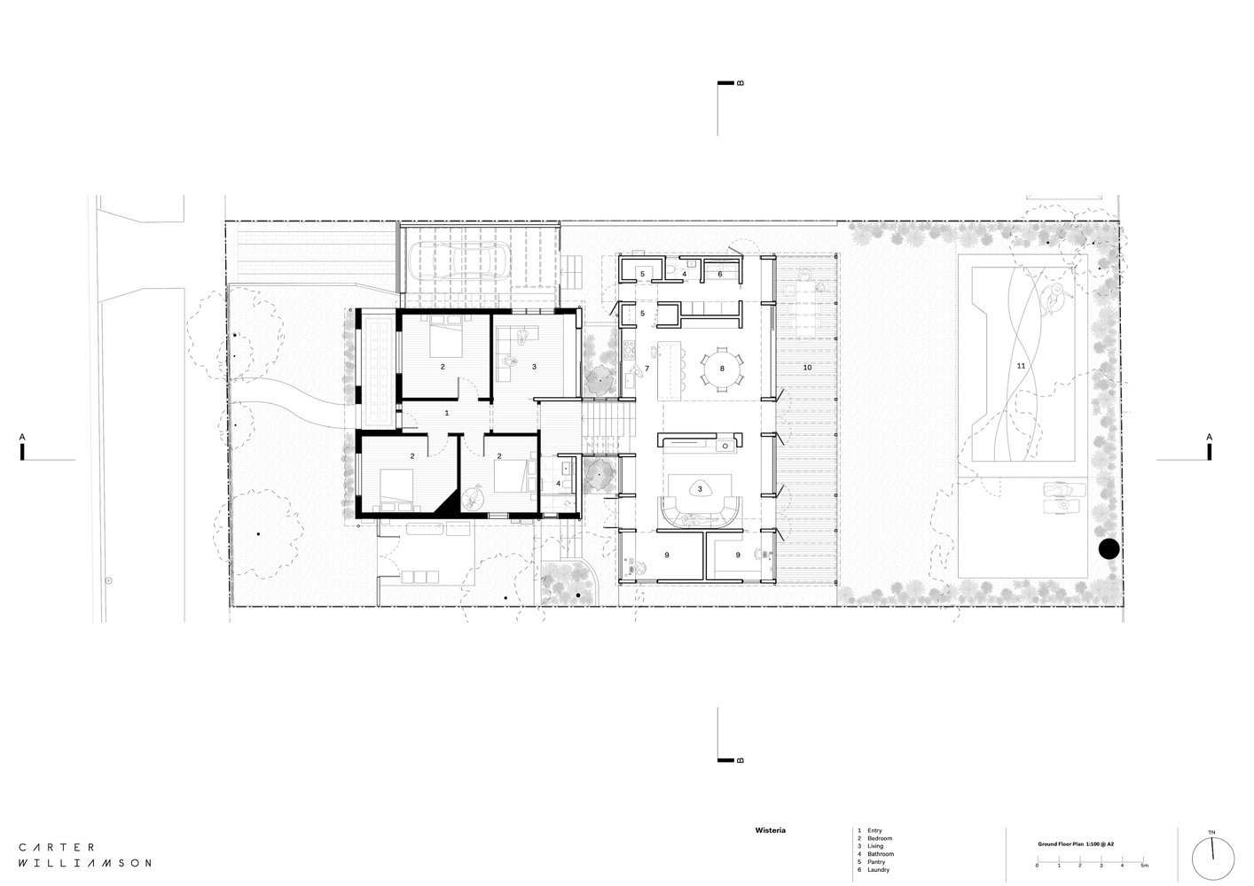
The interior of Wisteria House is designed to maximize natural light and air flow. A double-height void in the living area enhances the sense of openness, connecting the private upstairs spaces with the communal areas below. This central space features a fireplace that serves as a focal point, dividing the open-plan living, kitchen, and dining areas. The living spaces extend onto an east-facing deck, sheltered by a pergola adorned with wisteria, which frames views of the garden and offers a perfect setting for outdoor entertaining.



Materiality and Details
Palette and Textures
The material palette of Wisteria House is a sophisticated blend of timber, polished concrete, and steel, punctuated by moments of marble. This combination creates a clean, modern aesthetic that retains a sense of warmth and calm. The use of timber is particularly noteworthy, not only for its visual appeal but also for its environmental benefits and ability to create a connection between the indoor and outdoor spaces.





Custom Features
Custom features such as deep window reveals equipped with timber blades and shutters allow for control over sunlight and ventilation, essential for maintaining comfort in Sydney’s climate. These elements also serve a functional purpose, providing additional spaces for desks, window seats, and storage, enhancing the home's usability.


Connection to the Outdoors
A key element of the design is its strong connection to the garden, which is vital for transforming a house into a home. The garden, lush with wisteria and jacaranda, plays a crucial role in the overall aesthetic and ambiance of the house. Small gardens flanking the stairwell and light wells sandwiched between the new and old structures encourage natural light and breezes to permeate throughout the home, creating a serene and inviting environment.


Sustainability and Environmental Considerations
Wisteria House is not just about visual appeal; it also incorporates sustainable design principles. The use of timber, a renewable resource, and the integration of passive cooling strategies through adjustable louvers and cross-ventilation demonstrate a commitment to environmental responsibility. These features reduce the need for artificial heating and cooling, lowering the home’s overall energy consumption.


Wisteria House by Carter Williamson Architects is a remarkable example of how contemporary design can enhance and coexist with historical architecture. This project respects the heritage of the original Federation bungalow while introducing modern elements that improve functionality and livability. Through its thoughtful design, material choices, and strong connection to the outdoors, Wisteria House provides a warm, inviting, and sustainable family home that celebrates both its past and its future.



All Photographs are the work of Pablo Veiga



By marrying simplicity with sophistication, and tradition with innovation, Wisteria House not only meets but exceeds the expectations of a modern family dwelling, ensuring it remains a cherished home for generations to come.
Popular Articles
Popular articles from the community
Solar Steam: A Climate-Responsive Architecture That Redefines the Monument
A climate-responsive memorial architecture that transforms heat, decay, and time into a living system reflecting humanity’s ecological impact.
Flamboyant House by Juliana Camargo + Prumo Projetos
Modern Brazilian house integrating existing tree, pool, and volumes with glass, wood, and transitional spaces blending interior, exterior, and landscape seamlessly.
Atelier Macri Concept Store Interior Design by CASE-REAL
Atelier Macri store features a "ko" counter, walnut wood details, cork displays, blending retail, gallery, and seamless customer experiences.
Treehouse Apartment: A Warm Timber Interior Blending Craft, Play, and Contemporary Living
Warm timber apartment with integrated treehouse, combining natural materials, craftsmanship, and playful design to create a flexible, family-oriented living environment.
Similar Reads
You might also enjoy these articles
The Ken Roberts Memorial Delineation Competition (Krob)
As the most senior architectural drawing competition currently in operation anywhere in the world, it draws hundreds of entries each year, awarding the very best submissions in a series of medium-based categories.
A Contemporary Take on Iranian Residential Architecture
A modern interior design in Mashhad that reinterprets brick, light, and spatial flow to create a warm, contemporary residential architecture.
Franche-Comté Advanced School of Engineering by Dominique Coulon & associés, Besançon
A flexible engineering school immersed in woodland, combining concrete minimalism, adaptable spaces, and natural light to support evolving educational environments.
Waterfront Redevelopment and Urban Revitalization in Mumbai: Forging a New Dawn for Darukhana
A transformative waterfront redevelopment project reimagining Darukhana’s shipbreaking heritage into an inclusive urban future.
Explore Residential Building Competitions
Discover active competitions in this discipline
The Global Benchmark for Architecture Dissertation Awards
Challenge to design mud housing for contemporary communities
Comments (0)
Please login or sign up to add comments
No comments yet. Be the first to comment!