Alvear AV Residence Architecture: A Harmonious Blend of Design and Nature
The Alvear AV Residence showcases sustainable residential architecture, integrating modern design with lush greenery and community-oriented spaces.
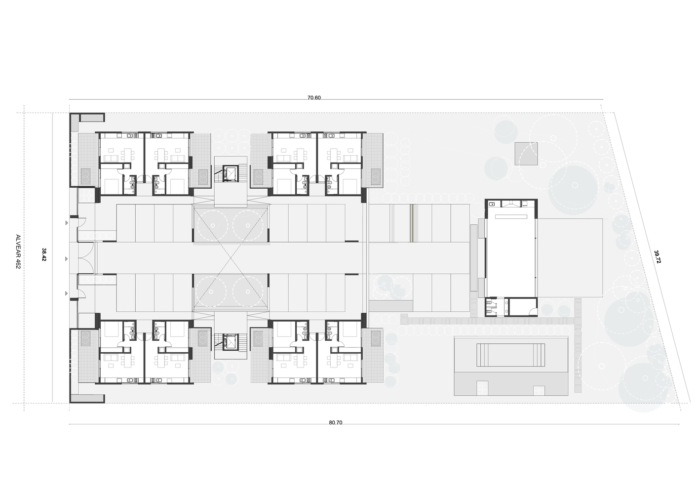
The Alvear AV Residence, designed by Estudio V2 Arquitectos, is a testament to modern residential architecture that seamlessly integrates with its natural surroundings. Located in City Bell, Argentina, this project sits on a sprawling 3,000 m² plot, blending contemporary design with lush vegetation in a serene residential area. Completed in 2022, the residence balances aesthetic appeal with functional living spaces, fostering a harmonious connection between its inhabitants and the environment.



Context and Site Design
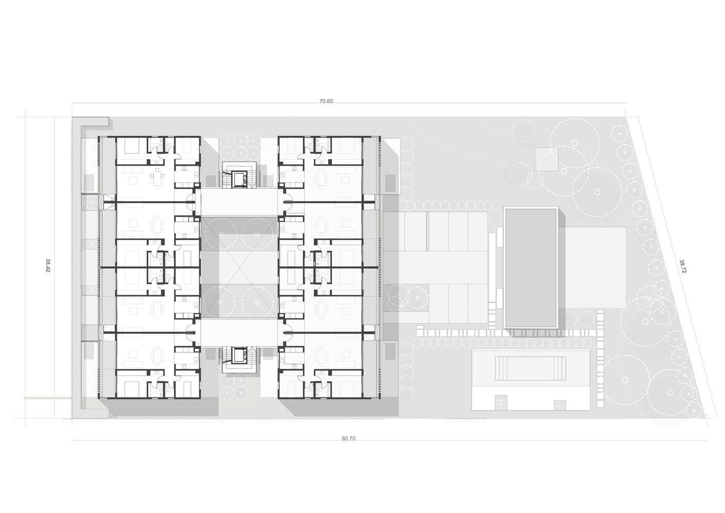
Situated on a site formed by the union of two adjacent plots, the Alvear AV Residence benefits from an expansive 40-meter frontage and a 75-meter depth. This generous space allowed the architects to organize the project into two distinct volumes centered around a green patio. This central courtyard serves as a unifying element, connecting the common areas while providing a tranquil oasis for relaxation and interaction.



Architectural Layout
The two volumes are strategically connected by semi-covered pedestrian walkways, offering fluid circulation while maintaining visual contact with the surrounding greenery. The ground floor functions as a multifunctional open space, accommodating vehicular access, covered parking, and pedestrian entrances to the individual homes. This thoughtful layout ensures an efficient flow of movement while prioritizing the visual and physical integration of the building with its environment.





Common Areas and Shared Spaces
At the heart of the residence lies a collection of thoughtfully designed communal spaces. These include a multipurpose room (SUM), a reflecting pool, and rest areas, all curated to promote recreation, relaxation, and social interaction. The central green patio further enhances the sense of community, acting as a focal point that bridges the private and shared aspects of the residence.





Sustainable Design Features
One of the standout features of the Alvear AV Residence is its commitment to sustainability and comfort. Each unit is designed with double cross ventilation, ensuring optimal thermal performance and natural light throughout the day. The private terrace-balconies, equipped with vertical solar control systems and green planters, enhance privacy while fostering visual continuity with the surrounding environment. These sustainable elements not only improve energy efficiency but also create a harmonious living experience for the residents.







Integration with Nature
The residence’s design pays homage to the abundant vegetation surrounding the site. The green patio and individual planters on balconies create a seamless blend between the built environment and the natural landscape. By incorporating these elements, Estudio V2 Arquitectos has crafted a living space that celebrates its natural context while meeting the functional needs of its inhabitants.





The Alvear AV Residence exemplifies the future of sustainable residential architecture, where design, functionality, and nature coexist harmoniously. Through thoughtful spatial organization, innovative sustainable features, and a deep respect for its natural surroundings, this project sets a benchmark for residential developments in urban areas. Its architectural elegance and environmental sensitivity make it a true masterpiece of modern design.






