Art Studio Renovation: Daniela Riquelme Studio Workshop by AMASA Estudio in Coyoacán
This article explores the art studio renovation of Daniela Riquelme’s workshop by AMASA Estudio in Coyoacán, blending light, custom furniture, and creativity.
Transforming a Creative Space Through Art Studio Renovation
The Daniela Riquelme Studio Workshop, designed by AMASA Estudio, exemplifies the power of art studio renovation to enhance both artistic productivity and architectural beauty. Located in the heart of Coyoacán, Mexico City, this project reimagines a residential upper floor into a vibrant studio and production workshop tailored to meet the creative needs of artist Daniela Riquelme. The renovation achieves a harmonious balance between functional workspaces and an environment rich in natural light, fostering inspiration within a personalized setting.

Context and Artistic Vision Behind the Transformation
Daniela Riquelme, a Mexico City-based artist specializing in painting and jewelry, initially used the upper floor of her home as a studio. Over time, she found the space inadequate due to limited lighting and cramped conditions. Seeking a transformation that aligned with her artistic practice, she collaborated with AMASA Estudio to reconfigure the existing structure into an art studio renovation that would optimize her creative process.

The resulting design is a spatial narrative shaped by light, custom furniture, and a deep connection to the surrounding neighborhood of Coyoacán. Known for its cultural heritage and tree-lined streets, this area serves as a backdrop to the studio’s expansion, blending artistic expression with architectural innovation.

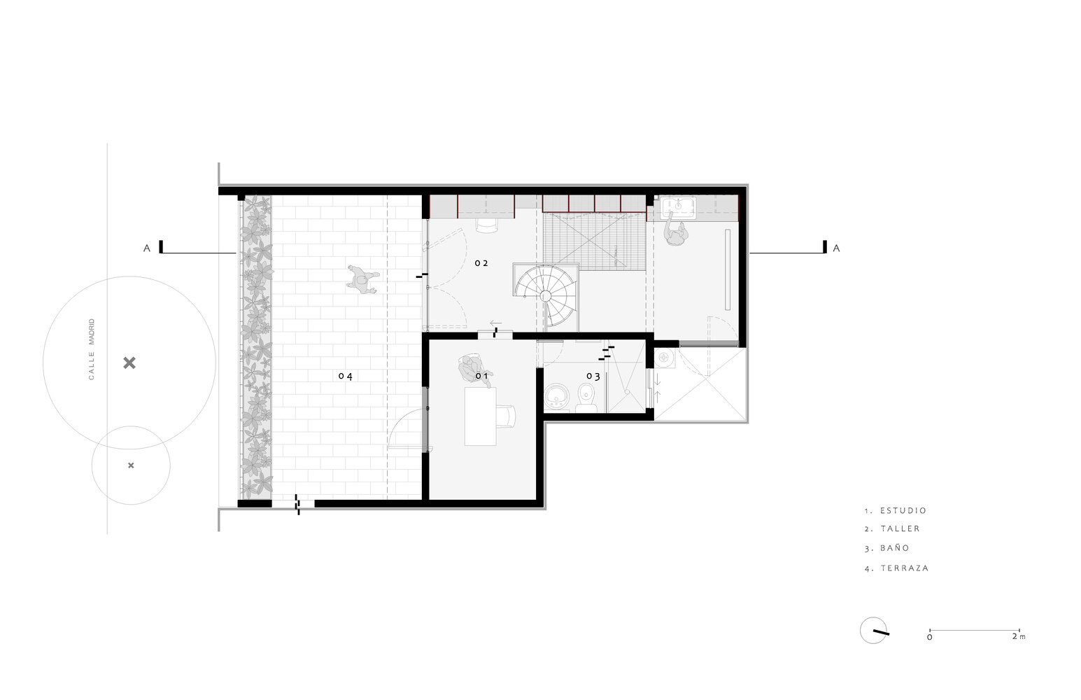
Architectural Layout and Functional Zoning
The renovation centers around the preexisting spiral staircase, which divides the upper floor into two primary sections. Upon ascending the staircase, visitors enter the first section—an open studio area with direct access to a terrace. This outdoor platform overlooks the tree canopies of Coyoacán, creating an inspiring visual connection to nature. The terrace doors are framed with striking red ironwork, reflecting the vibrancy of Riquelme’s artistic palette.

The second section offers a more private workspace and includes a full bathroom, storage solutions, and specialized workstations. Custom carpentry runs along the length of one wall, integrating shelving, a drafting table, drawers, and a workbench with a sink. This comprehensive system is designed to accommodate various materials, tools, and artworks, ensuring that the artist’s workflow is uninterrupted.

Natural Light as the Foundation of the Design
A defining feature of this art studio renovation is its masterful use of natural light. The studio’s rear section was expanded to introduce a large east-facing window that bathes the space in soft morning light. The window, framed in red ironwork with a rotating mechanism, allows for cross-ventilation while acting as an artistic element within the room.
A sawtooth roof further elevates the lighting quality, incorporating three overhead openings that capture indirect sunlight. This architectural solution prevents harsh shadows, creating optimal conditions for painting and exhibition purposes. Additionally, a skylight above the staircase filters light through a grated platform, illuminating both the upper-level hallway and the public spaces below.

Material Palette and Craftsmanship
The art studio renovation celebrates craftsmanship through the integration of wood, iron, and custom furniture. Warm timber elements dominate the interior, establishing a tactile connection between the artist and her environment. Ironwork details, painted in a distinctive garnet red, punctuate the design with bursts of color. This hue was carefully chosen to reflect Riquelme’s artistic identity, forming a visual link between her work and the studio’s architectural character.
The precision in carpentry ensures that every element serves both aesthetic and functional purposes. Storage units seamlessly blend into the walls, while the workbench and sink facilitate hands-on artistic processes. These custom-built solutions underscore the importance of tailoring a studio to the unique requirements of its occupant.

Integration of Indoor and Outdoor Spaces
The relationship between indoor and outdoor environments plays a crucial role in this art studio renovation. The terrace extends the workspace into the open air, providing an alternative setting for creative reflection. Framed views of the neighborhood’s treetops offer a sense of tranquility, fostering a connection between artistic practice and natural surroundings.
This seamless integration is further emphasized by the ventilation system enabled through the rotating iron window and the open design of the terrace doors. Cross-breezes regulate the indoor climate, while the infusion of light reduces the reliance on artificial illumination. Together, these design strategies cultivate an atmosphere of comfort and inspiration.

The Symbolism of Color and Light
Throughout the renovation, light and color are treated as narrative tools that enhance the creative environment. The east-facing orientation allows the studio to harness the subtle variations of morning light, aligning with Riquelme’s daily artistic rhythms. Red accents in the ironwork evoke energy and passion, qualities that resonate with the artist’s visual language.
This dialogue between light and color transforms the studio into more than a functional workspace—it becomes an extension of Riquelme’s artistry. Every corner of the renovation reflects her identity, from the custom furniture to the carefully curated palette.

A Blueprint for Future Art Studio Renovations
The Daniela Riquelme Studio Workshop sets a precedent for art studio renovations that prioritize both creativity and comfort. AMASA Estudio’s design demonstrates how residential spaces can be adapted to support professional artistic practices without compromising on architectural quality. This project serves as an inspiration for artists and designers seeking to craft environments that enhance productivity and nurture artistic vision.

The success of this renovation lies in its holistic approach—blending natural light, custom materials, and thoughtful zoning to create a studio that evolves with the artist. As cities like Mexico City continue to embrace adaptive reuse, projects like this exemplify the potential of transforming existing spaces into dynamic creative hubs.

Redefining Artistic Spaces Through Renovation
The Daniela Riquelme Studio Workshop by AMASA Estudio stands as a beacon of innovative art studio renovation. Situated in the culturally rich neighborhood of Coyoacán, this transformed upper floor merges architecture with artistic expression. Through custom craftsmanship, an abundance of natural light, and a seamless indoor-outdoor relationship, the renovation elevates both Riquelme’s creative practice and the architectural landscape of Mexico City.

All Photographs are works of Zaickz Moz