Avant-Garde Museum Design: Transforming Xul Solar's Residence into a Cultural Marvel
Architect Pablo Tomás Beitía transforms Xul Solar's residence into an avant-garde museum, harmonizing art and architecture."
Discover the visionary architectural journey of Pablo Tomás Beitía as he converts Xul Solar's home into a cultural haven.
Architect Pablo Tomás Beitía undertook a remarkable project from 1987 to 1993, converting the residence of Argentine artist Alejandro Xul Solar into the avant-garde Xul Solar Museum. This article delves into the innovative design, cultural significance, and seamless integration of the new with the existing structure.




Unveiling Xul Solar's Legacy
Situated in Buenos Aires' Palermo neighborhood, the museum embraces Xul Solar's pictorial worldview, maintaining the original facade while introducing a new interior architecture. The project, commissioned by Xul Solar's wife, Micaela Cadenas, aimed to create a space that adapts to exhibition needs and engages in avant-garde dialogue.



Architectural Fusion: Old Meets New
The original building, over a century old, featured four apartments across two floors. The challenge was to preserve the historical essence while accommodating the museum's requirements. Inspired by Xul Solar's artistic motifs, Beitía carefully navigated the intersections of art and architecture, avoiding mere replication.



The Pan Klub Foundation Influence
Founded in 1986 by Micaela Cadenas, the Pan Klub Foundation played a pivotal role in shaping the museum's vision. The foundation, rooted in the 1930s concept of a cultural haven for like-minded artists, envisioned the museum as a space for creation and cultural exploration, especially for emerging artists.




Geometry, Associations, and Xul's Influence
Pablo Beitía, drawing inspiration from Xul Solar's artistic proposals, successfully created a work tailored to a visual artist. The self-taught painter's exploration of cities and architectural motifs became a muse for Beitía, resulting in a design that harmonizes geometry with Xul's artistic expressions.


Workshop Museum Concept
Xul Solar rejected the notion of a traditional museum, favoring a workshop museum that fosters surprise, creative activity, and culture. Natalio Povarché's input, as a gallery owner, emphasized spacious areas, open plans, white walls, and a mix of cement with wooden floors, ensuring a versatile and dynamic space.




Pan Klub Hall: Versatile Cultural Hub
The ground floor houses the Pan Klub Hall, a versatile space for cultural activities with a capacity of 200 people. Mobile systems enable a flexible setup for exhibitions, theatrical performances, and audiovisual presentations. The main hall, surrounded by three exhibition rooms, becomes a focal point for cultural encounters.



Spatial Composition and Integration
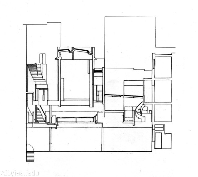
Beitía's innovative approach transformed the museum into a space where existing and new elements seamlessly integrate. Concrete mezzanines, seemingly floating without structural support, create a visually captivating journey. Fissures, planes, old walls, and stairs compose a spatial symphony, enriching the visitor's experience.




Preserving the Essence: Not a Renovation, But a Transformation
Retaining only the brick facade and the staircase from the original structure, Beitía emphasizes that this is not a renovation but a new building atop an old one. Reinforced concrete structures replaced load-bearing walls, providing strength and enabling more open spaces for museum activities.
Material Harmony and Aesthetic Appeal
The remodeling showcases a thoughtful selection of materials – concrete, wood, cut and polished stone, iron, natural stones, and glass. The museum's color palette, in cream tones complemented by browns, light ochres, and grays, enhances the visual appeal. The terrace, envisioned as a space to contemplate and represent the city, introduces a more saturated color palette.








Xul Solar Museum Today
In its permanent exhibition, the museum proudly displays 86 works by Xul Solar, voluminous objects, and curated display cases. The architecture echoes Xul's poetics, embracing a strong language of architectural avant-garde throughout the entire structure.
Pablo Tomás Beitía's transformative design of the Xul Solar Museum stands as a testament to architectural innovation, cultural preservation, and avant-garde integration. This museum not only preserves Xul Solar's legacy but also becomes a dynamic space for artistic exploration and cultural engagement.
Popular Articles
Popular articles from the community
Treehouse Apartment: A Warm Timber Interior Blending Craft, Play, and Contemporary Living
Warm timber apartment with integrated treehouse, combining natural materials, craftsmanship, and playful design to create a flexible, family-oriented living environment.
Atelier Macri Concept Store Interior Design by CASE-REAL
Atelier Macri store features a "ko" counter, walnut wood details, cork displays, blending retail, gallery, and seamless customer experiences.
Flamboyant House by Juliana Camargo + Prumo Projetos
Modern Brazilian house integrating existing tree, pool, and volumes with glass, wood, and transitional spaces blending interior, exterior, and landscape seamlessly.
Solar Steam: A Climate-Responsive Architecture That Redefines the Monument
A climate-responsive memorial architecture that transforms heat, decay, and time into a living system reflecting humanity’s ecological impact.
Similar Reads
You might also enjoy these articles
The Ken Roberts Memorial Delineation Competition (Krob)
As the most senior architectural drawing competition currently in operation anywhere in the world, it draws hundreds of entries each year, awarding the very best submissions in a series of medium-based categories.
Waterfront Redevelopment and Urban Revitalization in Mumbai: Forging a New Dawn for Darukhana
A transformative waterfront redevelopment project reimagining Darukhana’s shipbreaking heritage into an inclusive urban future.
OUT-OF-MAP: A Call for Postcards on Feminist Narratives of Public Space
Rhizoma Design and Research Lab invites artists, designers, architects, researchers, and students to reflect on how feminist perspectives can reshape public space. Selected works will be exhibited in Barcelona, October 2026. Submissions open until 15 April 2026.
Documentation Work on Buddhist Wooden Temple
Architectural syncretism and cultural hybridity: A comparative study of the Buddhist temples in Chattogram Hill tracks
Explore Architecture Competitions
Discover active competitions in this discipline
The International Standard for Design Portfolios
The Global Benchmark for Architecture Dissertation Awards
The Global Benchmark for Graduation Excellence
Challenge to reimagine the Iron Throne
Comments (0)
Please login or sign up to add comments
No comments yet. Be the first to comment!