Beachfront Wooden House Design: Blending Structure with Nature
House in Juquehy combines sustainable wooden architecture with innovative design to enhance beachfront living experiences.
Embracing the Environment through Architecture
The House in Juquehy, designed by Lucio Fleury Arquitetura, stands as a pinnacle of beachfront wooden house design, embodying the delicate balance between built space and natural surroundings. Situated in São Sebastião, Brazil, this residence showcases how architecture can harmonize with the local climate and landscape, offering both aesthetic beauty and functional benefits.


Design Philosophy
Protection and Comfort through Thoughtful Design
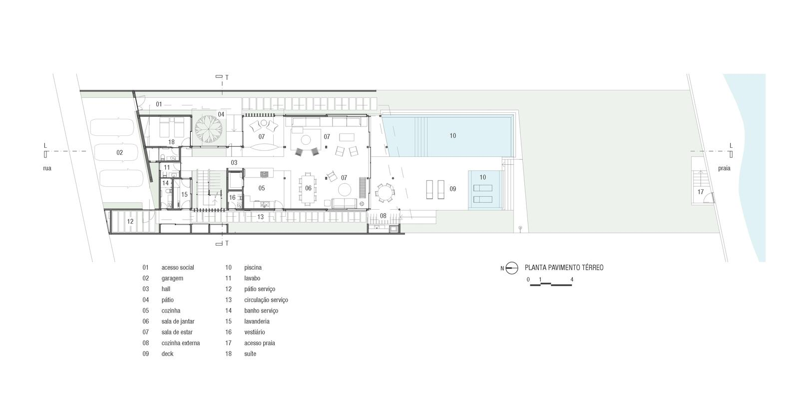
Large eaves characterize the house's façades, providing essential protection from the elements for the structure, walls, and windows, thereby reducing maintenance needs. The strategic placement of openings across the house ensures cross-ventilation, enhancing thermal comfort within. This thoughtful design element is crucial for residences in coastal areas, where the balance between warmth and cooling is vital for year-round comfort.

Maximizing Views and Natural Light
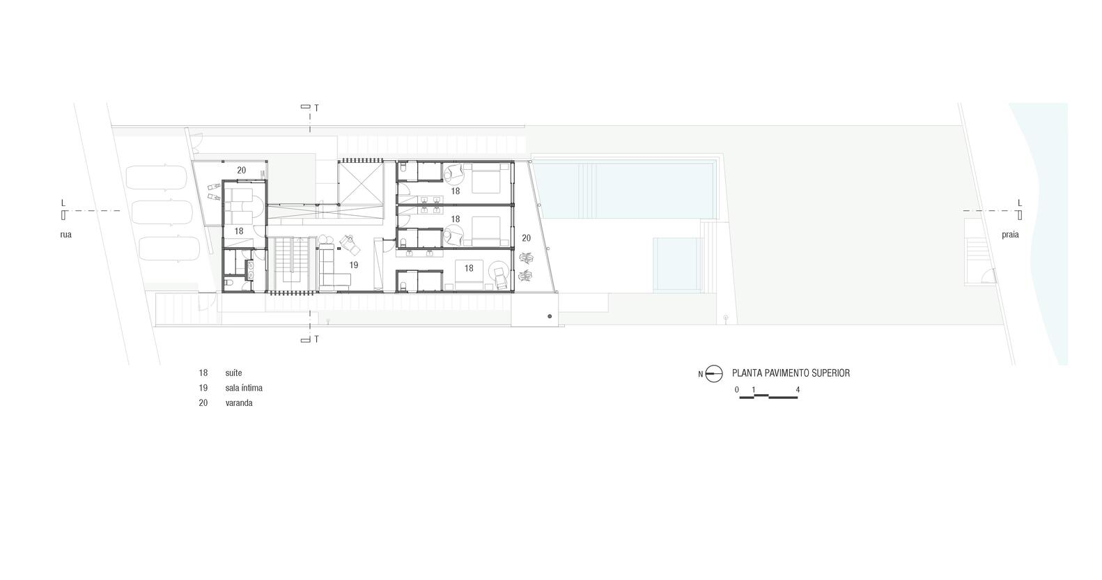
The south face of the House in Juquehy opens up completely to breathtaking sea views, while the west face employs cellular concrete masonry to offer privacy and shade, except for the staircase module. This area is adorned with vertical brises that filter the setting sun’s light, illuminating the internal courtyard and creating a dynamic play of light and shadow.




Navigating Spatial Challenges
Innovative Solutions for Narrow Lots
Despite its privileged beachfront location, the House in Juquehy is set on a relatively narrow lot. The architects navigated local building regulations creatively, designing three suites with sea views within a constrained width. This clever spatial arrangement ensures that each suite, though narrow, offers ample comfort and stunning vistas, particularly from the uniquely positioned bathrooms.





Sustainable Practices and Materials
Eco-Friendly Construction
The structural integrity of the house is secured with glued laminated wood from reforestation, marking a step towards sustainable building practices. The use of PVC sandwich tile and expanded polyurethane for roofing provides excellent thermal insulation, complementing the house's eco-friendly design with solar panels for photovoltaic energy and solar heating for the pool.





Architectural Highlights
The Role of Muxarabi Panels
An intriguing feature of this beachfront home is the use of Muxarabi panels, which serve multiple purposes: from acting as the laundry room and bathroom's internal enclosures to filtering light in living spaces. These panels not only enhance the home's aesthetic but also contribute to its environmental control strategy.




Color as a Design Element
The natural hue of the wooden structure alone makes a bold statement. However, the architects introduced vibrant colors to highlight different sections of the house, using shades of blue and yellow to accentuate the seaside and street-facing blocks, respectively. This choice of color adds a layer of visual interest and identity to the home.






The House in Juquehy by Lucio Fleury Arquitetura is a testament to the potential of beachfront wooden house design in creating spaces that are both environmentally responsive and visually stunning. Through its thoughtful integration of sustainable materials, innovative spatial solutions, and attention to climatic demands, this home sets a benchmark for future coastal architecture, promising comfort, beauty, and harmony with nature.






All Photographs are the work of Beware Collective