Biophilic Office Design – The Jellicoe Workspace by Universal Design Studio
The Jellicoe Workspace redefines biophilic office design, blending nature, sustainability, and adaptable spaces to support wellbeing and modern work culture.
Introduction to The Jellicoe Workspace
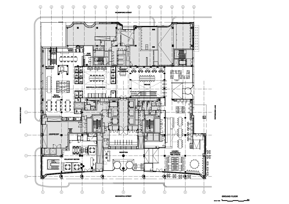
In the heart of London’s King’s Cross redevelopment stands The Jellicoe Workspace — a biophilic office design by Universal Design Studio, developed in collaboration with Fora and the King’s Cross Estate. Spanning 12,450 square meters, this destination workspace reimagines the modern office as a series of distinct “worlds within a world,” offering an adaptable and human-focused environment for the evolving needs of contemporary professionals.
A New Concept for the Modern Workplace
The design moves beyond traditional corporate layouts by borrowing from hospitality, cultural, and wellness spaces. Each zone has its own character and function, accommodating everything from focused work to social gatherings and quiet reflection. The public townhall “world” is a prime example — with its adaptable grid ceiling and flexible furnishings, it effortlessly transforms between café, co-working lounge, and event venue.


Cinematic Flow and Sensory Experience
As users move through the workspace, they encounter a cinematic sequence of environments that encourage behavioural shifts. Textural contrasts, varied layouts, and curated materials — from Søuld eelgrass acoustic panels to PineSkins wall coverings — stimulate the senses. A meditation room, wrapped in timber and lavender-scented wallpaper, provides a cocoon-like escape from the pace of daily work.

Cohesion Across Diverse Spaces
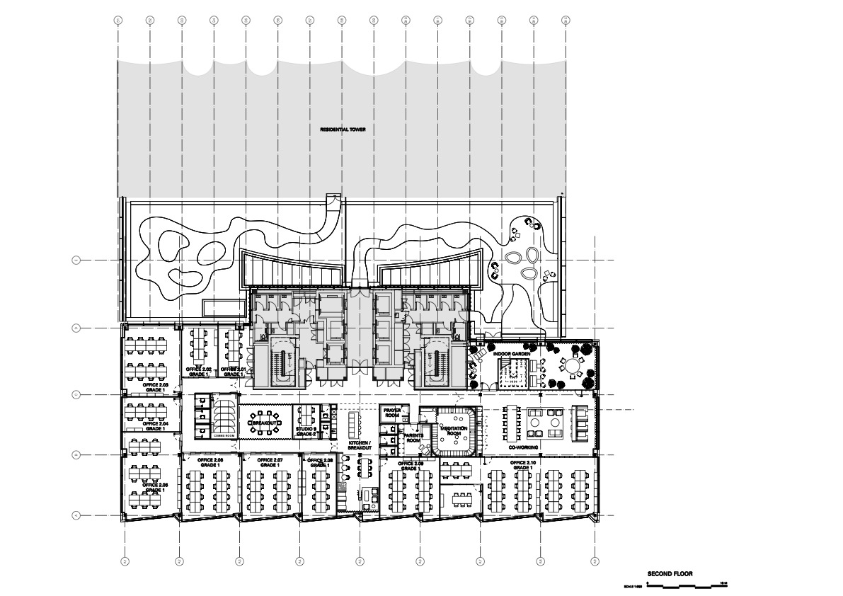
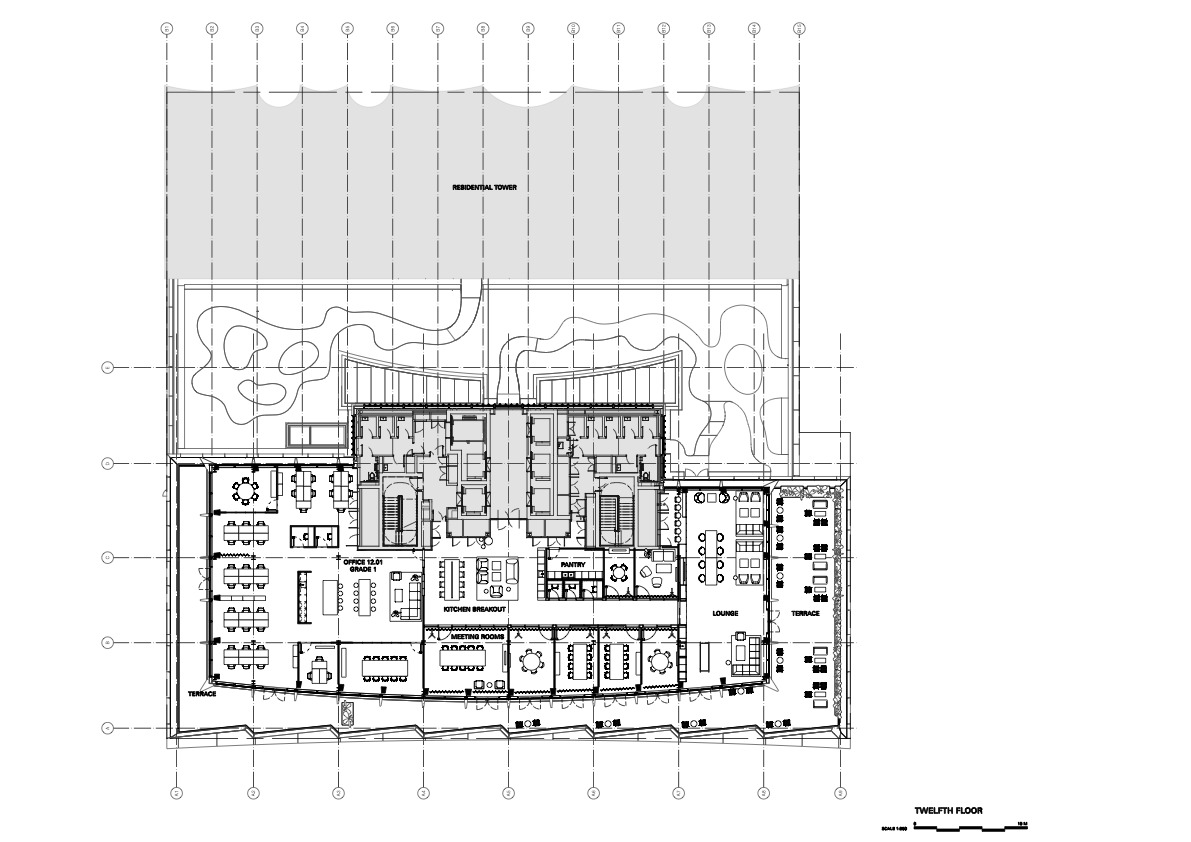
While each zone has a unique identity, coherence is achieved through recurring design elements, such as ash joinery and a consistent grid-based architectural language. These details unify the overall experience while preserving the individuality of each setting.

Sustainability at the Core
Sustainability shapes every aspect of The Jellicoe Workspace. Natural, low-impact finishes like linoleum flooring and raw Clayworks walls ensure durability and environmental responsibility. Ash timber, repurposed from trees felled due to Ash Dieback, forms much of the joinery. Modular components future-proof the building, allowing spaces to evolve and adapt without unnecessary waste, in line with circular design principles.



Biophilic Integration and Wellbeing
Biophilic design is central to the project’s philosophy. An indoor garden built from clay, brick, and natural minerals offers a daily connection to nature. The workspace incorporates inclusive design principles, informed by neurodiversity consultants and academic expertise, ensuring environments that respond to a broad range of sensory needs — from acoustic conditions to tactile finishes and visual tone.


A Workplace for the Future
The Jellicoe Workspace is more than a functional office; it’s an immersive, adaptable, and sustainable environment. By embracing biophilic office design, Universal Design Studio has created a space that promotes productivity, fosters wellbeing, and sets a new benchmark for human-centric workplace architecture.



All Photographs are works of Chris Tirrell, Toby Mitchell