Coastal Modern Architecture: Unveiling The Lighthouse by Toob Studio
The article highlights The Lighthouse by Toob Studio, showcasing innovative coastal modern architecture in Ha Long, Vietnam.
Coastal modern architecture combines contemporary design with the unique demands of coastal environments. The Lighthouse by Toob Studio stands as a prime example of this architectural style, melding modern aesthetics with functionality to withstand the coastal climate of Ha Long, Vietnam.






The Vision Behind The Lighthouse
Located at a unique five-way intersection with sweeping sea views, The Lighthouse challenges conventional design norms. It represents a significant stride in the evolution of coastal modern architecture, aiming to be a modern landmark in the traditionally linear-planned city of Ha Long.





Architectural Challenges and Solutions
Toob Studio faced distinct challenges due to the site's coastal conditions, including a constant sea breeze laden with salt that accelerates the deterioration of construction materials. Their innovative solution incorporates a dual-layer facade: an inner glass layer ensuring visibility and protection from elements and an outer layer of light perforated concrete slabs shielding the structure from the harsh marine environment.




The Design Philosophy of The Lighthouse
Harmonizing Interior and Exterior
The Lighthouse emphasizes the seamless connection between indoor and outdoor spaces. This is achieved through strategic design elements that allow residents to adjust the living environment according to their needs, promoting a harmonious blend of comfort and natural light.




Embracing Local Elements
A unique aspect of The Lighthouse is its integration with local topography. A section of the building carves into the hillside, revealing an intriguing natural earth wall—an unexpected feature preserved to enhance the connection with the locale's physical and spiritual elements.





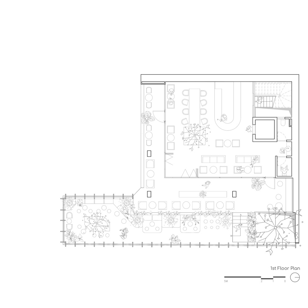
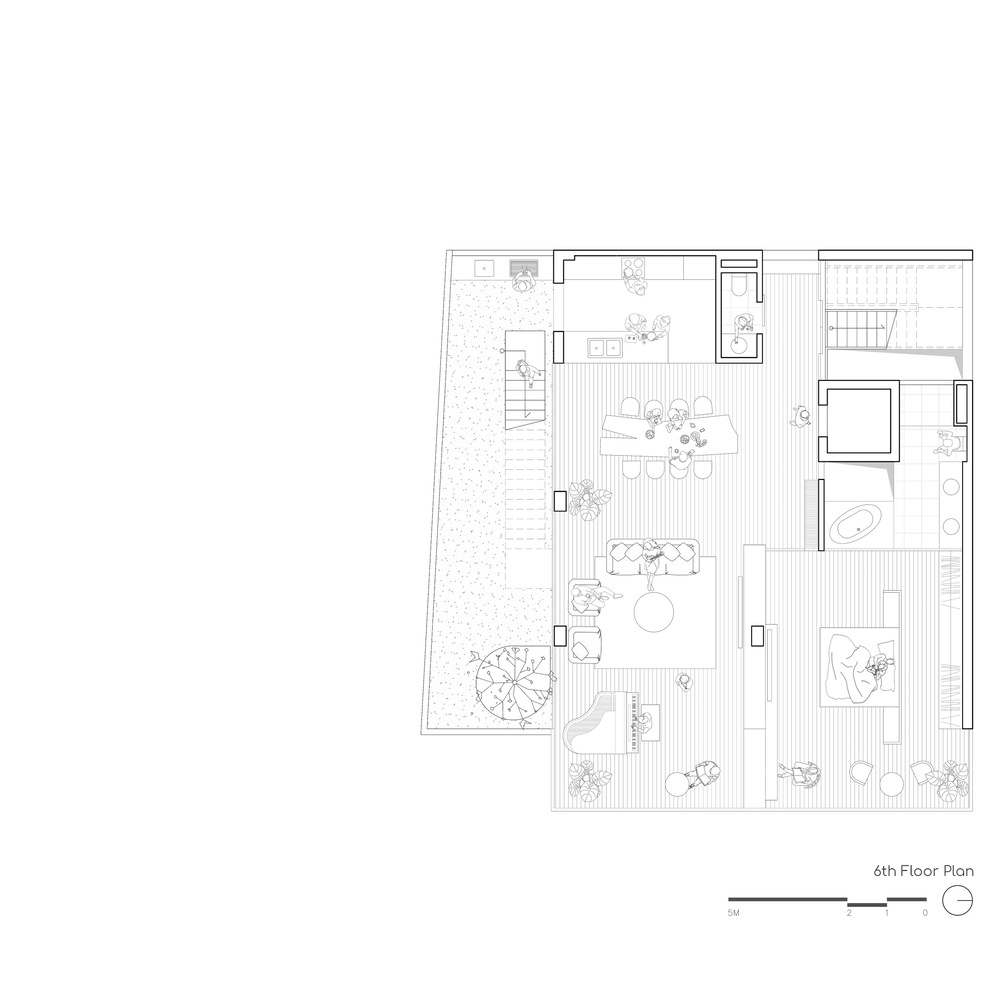
Multifunctional Living Spaces
The Lighthouse serves a dual purpose: the lower floors are designated for rental, offering modern living solutions, while the upper floors provide a serene retreat for the owners. This vertical division ensures that residents can enjoy peace and expansive seascape views away from the bustling city life.






The Future of Coastal Modern Architecture
The Lighthouse by Toob Studio marks a significant milestone in coastal modern architecture. It not only addresses the unique challenges posed by its environment but also sets a new standard for residential design in coastal cities. This project exemplifies how contemporary architecture can blend functionality with aesthetic appeal, contributing to Ha Long city's modernization and industrialization.





All photographs are work of Triệu Chiến