Contemporary Forest House Design: Exploring M3R House by NatureHumaine
A contemporary forest retreat blending modern design, sustainability, and nature in the serene landscapes of Sutton.
Nestled within the serene forested landscape of Sutton, United Kingdom, the M3R House by NatureHumaine stands as a timeless testament to contemporary forest house design. Surrounded by three intersecting streams on a sprawling five-acre site, this architectural masterpiece embodies the harmony between modern living and the natural environment. The vibrant red exterior, a nod to regional architectural traditions, perfectly complements the rustic charm of its surroundings.




Designing for Unique Topography and Context
The design of M3R House was dictated by the site’s steep topography and the proximity to the three streams. The house was strategically positioned to take full advantage of the landscape, allowing for a garden-level floor with direct access to the streams and panoramic views. A covered central axis serves as the main entrance, bridging the steep terrain and the carport, creating a balanced connection between the built structure and its environment.




Red as a Symbol of Regional Heritage
The house’s bold red façade pays homage to the historic red-dyed wooden houses found in the region’s countryside. This choice of color was inspired by the site’s autumnal palette during the initial design stages. Wooden cladding with overhanging battens adds texture and depth, making the building an integral part of the landscape while maintaining a contemporary aesthetic.



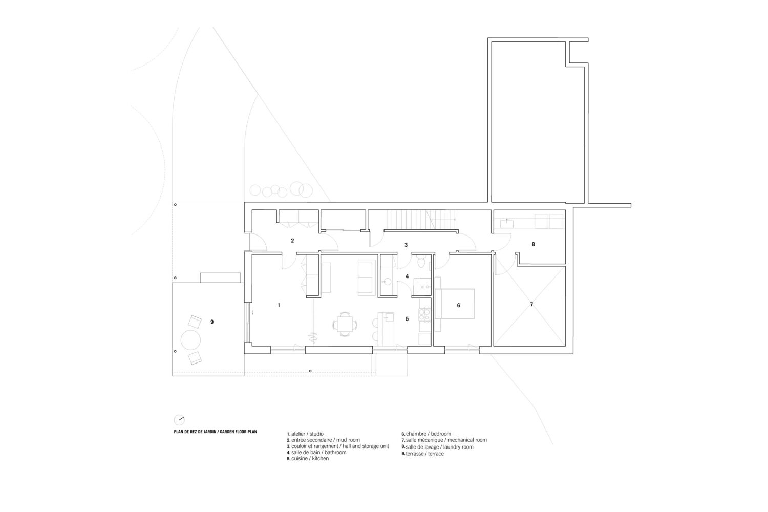
Interior Layout and Living Spaces
The interior of M3R House emphasizes simplicity and connection with nature. The ground floor features the master quarters and primary living spaces. A large vestibule leads to the master bedroom, which includes a glazed meditation area overlooking the forest. The master bathroom, equipped with a built-in bath beside a panoramic window, offers a tranquil retreat.
The living areas are designed for relaxation and gathering, featuring polished concrete floors, built-in white oak furniture, and wooden ceiling cladding. Expansive glazed doors open onto a terrace with breathtaking views of the three streams, seamlessly blending indoor and outdoor living.




Garden-Level Spaces and Guest Accommodations
The garden level is dedicated to guest accommodations and wellness. A studio apartment offers privacy for visitors, while a massage room opens onto a smaller terrace. This floor provides a serene retreat for guests, connecting them with the surrounding natural beauty.


Engaging with the Forest Landscape
A rustic path winds from the house to the three streams below, inviting residents and visitors to explore the rejuvenating waters. The design of M3R House prioritizes this connection to nature, creating a living environment that enhances well-being and fosters a deep appreciation for the natural surroundings.


Timeless Design with Contemporary Vernacular
M3R House successfully blends the vernacular architecture of the Eastern Townships region with a modern architectural language. Durable materials and thoughtful design ensure the structure’s longevity while maintaining a timeless aesthetic. The house’s seamless integration with its environment sets it apart as an exemplar of contemporary forest house design.




A Harmonious Retreat in Nature
M3R House by NatureHumaine is more than just a residence; it is a sanctuary that harmonizes modern living with the tranquility of the natural world. By combining thoughtful design, sustainable materials, and a deep connection to its unique site, this house serves as a model for contemporary forest living.


All Photographs are work of NatureHumaine