Courtyard Garden Design in Modern Homes: A Case Study of the Hopscotch HouseCourtyard Garden Design in Modern Homes: A Case Study of the Hopscotch House

Courtyard Garden Design in Modern Homes: A Case Study of the Hopscotch House

UNI EditorialUNI Editorial
UNI Editorial published Story under Architecture on Mar 26, 2024

Courtyard garden design is an architectural strategy that harmoniously integrates outdoor and indoor living spaces. This approach not only enhances the aesthetic appeal of a home but also promotes a sustainable lifestyle by maximizing natural light and ventilation. The Hopscotch House by JOHN ELLWAY. ARCHITECT stands as a prime example of how courtyard gardens can transform modern residential architecture.

The Concept Behind the Hopscotch House

Located in Woolloongabba, Australia, the Hopscotch House is designed with the idea of creating a playful and interactive living environment. The house is named for its ability to encourage movement, exploration, and engagement with various indoor and outdoor spaces, much like the game it's named after. This design philosophy is particularly evident in the home's unique use of courtyard gardens.

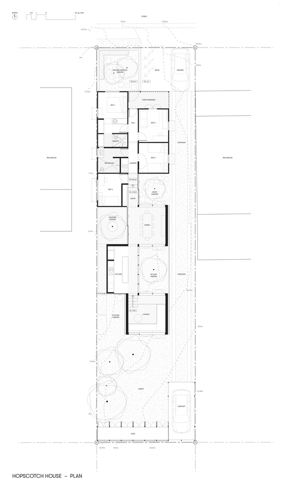
Architectural Strategy: Integrating Courtyard Gardens

Preserving the Cottage's Charm

The original structure of the Hopscotch House, a pre-war cottage, remains largely untouched, with the new architectural additions stretching into the backyard. This decision was crucial in maintaining the historical charm of the house while introducing modern living spaces.

Creating a Series of Garden Courtyards

The key architectural move was to insert five garden courtyards between the existing cottage and the new living areas. Each courtyard is designed with a specific purpose and positioned to ensure that every room benefits from northern sunlight, fresh air, and beautiful views. These outdoor spaces serve as natural extensions of the indoor areas, blurring the lines between the built environment and nature.

Weather Mediation Through Design

The Hopscotch House utilizes walls, roofs, and openings as a kit-of-parts to mediate weather conditions. Solid shutters and fixed glazing are strategically placed to manage airflow, rain, and sunlight, creating a comfortable living environment throughout the year.

Landscape Collaboration for Courtyard Gardens

Collaboration with landscape architects was crucial in selecting plants for each courtyard garden, adding a layer of weather protection and aesthetic value. From productive planting adjacent to the kitchen to a large olive tree managing the western aspect near the dining area, each garden is thoughtfully designed to enhance the living experience.

Raw Materials and Social Spaces

The choice of raw construction materials, such as block walls and corrugated sheets, gives the addition an external space feel, while vine-covered mesh adds softness and additional weather protection. A brick floor links the timber cottage to the garden, creating a cohesive flow throughout the property. The design also incorporates a 'neighborhood garden,' fostering social interaction with the surrounding community.

Redefining Modern Home Design

The Hopscotch House by JOHN ELLWAY. ARCHITECT exemplifies the transformative power of courtyard garden design in modern homes. By integrating indoor and outdoor spaces, the project not only achieves a dynamic and playful living environment but also sets a new standard for sustainable and community-focused residential architecture.

All photographs are work of Toby Scott

UNI EditorialUNI Editorial

UNI Editorial

Where architecture meets innovation, through curated news, insights, and reviews from around the globe.

UNI EditorialUNI Editorial
Search in