FLOW-ER
--Silk ribbons that dance across the city
One of the most vibrant and multicultural cities in South America, Buenos Aires is known for its vibrant music, beer, dance, fashion and cuisine. It has elegant palaces and buildings such as the Presidential Palace and the Bolshoi Colonia, as well as a contemporary art scene. Whether you are travelling through the city by metro or strolling along the banks of the La Plata River, you can feel the city's warm and vibrant charm.
In the streets of Buenos Aires, locals often gather in squares or open spaces to dance the tango. As the lively music plays, people dance to the rhythm, as if they have travelled back in time for a moment to the small port where the tango originated. The men in elegant black and white suits, arms outstretched and palms up, held their partner's hand tightly in theirs, like a light bird of prey dancing under his wings; the women in their gorgeous dresses, graceful and smiling sweetly, danced step by step under the men's leadership. The surrounding crowd was overflowing with joy, some with cameras or mobile phones to record the beautiful moment. The audience became part of the lively dance scene and happily joined the family. Tango, as much a dance form as a cultural and spiritual connotation. In the streets of the City of Tango, people danced to express their inner feelings and deep emotions, showing their love and pursuit of life. This enchanting scene, full of a strong sense of humanity, gives a sense of the unique cultural charm of Buenos Aires and inspired us to design the Dance Centre.

The fluttering skirts and soft curves of the dancing tango dancers were the inspiration for the design. The ribbon is considered to be light and floating, so the purest white is used and the building is raised to echo the topography and create an effect off the ground.

Based on the basic contours of the concept design, the two-dimensional curves are enclosed at the building level for functional consideration, becoming three-dimensional, and then combined with the consideration of the internal space, the final roof shape is obtained by constantly making subtle adjustments to its rise and fall. Finally, the edges of the enclosing curves are fine-tuned to give a more aesthetic appearance to the floating roof, creating a cascading satin effect.


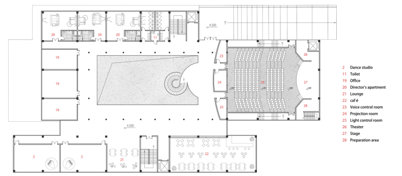
In terms of functional organisation, this design is a dance and cultural centre, open to the public and dance enthusiasts worldwide, with a complex and diverse range of functions, and it was a challenge to organise these functions systematically and ensure their effective use. The atrium space acts as a buffer for users entering from the outdoors and acts as a gathering place for people, while the atrium space is sunken, divided and decorated with colonnades and arches, creating a natural space for people to perform and gather. The other functional spaces are organised according to their individual characteristics, with the high volume theatre as the focal point, located on one side of the first floor, the studio and office spaces facing the outdoor theatre, the quiet flats and shower spaces near the inner part of the building, and the mainly external boutiques, cafeterias and cafes facing the city park on the south side of the base, with good views.

The exterior expresses the light and airy feel of silk through clean lines and graceful curves. The main body of the building adopts a streamlined shaped roof, which blends with the local urban culture while enhancing the sense of flow and movement of the building. The south façade features a large transparent glass curtain wall, adding black and white floating glass blocks, resembling the piano keys being played. This façade approach allows the indoor dance performance activities to be fully displayed to the outside audience, while also incorporating natural light and outdoor views throughout the performance, giving the users a unique appreciation experience.