Lloyd Yard Rotterdam Architecture: Redefining Port History with Modern Design
This article explores Lloyd Yard’s architecture in Rotterdam, blending historic port design with sustainable, energy-neutral residences.
Lloyd Yard and Rotterdam’s Port Legacy
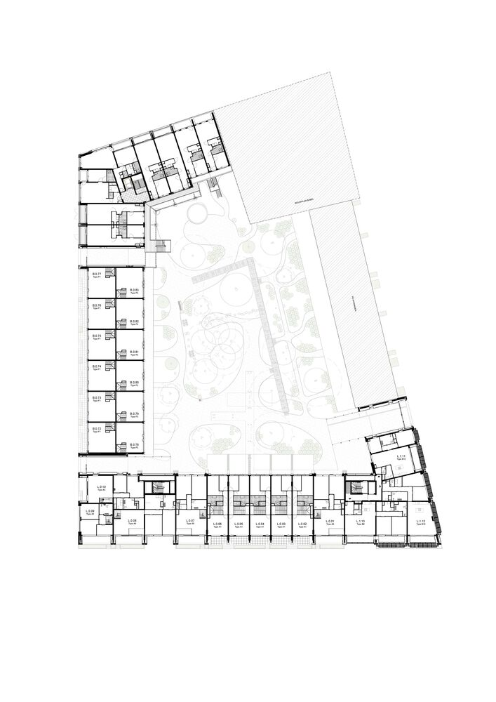
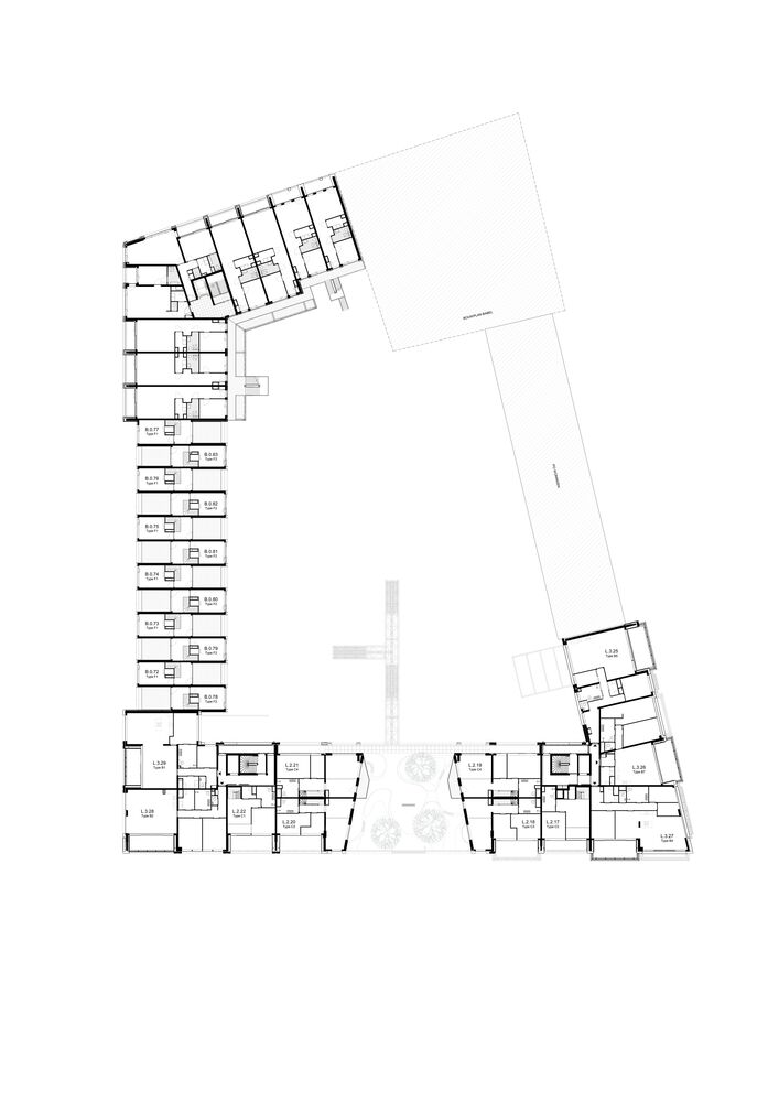
Lloyd Yard in Rotterdam represents a visionary urban transformation that celebrates the area's maritime heritage while introducing energy-neutral, adaptable residences. Developed by WE architecten, Paul de Ruiter Architects, and ZUS, this project revitalizes the historical Lloydkwartier area, a former docking zone for ships bound for the Dutch East Indies, blending robust materials and industrial design elements with green, communal spaces for residents. Completed in 2024, Lloyd Yard’s sustainable design offers a rich tapestry of housing options with direct connections to Rotterdam’s port history.




The Design Vision: Honoring Rotterdam’s Maritime Character
Port Heritage and Historical Architecture
Lloyd Yard draws heavily from Rotterdam’s port heritage, with architectural elements that honor the industrial past. By using weathered materials like rusty steel and brick, the project reflects the design of the old warehouses and cranes that once defined the skyline. Large letters on the roofs and distinct facade elements further emphasize the connection to the adjacent historic Keuhne+Nagel building. In this way, Lloyd Yard bridges Rotterdam’s history with a contemporary urban lifestyle.



Features and Key Architectural Highlights
The Maaswindow: A Unique Gathering Space
A standout feature of Lloyd Yard is the Maaswindow—a massive opening in the block that frames panoramic views of the Maas River. This architectural centerpiece serves as a communal gathering point where residents can enjoy the view, with a built-in swing that provides a playful interaction with the landscape. The Maaswindow creates an indoor-outdoor atmosphere that lets light into the courtyard, encouraging social engagement and offering a serene space amid the busy urban setting.




The Courtyard: An Adventurous Green Oasis
At the heart of Lloyd Yard lies a green courtyard with natural landscaping and adventurous pathways that retain the rugged aesthetic of Rotterdam’s port history. Raised steel walkways follow the foundations of former warehouses, allowing residents and visitors to explore historical lines while integrating with greenery. This courtyard not only attracts people but also creates a biodiverse habitat for urban wildlife, with native plants, climbing vines, and insect-friendly flowers.




Sustainability and Green Design: An Energy-Neutral Community
Green Roofs and Water Conservation
Lloyd Yard embodies Rotterdam’s commitment to sustainable architecture. Its buildings incorporate green roofs, climbing plants, and planters that provide natural insulation and stormwater management. Rainwater is collected and stored for the community’s garden needs, promoting efficient water use and reducing the environmental footprint.




Energy-Efficient Housing and Open Design
Each residence is designed to be energy-neutral, with double-height windows that provide ample natural light, minimizing energy consumption. High ceilings and voids within apartments allow flexibility, supporting adaptable living spaces that can grow or change as resident needs evolve. Spacious layouts and double-height apartments make the most of natural airflow and daylight, offering sustainable, attractive options for varied lifestyles.


Housing Diversity and Adaptable Living Spaces
A Range of Residences for Varied Needs
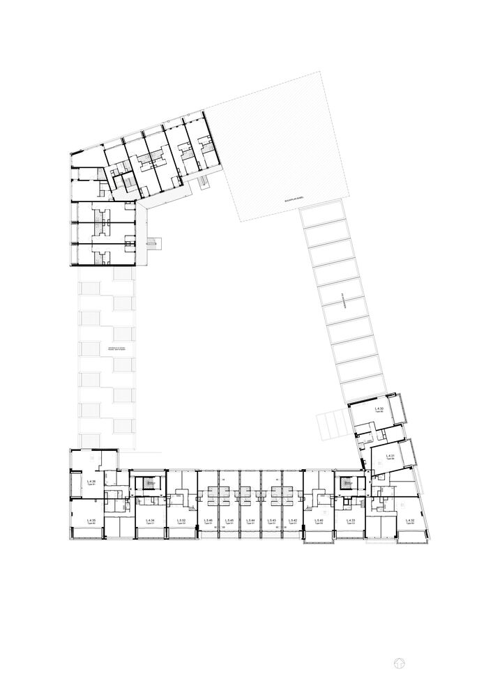
Lloyd Yard includes 136 homes, ranging from compact studios to multi-level townhouses. The housing types—purchase, rental, and self-build—are distributed across buildings of varying heights, with larger apartments positioned at block corners. This diversity in layout supports a mix of residents, from families to single professionals, enhancing the sense of community.






Internal Flexibility and High Ceilings
With floor heights ranging from 3.2 to over 5 meters, Lloyd Yard’s homes are designed for internal flexibility. Many units feature loft-like voids that allow residents to expand or adapt their living space, with connected floors and versatile layouts. This adaptability means that the architecture can evolve with residents, supporting personalized living spaces and unique home designs.






Lloyd Yard as a Model for Modern Sustainable Living in Rotterdam
Lloyd Yard in Rotterdam demonstrates a thoughtful approach to sustainable architecture and urban living. By embracing historic influences while prioritizing green design, Lloyd Yard offers a model for urban development that respects the past while addressing future needs. Its robust, adaptable architecture and rich communal spaces reflect a vision of a vibrant, connected, and sustainable Rotterdam.









All photographs are work of Aiste Rakauskaite