Luxury Residence Design by Hiren Patel Architects: A Masterpiece of Elegance in Ahmedabad
Luxury Residence Design by Hiren Patel Architects in Ahmedabad masterfully integrates modern aesthetics, personalized spaces, and timeless Indian elegance.
Introduction to Luxury Residence Design by Hiren Patel Architects
The Luxury Residence Design by Hiren Patel Architects in Ahmedabad, India, stands as an architectural marvel, harmonizing modern aesthetics with traditional sensibilities. Completed in 2024 and spread across 20,000 square meters, this high-end home redefines the concept of luxury residential architecture. Designed for a technocrat couple and their family, the residence showcases Hiren Patel Architects' commitment to blending elegance, functionality, and personal expression.



The Design Philosophy Behind the Residence
Hiren Patel Architects (HPA), founded by Hiren Patel in 1989, is renowned for pioneering contemporary architecture in India. Their design ethos revolves around creating spaces that reflect individuality while ensuring functionality. The luxury residence in Ahmedabad embodies this philosophy, offering a sanctuary for multigenerational living without compromising on modern architectural excellence.


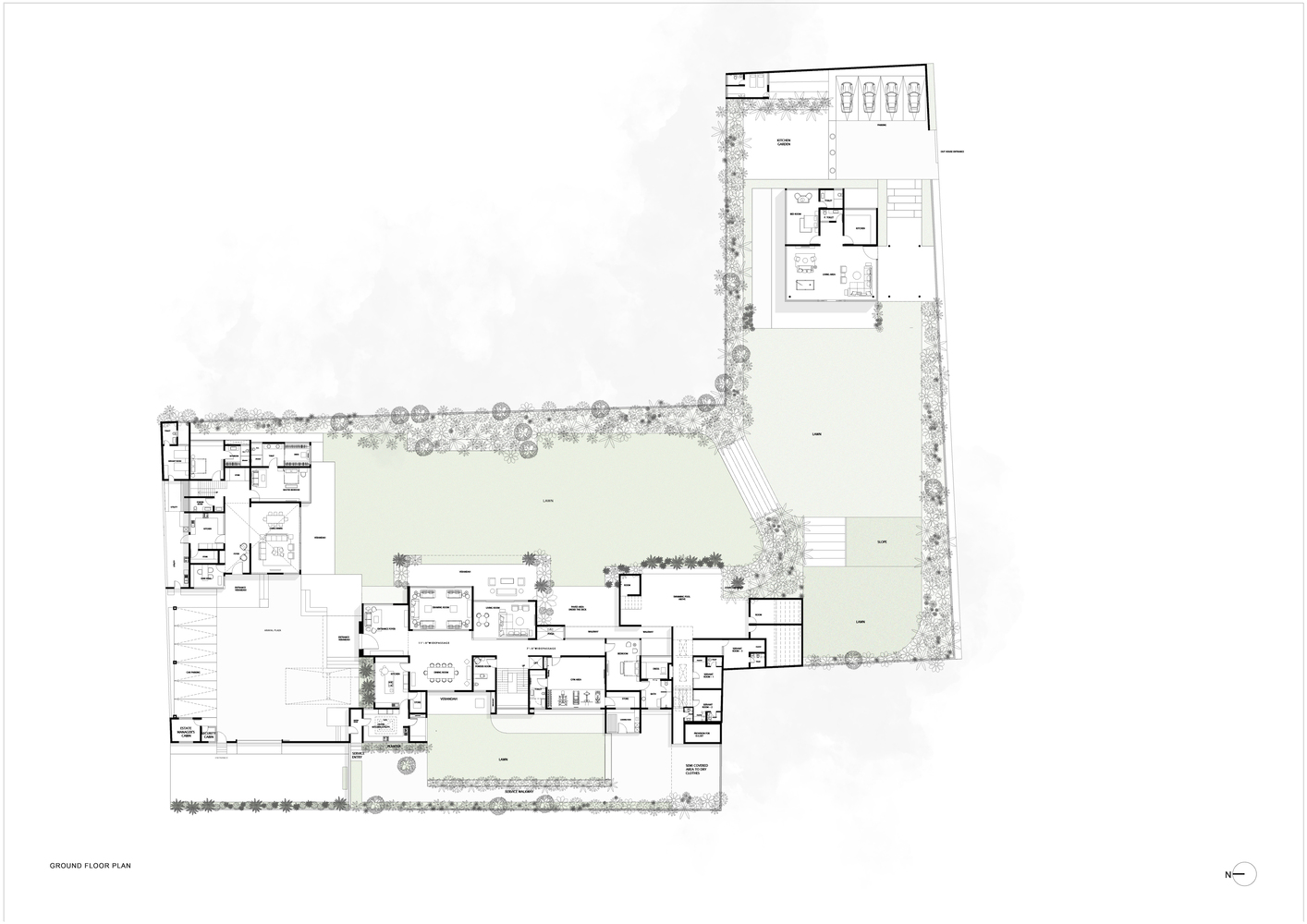
Architectural Planning and Spatial Zoning
The approach to the residence is defined by a gracefully designed entrance plaza, where granite flooring, red glass granite walls, and wooden canopies introduce a palette of natural materials. This grand entry leads to two distinct wings—the main house and a separate parents' wing—ensuring privacy while promoting connectivity.

The main house is oriented eastward, capturing morning sunlight and overlooking a garden, which offers serenity throughout the day. The seven-car parking area is strategically placed to maintain a seamless flow between indoor and outdoor spaces.

Seamless Integration of Interiors and Outdoor Living
Stepping into the luxury residence, the double-height central space becomes an immediate visual highlight, bathed in natural light. This architectural focal point connects the formal living area, dining room, and family lounge, fostering a sense of openness while retaining individual spatial identities.

Large outdoor verandas extend from the living and dining zones, offering opportunities for al fresco gatherings. These semi-open spaces blur the boundaries between interiors and exteriors, elevating the experience of luxury living.

Bespoke Interiors and Artistic Expression
The interiors of the residence resonate with understated opulence, characterized by clean lines, warm wood tones, and curated artworks. The technocrat couple’s personal art collection enriches the spaces with cultural depth, transforming the house into a gallery of personal narratives.
A sculptural staircase takes center stage within the central hub, illuminated by custom lighting installations. This architectural element is both functional and symbolic, leading to the private quarters on the upper level while serving as an aesthetic statement.

Personalized Spaces for Multigenerational Living
The residence is carefully crafted to cater to the diverse needs of a multigenerational family. On the ground floor, a dedicated Puja room reflects traditional Indian craftsmanship, while a fully equipped gym promotes physical wellness.
The first floor hosts the son’s private quarters, featuring a study room and a home theater lounge. These spaces encourage productivity and leisure, aligning with the younger generation’s lifestyle.
The master suite is designed as a tranquil retreat, complete with a private terrace and an integrated home office, allowing the owners to balance work and relaxation seamlessly.

The Parents’ Wing: A Sanctuary of Comfort
Understanding the importance of autonomy in joint family setups, Hiren Patel Architects designed a dedicated parents’ wing. This self-contained unit includes a private veranda, ensuring independence while remaining connected to the main house. The thoughtful zoning promotes privacy and ease of access, facilitating harmonious coexistence.


Central Veranda and Poolside Experience
At the heart of the residence lies a central veranda, overlooking a pool and a gazebo. This communal space serves as a gathering point for the family, symbolizing togetherness and relaxation. The poolside setting becomes an ideal backdrop for casual evenings and grand celebrations, epitomizing luxury living in Ahmedabad.

Architectural Facade and Climate-Responsive Design
The exterior facade is an exemplary blend of plastered surfaces and stone cladding, accentuated by flat roofs and deep overhangs. This modern architectural language is not merely aesthetic; it responds to Ahmedabad’s warm climate, ensuring thermal comfort within the residence.

Crafting a Legacy Through Timeless Design
The Luxury Residence Design by Hiren Patel Architects is more than a high-end home; it is a legacy project that embodies the aspirations and lifestyle of its inhabitants. Through a fusion of contemporary design principles and cultural sensibilities, HPA has crafted a space that transcends trends, celebrating individuality and family bonds.


Redefining Luxury Living in India
The luxury residence in Ahmedabad, designed by Hiren Patel Architects, stands as a benchmark in contemporary residential architecture. With its seamless indoor-outdoor transitions, tailored interiors, and climate-sensitive design, it exemplifies the future of high-end living in India. This architectural masterpiece is a testament to the power of thoughtful design, where function meets art, and luxury aligns with comfort.


All Photographs are works of Vinay Panjwani and Ishita Sitwala