Revitalizing Beijing's Quadrangle Courtyard Houses: A Modern Approach to Traditional Architecture
The article explores the renovation of a Beijing quadrangle courtyard house, blending traditional design with modern living spaces.
The traditional Beijing quadrangle courtyard houses, dating back over 800 years, embody the essence of northern Chinese residential architecture. These historic homes, characterized by their enclosed courtyards, have evolved over time to become less about family unity and more about communal living, often lacking the privacy necessary for modern lifestyles. However, as urban life becomes more complex, a new approach is emerging—one that blends traditional design with modern functionality. This article delves into the renovation of a Beijing quadrangle courtyard house, showcasing how it can be reimagined to meet the needs of contemporary living.




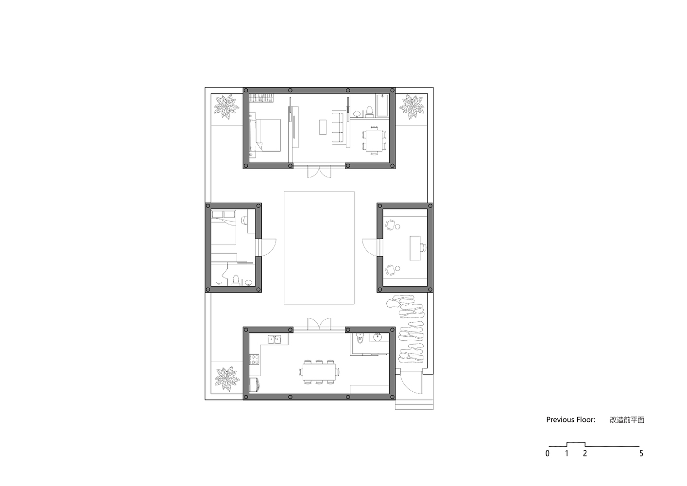
The Traditional Quadrangle House: A Historical Overview
Quadrangle courtyard houses, or "siheyuan," have been a staple in Beijing’s architectural history. With their central courtyards and surrounding rooms, these homes were designed to foster family togetherness. However, the communal nature of these houses has created challenges for privacy and personal space in modern times. Historically, the layout was practical for large families, but as society shifted, the need for more individualized living spaces grew. The quadrangle houses' evolution has been marked by a transition from private family homes to spaces that accommodate multiple households, which often led to the blurring of boundaries between public and private life.




The Vision Behind the Renovation: A New Living Model
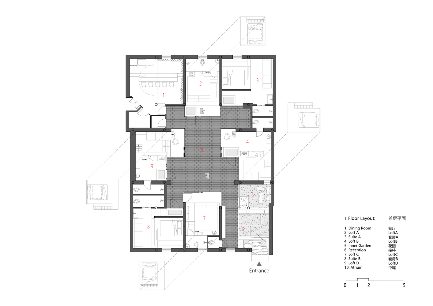
The renovation project of this particular Beijing quadrangle courtyard house, spearheaded by the owner in collaboration with Jimei Survey and Design, offers an innovative solution for modern living while respecting the historical significance of the architecture. The primary objective was to create a space that could serve both as a private home and as a rental property, providing flexibility for the owner while maintaining a sense of individuality for each occupant.




Key Design Features: Merging Tradition with Innovation
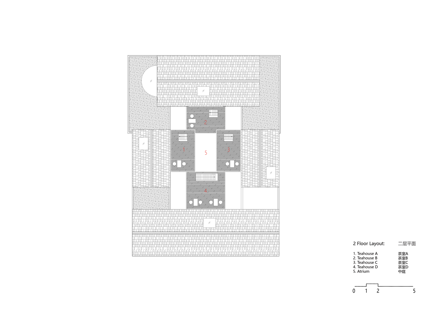
The project’s design introduces several bold elements that respect the traditional structure while adding a modern twist. The original courtyard space was elevated, creating a new dynamic between the outdoor and indoor environments. The most striking feature of the renovation is the "pigeon cage"—a new structure that emerges from the roof, providing a unique space for private reflection and interaction with nature.





Integration of Indoor and Outdoor Spaces
One of the most innovative aspects of the renovation is the integration of the outdoor environment with the interior. By lifting the courtyard and blurring the boundaries between indoor and outdoor, the design allows natural light, air, and views to flood into the space. The new courtyard merges seamlessly with the interior, offering a harmonious balance between nature and architecture.




The "Pigeon Cage": A Symbol of Modern Design
The newly built "pigeon cage" is a pure geometric form that stands in stark contrast to the historical roof structure. This suspended space, constructed using steel, is not physically connected to the main building but visually interacts with the traditional brick and wood elements. The glass skylights allow light to filter through, casting a soft glow into the space and creating a serene atmosphere. This modern addition symbolizes the intersection of old and new, providing a retreat that contrasts with the traditional setting.



Interior Design: Crafting Personalized Living Spaces
Inside the house, the design aims to create individualized living spaces that balance privacy with shared experiences. The use of materials such as terrazzo, blue bricks, and wood distinguishes the new spaces from the original structure. The materials create a contrast between the modern and traditional elements, enhancing the overall aesthetic appeal. The design also incorporates large, open common areas where friends and family can gather, fostering a sense of community within the home.



A New Chapter for Beijing’s Quadrangle Houses
The renovation of this Beijing quadrangle courtyard house represents a forward-thinking approach to preserving historical architecture while adapting it to meet contemporary needs. By blending old and new, the project demonstrates how traditional homes can evolve to accommodate modern lifestyles. It provides a model for future renovations that honor cultural heritage while creating functional, personalized spaces for today’s urban dwellers.


All Photographs are works of Haiting Sun