Revitalizing Diaspora Communities with Mixed-Use Urban Architecture: ABC K-Town by Steven Fong Architect
This article explores ABC K-Town’s innovative mixed-use urban architecture that revitalizes Toronto’s diaspora communities and small businesses.
Introduction to ABC K-Town and Its Urban Vision
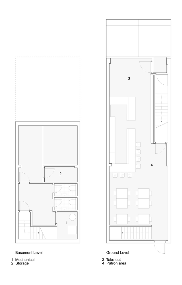
ABC K-Town, designed by Steven Fong Architect, is a transformative example of mixed-use urban architecture in Toronto’s Koreatown. This 3000 ft² project addresses the financial challenges faced by small businesses in diaspora communities, offering an innovative architectural solution that supports both economic resilience and cultural vibrancy. Completed in 2024, ABC K-Town reimagines how underused urban spaces can become engines of opportunity, blending hospitality, residential, and commercial functions within a flexible, community-focused framework.




Architecture as an Economic Tool
The heart of ABC K-Town lies in its mission to support immigrant entrepreneurs and small business owners who rely on narrow storefronts as economic lifelines. Traditionally, these storefronts—typically 4.5 meters wide—struggle to survive amid rising rents and aging infrastructure. Steven Fong Architect approached this challenge by maximizing leasable space, transforming the second and third floors, which were often neglected, into vibrant, adaptable zones. This mixed-use approach not only increases revenue potential but also aligns with the experience economy, where spaces must deliver memorable, multi-layered experiences.





Adaptive Reuse and the Experience Economy
One of the key features of ABC K-Town is its renovation strategy. The design elevates the quality of retail and dining spaces, ensuring that businesses offer more than just products—they offer experiences. The upper floors house residential amenities comparable to those found in upscale condominiums, complete with private outdoor spaces. This integration of hospitality, residential, and commercial uses reflects a forward-thinking approach to mixed-use urban architecture, where adaptability is prioritized.



Flexibility for a Changing Urban Landscape
Preceding the COVID-19 pandemic, the project anticipated the growing need for flexible spaces. ABC K-Town is designed for multi-functionality, supporting uses like Airbnb rentals, co-working spaces, and live/work arrangements. This flexibility allows the building to respond to shifting market demands and evolving lifestyles, making it a model for resilient urban design.



Urbanism as a Temporal Practice
ABC K-Town challenges traditional notions of urban planning, which often assumes permanence. Steven Fong Architect introduces the concept of temporal urbanism, recognizing that diaspora communities frequently adapt their environments in fluid and informal ways. By designing spaces that can evolve over time, ABC K-Town embodies a more dynamic vision of city-building—one that is responsive to the changing needs and aspirations of its residents.



A Proof of Concept with Broad Potential
At the ground level, a hospitality venture operates as a coffee shop by day and a bar by night, seamlessly blending commercial functions. Above, the second and third floors offer leasable office space and residential units, creating a holistic ecosystem that supports entrepreneurship, social purpose, and community building. ABC K-Town stands as a replicable model for other urban neighborhoods, demonstrating how mixed-use urban architecture can foster economic and social resilience.



A New Blueprint for Urban Revitalization
ABC K-Town by Steven Fong Architect exemplifies how architecture can address the nuanced challenges of diaspora communities and small businesses in urban centers. By harnessing the power of mixed-use urban architecture, the project not only revitalizes aging buildings but also reimagines the future of city life as adaptable, inclusive, and economically sustainable.


All the photographs are works of Scott Norsworthy, Rémi Carreiro Photography