Shonan Institute High School Library: A Harmonious Blend of Learning and Architecture
Shonan Institute High School Library blends classrooms and library spaces, fostering creativity and collaboration through open, nest-like architecture.
The Shonan Institute of Technology High School Library, designed by kousou + Fukei Co., is a revolutionary architectural feat located in Kanagawa, Japan. Completed in 2023, the 1,419-square-meter structure reimagines the traditional library by integrating it with classroom spaces to foster an environment of innovation, discovery, and collaboration.

This three-story building was created in response to the aging of the original library and adjacent classroom facilities. The result is a pentagonal structure that serves as both a library and a dynamic learning hub, redefining how educational spaces are used.

Design Philosophy
The design of the Shonan Institute High School Library goes beyond the conventional boundaries of classroom and library zoning. By integrating both functions within a single space on each floor, the architects envisioned a learning environment where students are encouraged to engage in spontaneous exploration, interact with diverse spaces, and build connections.

The library's architecture embraces openness, breaking away from the traditional concept of enclosed classrooms. The walls, random in arrangement and structure, contribute to a "nest-like" environment where students can find various spaces suited to their activities and learning preferences.


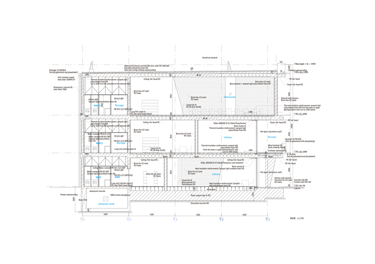
Structural Features and Layout
The building spans approximately 30 meters by 26 meters and rises to a maximum height of 14 meters. Its three floors are designed with increasing floor heights—3.5 meters on the first floor, 4.5 meters on the second, and 5.5 meters on the third. This progression enhances the spatial experience as students ascend the building.

The random arrangement of reinforced concrete (RC) walls creates an intricate structure that evenly distributes loads across the floors. These walls, spanning various shapes and sizes, form a loosely connected layout that fosters a sense of fluidity and adaptability.

Each floor houses a classroom and a library, blending the two functions seamlessly. The classrooms are designed in an open-school style, minimizing boundaries and promoting interactions between indoor and outdoor environments.

Creating Fluid and Dynamic Spaces
The library’s design prioritizes flexibility and responsiveness to the external environment. By removing traditional walls and introducing open layouts, the architects created a more fluid space that invigorates the entire campus.

The design also emphasizes natural light and ventilation, ensuring that students feel connected to the outside world even while indoors. The absence of uniform directional layouts allows students and teachers to form their own spatial arrangements, fostering creativity and collaboration.

A Nest-Like Environment for Learning
One of the most striking aspects of the Shonan Institute High School Library is its nest-like architecture. The irregular placement of walls and the interconnected spaces encourage students to explore, discover, and create their own learning environments.

The library and classrooms are no longer distinct entities but rather interconnected spaces that inspire mutual growth. This design approach promotes a sense of freedom, allowing students to engage with the space in ways that traditional classrooms could not accommodate.

Architectural Innovation in Education
The Shonan Institute High School Library sets a new benchmark for educational architecture. By blending classrooms and library spaces, the design fosters a learning environment that emphasizes adaptability, collaboration, and innovation.


This groundbreaking project by kousou + Fukei Co. not only meets the functional needs of the school but also redefines how students and teachers interact with educational spaces. The architecture itself becomes a tool for learning, encouraging curiosity and connection at every turn.


Conclusion
The Shonan Institute High School Library by kousou + Fukei Co. is a masterpiece of modern educational architecture. Its integration of library and classroom spaces, combined with its innovative structural design, creates a harmonious environment where students can thrive academically and socially.


By prioritizing openness, adaptability, and a connection to the natural environment, the library represents a forward-thinking approach to education that is both inspiring and transformative.



All Photographs are work of Shigeo Ogawa