Sustainable Cultural Hub: Tasik Creative and Innovation Center in West Java by SHAU Indonesia
Tasik Creative and Innovation Center: Sustainable architectural gem fostering creativity in West Java's vibrant cultural landscape.
Explore the innovative Tasik Creative and Innovation Center, a pinnacle of 'socio-climatic' design by SHAU Indonesia. Commissioned by former Governor Ridwan Kamil, this architectural marvel supports Tasikmalaya's emerging creative communities in the heart of West Java, celebrated for its rich weaving heritage.





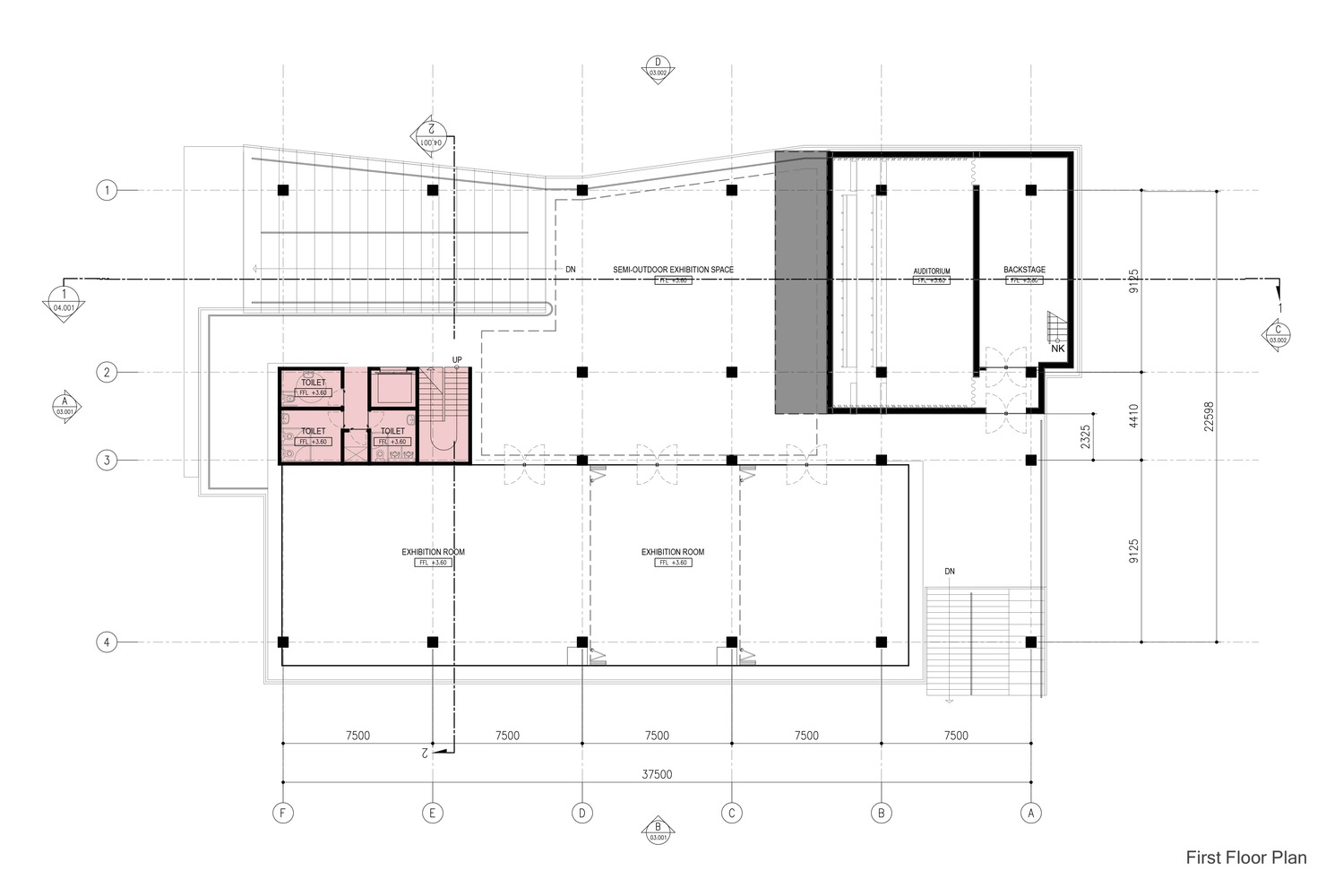
Design Ingenuity and Strategic Location
Nestled within the Dadaha sports complex, the center ingeniously preserves the existing parking lot while elevating key spaces. The design incorporates a grand seating staircase, creating a covered, semi-outdoor haven for diverse activities and community engagement overlooking a vibrant public plaza.







Architectural Leadership and Vision
Under the visionary leadership of Florian Heinzelmann and Daliana Suryawinata, SHAU champions a tropical cultural design. The incorporation of balconies, terraces, and semi-outdoor spaces underscores the building's public character. A thoughtfully planned route through the exhibition area ensures accessibility at all hours.




Community-Driven Development
Engaging the creative pulse of Tasikmalaya, URGTSK, a local creative community, played a pivotal role in programming the building. The participatory approach early in the design stage ensures the center aligns seamlessly with user needs, promoting co-working spaces, an auditorium for events, and enriching movie screenings.










Sustainability at its Core
The center boasts woven façade elements strategically deployed to minimize solar heat gain and provide shading, contributing to its energy-efficient design. Tailored panel densities, responding to internal programs and external vistas, showcase a commitment to sustainable architecture.
Tasik Creative and Innovation Center emerges not just as an architectural triumph but as a sustainable hub fostering cultural and educational endeavors. Discover a space where design brilliance meets community-centric values, creating a beacon for creativity in West Java.
All Photographs are the work of Andreaswidi