Sustainable Office Design: The Billboard Headquarters by Branco del Río Arquitectos
An adaptive reuse project transforming an industrial workshop into a sustainable, efficient, and nature-integrated office space in Portugal.
Billboard Headquarters, designed by Branco del Río Arquitectos, is a model of sustainable office design through adaptive reuse. Located in Torre de Vilela, Portugal, the project transforms an old metal workshop into a functional and environmentally conscious headquarters for a billboard company. This meticulous design harmonizes industrial elements with modern efficiency, showcasing the potential of upcycling and sustainable architecture in office spaces.




Adaptive Reuse: Breathing New Life into an Industrial Space
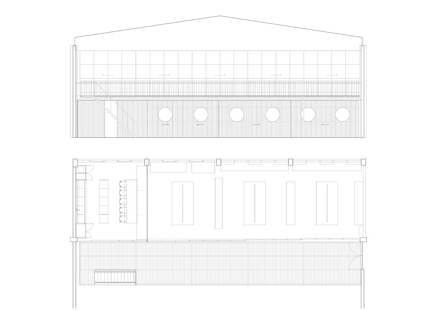
The project reimagines an existing industrial warehouse, tailoring it to meet the needs of the billboard company while maintaining its industrial character. The design process incorporated two distinct phases: renovating the warehouse and constructing a new office building on a narrow adjacent plot.
In the warehouse, minimal yet impactful adaptations were made. Ground-level factory offices were converted into changing rooms, a screwing room, and a laser cutting machine area. The upper floor houses a kitchen dining area and a production room. Additionally, a new metal gallery extends the building's usability, featuring a retractable railing for loading and unloading operations. All structural and interior components, including furniture and partitions, were fabricated on-site, often reusing existing materials.





Innovative New Office Design
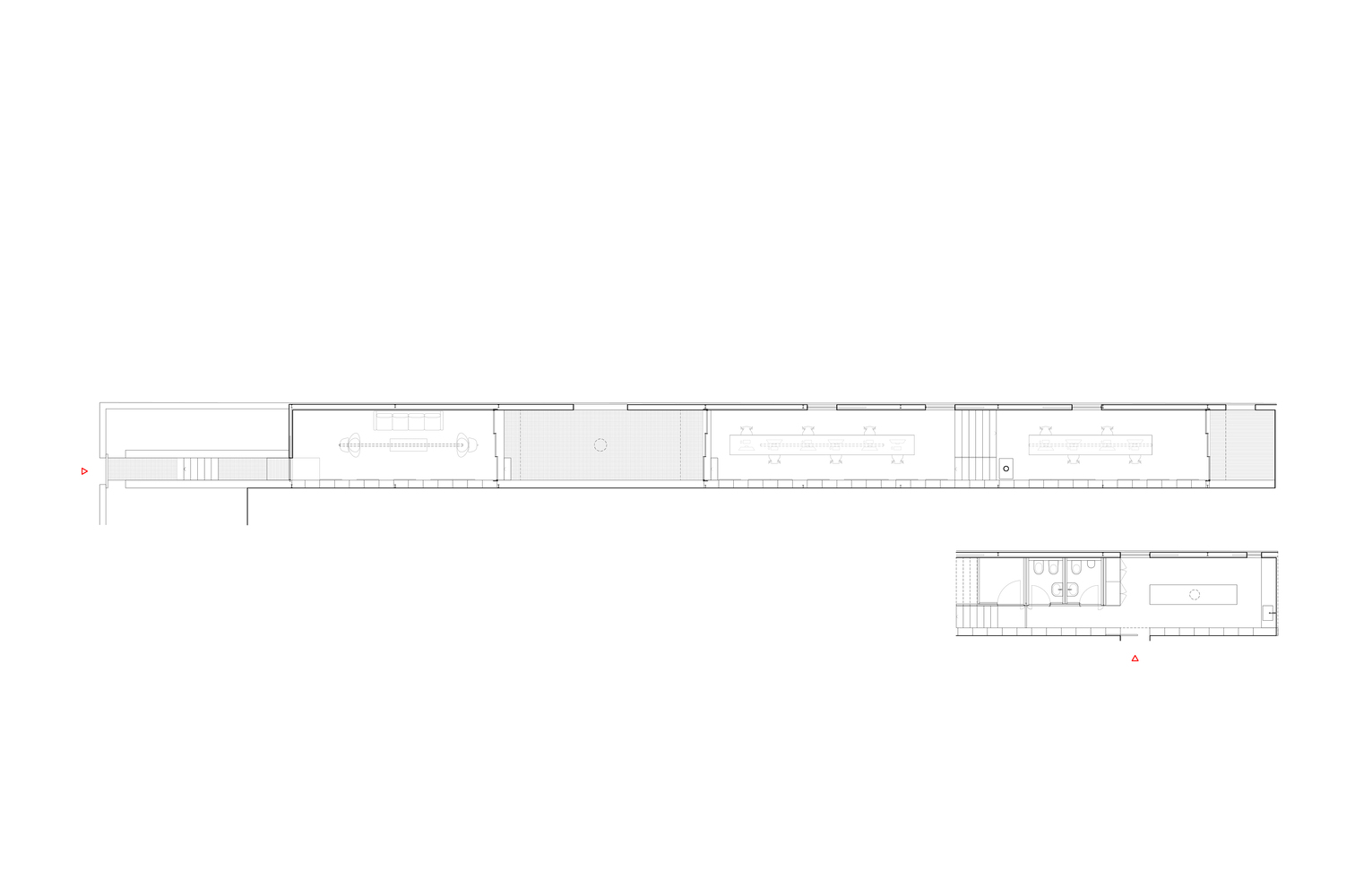
The newly constructed office space maximizes a restricted plot, creating a long, narrow building measuring 3 by 50 meters. To break the monotony and integrate nature, courtyards punctuate the building, bringing natural light and ventilation into the interior. These courtyards blur the lines between indoor and outdoor spaces, creating a seamless flow between the lush vegetation and the matte black minimalist aesthetic of the office.
Sliding windows enhance spatial connectivity, while the choice of a matte black finish emphasizes the interplay of light and shadow. This design not only complements the natural surroundings but also regulates temperature and enhances energy efficiency.



A Commitment to Sustainability and Craftsmanship
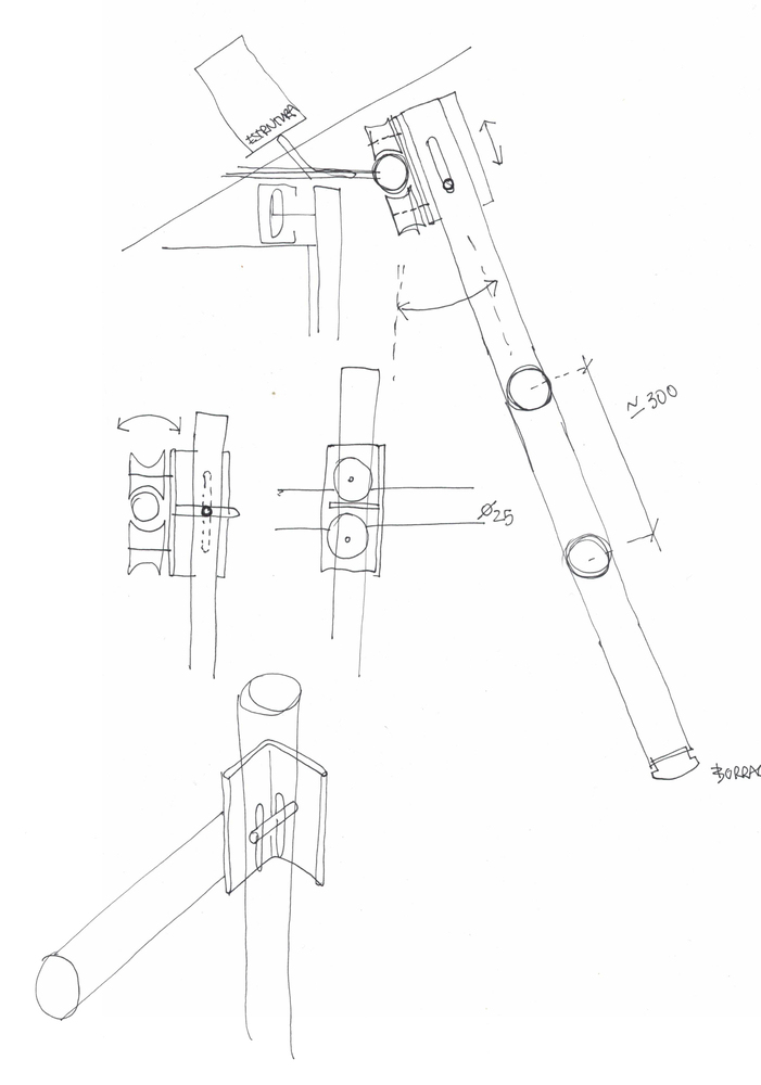
Billboard Headquarters stands as a testament to sustainable design and expert craftsmanship. Every element of the building, from its structure to its shading systems, was crafted using metal components produced in the adjacent factory. This approach enabled a lightweight and easily assembled building system, eliminating the need for adhesives or screws. Designed with future adaptability in mind, the building can be dismantled and repurposed or recycled.
The interior design features wooden finishes that enhance acoustic and humidity control. A radiant floor heating system and a central wood stove provide efficient winter climate control, while summer cooling relies solely on shading and natural ventilation. These elements reflect a commitment to low-energy solutions that prioritize environmental harmony.



The Role of Slow Design
The phased development process embraced the principle of "slow design," allowing the project to evolve alongside the company’s workflow. Careful prototyping and iterative adjustments ensured that the final result met the client’s needs while achieving a high standard of craftsmanship. The project was realized with minimal manpower—just two skilled locksmiths—demonstrating the power of precision and dedication in construction.







A Blueprint for Sustainable Workspaces
Billboard Headquarters by Branco del Río Arquitectos exemplifies the potential of sustainable office design in adaptive reuse. By transforming an industrial site into a functional, eco-conscious workspace, the project offers a blueprint for balancing sustainability, efficiency, and aesthetic appeal. This innovative approach to architecture highlights the future of workspaces that prioritize both human and environmental well-being.






