The Harmony of Tradition and Modernity: Molí House by Sagristà-Simó in La Puebla, Spain
This article explores Molí House, a sustainable residence in Sa Pobla, Spain, that harmoniously integrates traditional architecture with modern design.
Located in the scenic landscape of Sa Pobla, Spain, the Molí House, designed by architects Iván Moret Salvador and Magdalena Simó Serra of Sagristà-Simó, is a masterful integration of traditional architectural elements with contemporary design sensibilities. The house, completed in 2011, spans an area of 282 square meters and is a testament to the harmonious coexistence of built form and natural environment.

Architectural Context and Landscape
Molí House sits in a landscape characterized by its agricultural use, specifically in the "Marjals" of Sa Pobla, where the geometry and regularity of the plots dominate. This irrigated area is a flat, open landscape bordered by the majestic Serra de Tramuntana. The only vertical interruptions in this horizontal expanse are the historic mill towers used for drawing water and the ponds for storing it. This setting provides a unique backdrop that significantly influences the architectural design and orientation of the Molí House.


Design Philosophy
The design of Molí House is deeply rooted in the traditional architecture of the region, incorporating elements such as patios, walls, latticework, and vines. These features not only connect the house to its cultural context but also enhance its environmental performance. The house is oriented longitudinally at the bottom of the plot, perpendicular to the access road, maximizing the cultivation space and integrating the nearby mill and pond into the design.


Materiality and Construction
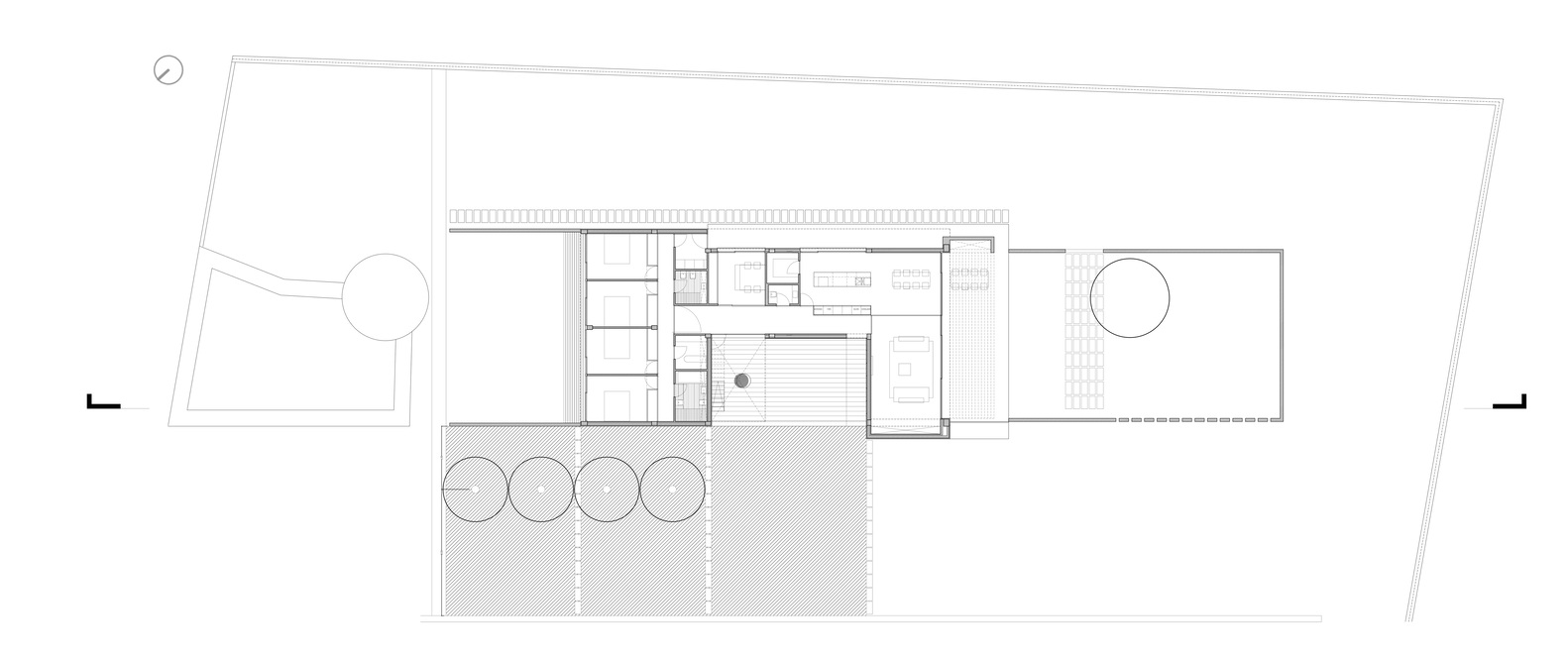
The use of sandstone, a material prevalent in the agricultural buildings of the area, textures the exterior volume of the house, creating a visual and tactile connection to its surroundings. The ground floor is built at ground level and structured around two large patios, each at one end of the house. These patios serve as transitional spaces that filter the relationship between the house and the nearest landscape, allowing for a seamless blend between indoor and outdoor environments.




Spatial Organization
The interior layout of Molí House is designed to maximize the natural light and views. The southwest orientation is reserved for the day areas, including the living room and kitchen, which benefit from ample sunlight and views of the landscape. The northeast part houses the bedrooms, providing a quieter, more private space. A longitudinal fluid space runs through the entire house, housing multifunctional areas such as a study and an access porch garage. This central space allows for a continuous cross-sectional view of the landscape, connecting the interior spaces with the surrounding orchard and distant mountains.



Interior Design and Materials
The interior of Molí House is characterized by its simplicity and warmth, achieved through the use of local materials. Natural stone paving from Binissalem is used throughout, complemented by wooden elements such as cupboards and sliding doors. These materials not only add warmth to the interior but also provide flexibility in the use of space. The minimalist approach to material selection ensures that the focus remains on the interaction between the interior spaces and the natural surroundings.


Sustainability and Environmental Considerations
In addition to its aesthetic and functional qualities, Molí House incorporates several sustainable design principles. The use of locally sourced materials reduces the environmental impact of transportation and supports the local economy. The design of the patios and the orientation of the house enhance natural ventilation and lighting, reducing the need for artificial cooling and lighting. These features contribute to the overall energy efficiency of the house, making it a sustainable model of residential architecture.


Molí House by Sagristà-Simó is a remarkable example of how traditional architectural elements can be seamlessly integrated into modern design to create a space that is both functional and aesthetically pleasing. The house’s thoughtful design, materiality, and orientation not only respect the cultural and environmental context but also enhance the living experience of its inhabitants. As a result, Molí House stands as a testament to the timeless appeal of architecture that harmonizes with its natural surroundings and cultural heritage.
All the photographs are work of Carlos Manuel González Baute