University Stadium Renovation in Porto: Transformation by Crea – Arquitetos
The University Stadium in Porto undergoes a modern renovation by Crea – Arquitetos, blending heritage with contemporary sports architecture.
Architectural Revival of the University Stadium in Porto
The University Stadium in Porto has undergone a remarkable transformation led by Crea – Arquitetos, redefining its architectural legacy through a careful renovation and extension project. Situated in Quinta do Campo Alegre and originally inaugurated in 1953, the stadium serves as a key facility for the University of Porto and the local community. The comprehensive renovation reflects the growing emphasis on preserving modernist structures while adapting them to contemporary needs.


This ambitious project rejuvenates the stadium’s grandstand building and introduces two new structures for the CDUP headquarters, harmonizing modern interventions with the rationalist architectural spirit of the original design.


Contextual Significance and Historical Foundation
Located in Porto’s green landscape, the University Stadium has been a prominent sports and community hub since its opening. Designed with a rationalist architectural influence, the stadium's original structure stands as a testament to post-war modernist ideals, characterized by geometric clarity, symmetry, and functionality.



The renovation, initiated by the University of Porto and executed by Crea – Arquitetos, aimed to safeguard this architectural heritage while enhancing the stadium’s facilities for future generations. The long process, interrupted by the COVID-19 pandemic, culminated in the stadium’s recent reopening to the public.



Renovation of the Grandstand Building
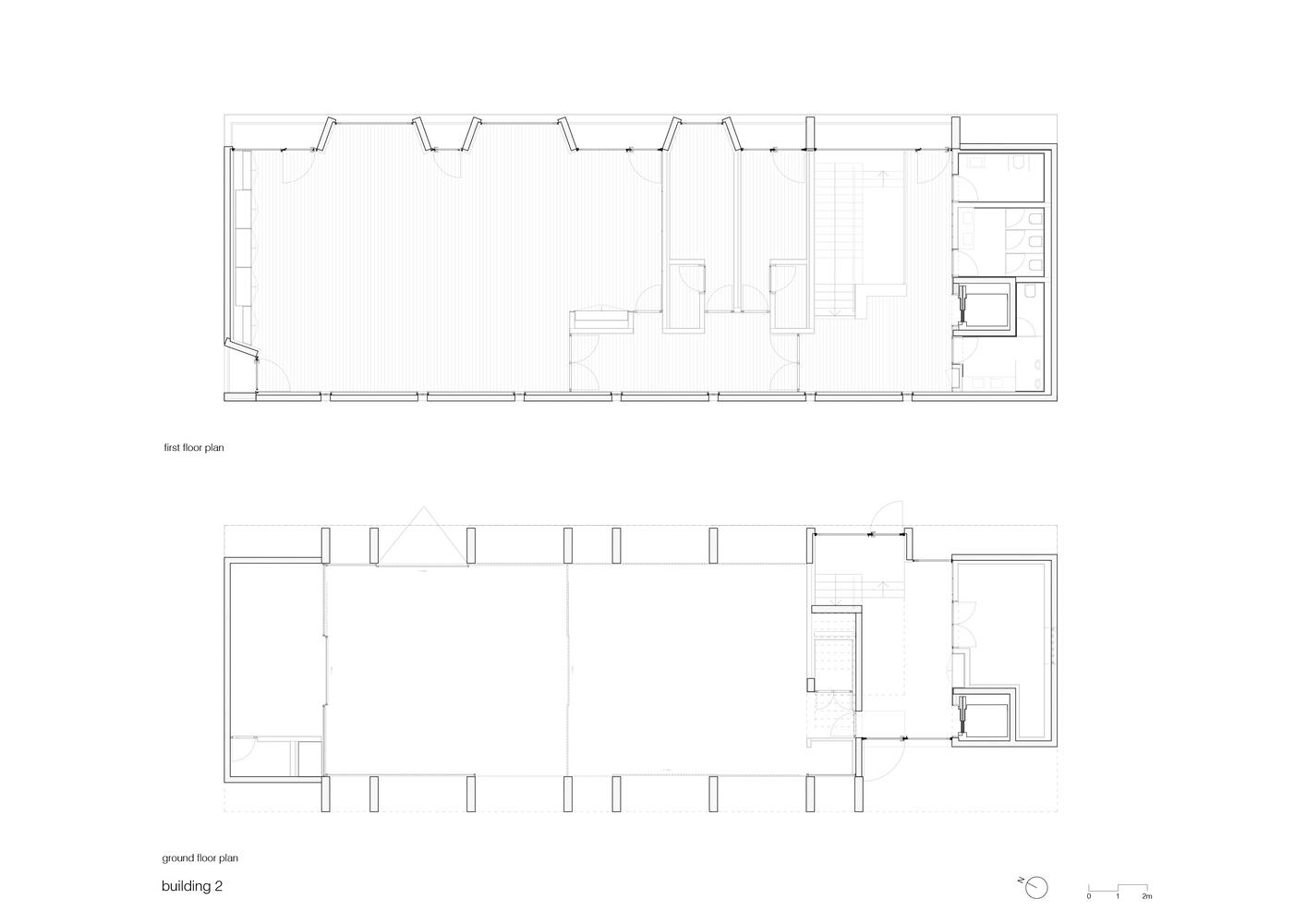
At the heart of the University Stadium renovation in Porto is the meticulous rehabilitation of the existing grandstand building. The structure, with its strict symmetry and rhythmically aligned pillars, forms a dignified entrance that leads spectators into the stadium through a porticoed loggia. Carved granite bas-reliefs depicting classical mythology and ancient games further enhance the building’s artistic and cultural value.


Crea – Arquitetos preserved these defining elements while improving the building’s structural stability. Interior spaces were reimagined to accommodate modern support areas for athletes and visitors, ensuring seamless access to the playing fields. The staircases leading to the spectator stands were retained and complemented by a redesigned roof that significantly expands the covered area, enhancing spectator comfort.


Integration of New Buildings for CDUP Headquarters
Extending the stadium’s functional capacity, Crea – Arquitetos introduced two new buildings along the longitudinal axis of the grandstand. These contemporary structures house the headquarters of CDUP, the University of Porto’s sports center, providing offices, meeting rooms, and multipurpose spaces for university students and staff.



While the new buildings draw inspiration from the grandstand’s compositional rigor, they introduce a more fluid and dynamic architectural language. The strict symmetry of the original structure is reinterpreted, allowing the new volumes to respond more freely to the site’s functional and aesthetic demands.



Seamless Connection with the Playing Fields
A defining feature of the University Stadium renovation in Porto is the seamless visual and spatial connection between the buildings and the playing fields. To the east, the facades open generously toward the sports grounds. Concrete pillars, arranged in a deliberate rhythm, form balconies and frame panoramic views of the lawn, enhancing the experience for both spectators and athletes.


The structural rhythm of the pillars echoes the grandstand’s original metric, establishing a visual dialogue between old and new. This thoughtful integration ensures that the modern interventions remain respectful of the stadium’s historical identity.


Materiality and Architectural Cohesion
Material selection plays a crucial role in unifying the renovation with the stadium’s architectural heritage. Pigmented concrete, in a warm terracotta tone, clads the new buildings’ facades and extends into their interiors. This choice creates a striking contrast with the grandstand’s sober palette, introducing a vibrant yet refined atmosphere.



The terracotta hue harmonizes with the natural surroundings, echoing the earthy tones of the adjacent trees and landscape. This synthetic approach to materiality underscores the renovation’s commitment to simplicity and cohesion, bridging the past with the present.



Modern Facilities Supporting University and Community Life
The revitalized University Stadium not only serves as a sports venue but also emerges as a social and academic hub. The CDUP headquarters within the new buildings provides versatile spaces for administrative work, student gatherings, and collaborative activities. These additions enrich the university’s infrastructure, fostering a sense of community and promoting an active lifestyle among students and residents.


Access points were carefully designed to enhance usability. Spectators enter through the historic staircases, while athletes and staff benefit from modernized entryways aligned with the stadium’s central portico. This approach ensures that the stadium remains welcoming and functional for diverse user groups.


Balancing Preservation and Innovation
The renovation of the University Stadium in Porto exemplifies the delicate balance between architectural preservation and innovation. Crea – Arquitetos honored the rationalist principles of the 1953 design while introducing contemporary architectural elements that address modern requirements.

The project reaffirms the importance of adaptive reuse in stadium architecture, demonstrating how historic sports facilities can be revitalized without losing their cultural essence. By weaving together history, functionality, and aesthetics, the University Stadium renovation stands as a model for future interventions in Portugal and beyond.


Architectural Legacy Redefined
The transformation of the University Stadium by Crea – Arquitetos signifies more than a physical renovation; it represents the evolution of an architectural landmark. It highlights the potential of stadium renovation projects to contribute to urban renewal, sustain architectural heritage, and enhance community engagement.



Porto’s University Stadium now stands renewed—an intersection of history and progress—inviting spectators, athletes, and students to experience a space where past and present coexist in architectural harmony.



All Photographs are works of Fernando Guerra | FG + SG