Waste to Energy Architecture: A Sustainable Solution by INI Design Studio
This article explores the innovative Waste To Energy Campus by INI Design Studio, highlighting its sustainable architecture and community impact
Waste management is a global issue with significant local impacts. Reducing waste generation through prevention, reduction, recycling, and reuse is a core concern addressed by international agreements such as the Paris Accord and local initiatives like India's Swachh Bharat (Clean India) Mission. A shining example of addressing this challenge through innovative architecture is the Waste To Energy (WTE) Campus in Jamnagar, India, designed by INI Design Studio.


Project Overview
The WTE Campus, covering an area of 7825 square meters, was completed in 2021. It converts 2,20,000 tons of municipal solid waste (MSW) annually into 7.5 MW of clean energy, sufficient to power 15,000 homes. The project not only aims at energy generation but also transforms a 17-acre barren land into a greenbelt with social infrastructure, promoting a sustainable community lifestyle.


Architectural Design and Functionality
Form Follows Function
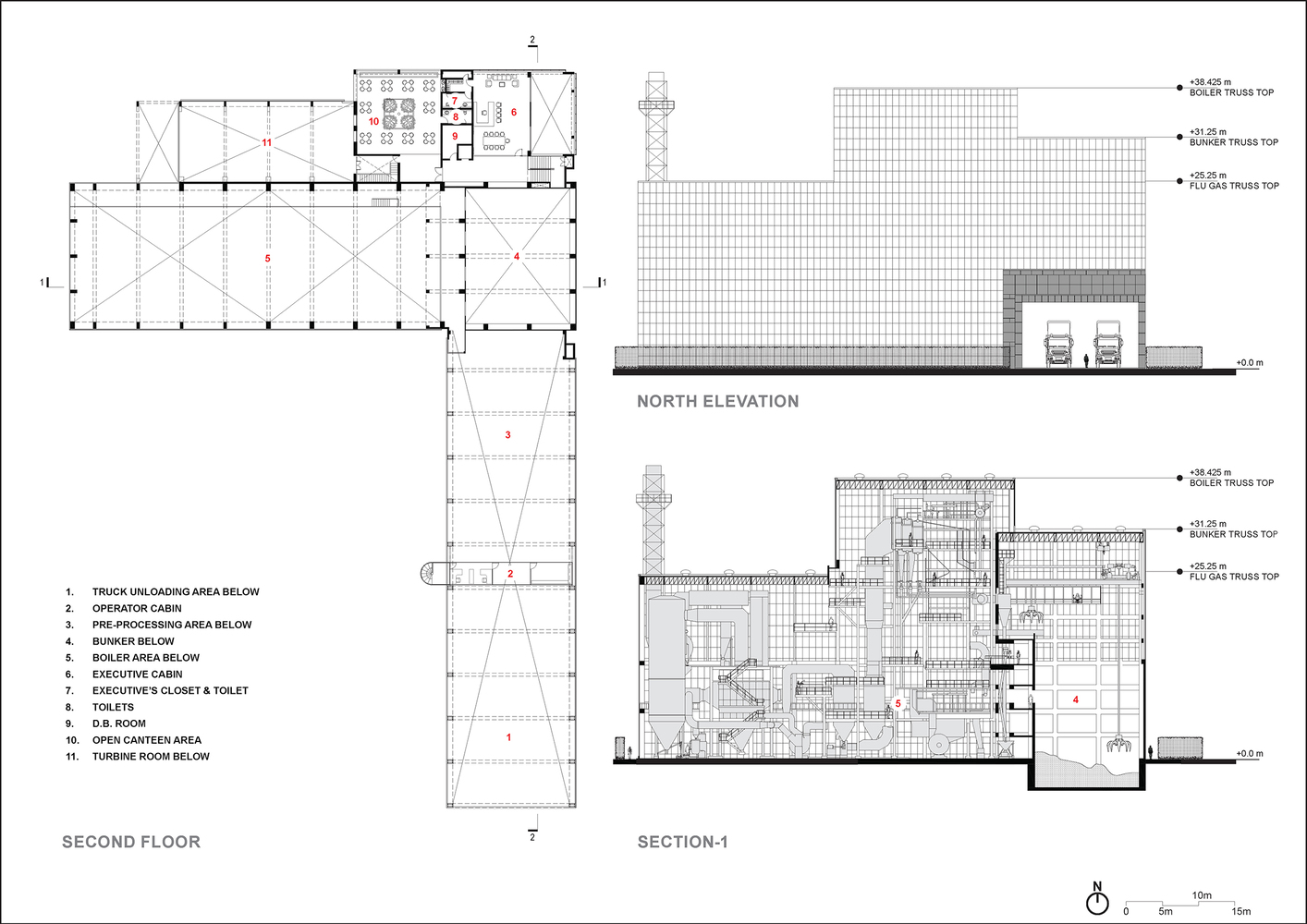
The design of the WTE Campus follows the principle of "form follows function." The structure is a simple, open-span, lightweight prefabricated steel building that optimizes process flow through vertical stacking and appropriate equipment sizing. This design choice ensures efficient waste processing with minimal human intervention.


Sustainable Materials and Construction
The campus features a translucent, recyclable multilayered polycarbonate façade system. This material selection enhances thermal performance, reduces operational costs, and minimizes energy consumption. The lightweight nature of the façade allows for easy installation and reconfiguration, while its high strength provides resistance to impact and fracture.


Environmental and Social Impact
Water Conservation and Landscaping
Water conservation is a key focus of the WTE Campus. Unlike traditional landfills, the campus provides a green social landscape, including orchards, green hedge walls, and water bodies that improve the microclimate. Over 40% of the landscaping consists of drought-tolerant species, and the campus utilizes treated municipal wastewater for irrigation.


Renewable Energy and Emission Control
The WTE Campus employs controlled combustion technology to process waste without spreading odor, pathogens, or harmful emissions. It complies with the Municipal Solid Waste (MSW) Rule 2016 and European Emission Norms. The project also explores additional value chains, such as producing BioCNG, recovering recyclable plastics, and converting fly ash into green construction materials.

Community and Educational Initiatives
The design of the WTE Campus includes spaces for community activities and educational purposes. It hosts research platforms and educational trips, contributing to social upliftment and increasing awareness about sustainable waste management practices.

Awards and Recognition
The WTE Campus has received significant accolades, including being recognized as "India's first platinum-rated net-zero Green Waste-to-Energy Campus" by the Indian Green Building Council. It also won the 2023 Green Good Design Award from The Chicago Athenaeum: Museum of Architecture and Design and The European Centre for Architecture Art Design and Urban Studies.
The Waste To Energy Campus by INI Design Studio is a landmark project in waste to energy architecture. It exemplifies how innovative architectural design can address waste management challenges while promoting sustainability and community well-being. This project stands as a model for future waste management solutions, demonstrating the potential of architecture to transform environmental issues into opportunities for sustainable development.



All photographs are work of INI Design Studio