Bali Biophilic Architecture: Cala Blanca House by Biombo Architects
Discover the Cala Blanca House in Bali, a masterpiece of biophilic architecture by Biombo Architects, blending luxury with nature seamlessly.
In the heart of Pererenan, Bali, the Cala Blanca House stands as a testament to Bali biophilic architecture, an architectural approach that seeks to connect its inhabitants with nature. Designed by Biombo Architects, this residential marvel is part of the "Biombo Secrets" villa hotel compound, offering a unique holiday experience enveloped in architectural beauty and natural tranquility.




The Architectural Vision
Unique Challenges and Innovative Solutions
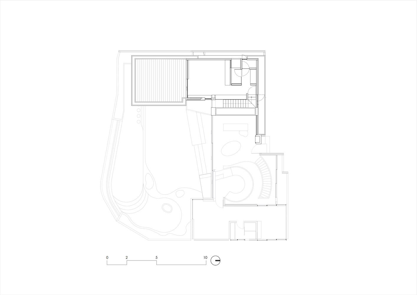
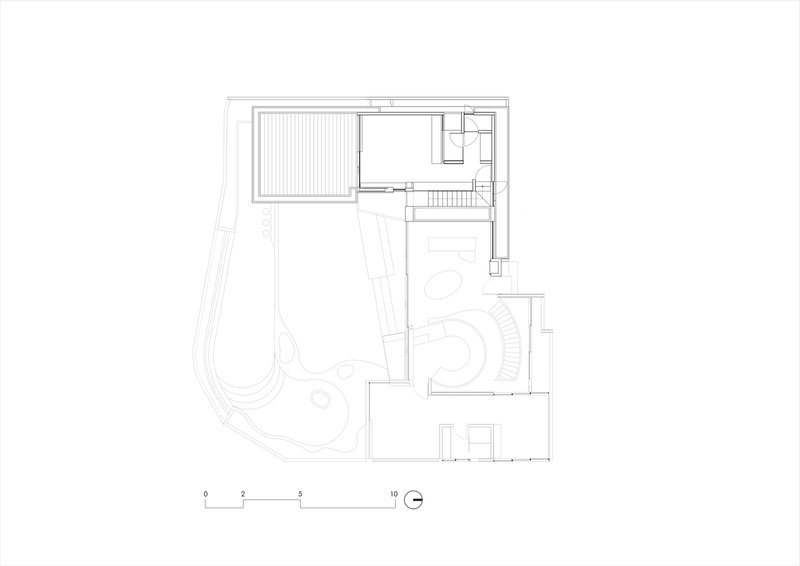
Occupying a plot size of 450 m², the Cala Blanca House is designed to maximize space and privacy, ensuring a spacious feel and intimate setting amidst a shared villa hotel environment. The strategic placement of the villa along the land's longest side facilitates a visual amplitude and privacy, thanks to the thoughtful layout and level variations between villas.





A Common Gateway to Private Paradises
A shared parking area leads to a common entrance, where a zigzag walkway, bordered by lush greenery and natural stone, guides guests to their private villas. This communal approach fosters a sense of exclusivity and discovery, setting the stage for the biophilic experience within.



The Heart of Biophilic Design
Interior Spaces Where Nature Takes Center Stage
Upon entering the Cala Blanca House, guests are greeted by an expansive living area with a high-sloped timber ceiling that unifies the kitchen, living room, and dining room. The design’s hallmark is its incorporation of nature: palm trees and plants surround the sunken sofa and kitchen area, making the natural world an integral part of the living space. This concept is rooted in the belief that close contact with nature enhances physical well-being, reduces stress, and promotes mental health.





Biophilic Elements: Light, Air, and Material
The emphasis on natural light, ventilation, and the use of natural materials such as timber and stone enhances the connection to nature, ensuring that each element contributes to a sense of well-being and comfort.


Luxurious Living Across Three Floors
The villa boasts four luxurious bedrooms, with three on the ground floor and a grand master suite on the first floor, featuring a terrace overlooking the surroundings. The basement serves as an entertainment hub with a speak-easy bar and cinema room, designed not to disturb the tranquility of the sleeping quarters above.


The Pool: A Natural Oasis
The saltwater pool, with its organic design and custom marble pieces, is a highlight of the villa, offering a private beach experience under a canopy of coconut trees. This element exemplifies the seamless integration of architecture and nature, characteristic of Bali biophilic architecture.




A Harmony of Design and Nature
Cala Blanca House by Biombo Architects is a beacon of Bali biophilic architecture, marrying the island's natural beauty with modern design. It represents a holistic approach to living, where architecture not only serves functional needs but also nourishes the soul by fostering a deep connection with the natural world.



All photographs are work of Sheila Man Baliinteriors, KIE