Coastal Marketplace Architecture: Unveiling the Design of Marketplace of North Coast Aranya by Atelier Z+
Explore the Marketplace of North Coast Aranya, a perfect blend of coastal marketplace architecture enhancing community interaction and scenic integration.
In the evolving landscape of architectural design, coastal marketplace architecture stands out by blending functionality with scenic beauty. The Marketplace of North Coast Aranya, designed by Atelier Z+, serves as a prime example, showcasing how architecture can enhance public spaces in coastal areas.






The Concept of Coastal Marketplace Architecture
Defining Coastal Marketplace Architecture
Coastal marketplace architecture involves designing commercial spaces that not only serve the community's needs but also respect and enhance the natural coastal environment. This includes considering factors like view preservation, integration with the landscape, and cultural context.






Importance in Urban and Community Planning
Such architectures play a crucial role in urban development, providing vital social hubs that bolster local economies and enhance the livability of coastal urban areas. They are designed to be resilient, accommodating the unique climatic conditions of coastal areas.






Design Analysis of Marketplace of North Coast Aranya
Site and Layout
Strategic Placement
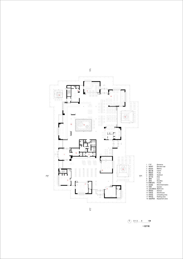
Situated in Qin Huang Dao Shi, China, the marketplace strategically minimizes obstruction of sea views while integrating seamlessly with the residential area. The design employs a flat, single-story structure to ensure low-profile visibility and minimize sight interference with nearby apartments.






Architectural Design and Innovation
Structural Composition
The marketplace features a series of small roofed structures that vary subtly in size, forming unique stalls that house various businesses. This modular approach allows for flexibility and expansion, reflecting the dynamic nature of marketplace activities.






Integration with the Environment
The design extends into a sinuous gallery that wraps around the marketplace, creating green courtyards and a continuous, welcoming interface with the park. This layout fosters a pleasant entry experience and accommodates outdoor setups, crucial for peak seasons and weekend markets.




Sustainability and Structural Efficiency
Material Use and Sustainability
The marketplace employs a dual construction system: concrete shear wall units for distinct shops and a steel frame structure for public plazas and peripheral galleries. This approach not only differentiates the spaces functionally but also highlights sustainable building practices.




Environmental Impact
Incorporating green courtyards and maintaining a low-rise profile ensures that the marketplace respects the coastal environment, mitigating the impact on the local ecosystem and enhancing biodiversity.




Impact on Community and Culture
Enhancing Community Interaction
The marketplace is envisioned as a miniature urban center, fostering community interaction and economic activity. It serves as a cultural and social hub, where the architecture itself facilitates community bonding and engagement.



Cultural Reflection and Continuity
The design reflects local architectural traditions while introducing modern elements, creating a balance between heritage and innovation. This cultural continuity strengthens the community's identity and promotes a sense of belonging.


The Marketplace of North Coast Aranya by Atelier Z+ is a benchmark in coastal marketplace architecture, demonstrating how thoughtful design can create vibrant, functional, and environmentally sensitive public spaces. This project exemplifies how architecture can respond to and enhance a specific locale, proving that commercial spaces can be both beautiful and beneficial to the community. Through this design, Atelier Z+ has crafted not just a marketplace but a pivotal community landmark for the Aranya coast.


All photographs are work of Shengliang Su, Min Yang