Hushan Reservoir Environmental Education Center: A Model of Sustainable Educational Architecture in Taiwan
This article explores the Hushan Reservoir Environmental Education Center as a model of sustainable educational architecture in Taiwan, blending nature and culture.
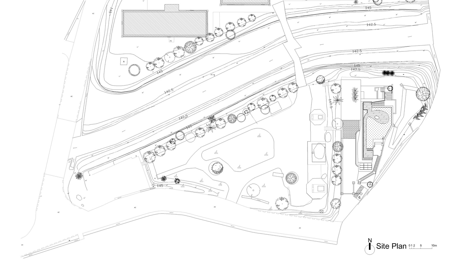
The Hushan Reservoir Environmental Education Center, designed by KDS Architects, is an architectural landmark in Douliu City, Yunlin County, Taiwan. This project was developed as part of an environmental conservation initiative during the construction of the Hushan Reservoir. Beyond serving as an ecological education space, the center is a response to local cultural and historical significance, integrating sustainable design principles with deep-rooted community connections.





A Vision for Sustainable Educational Architecture
Designed to be more than just an education hall, the Hushan Reservoir Environmental Education Center embodies an approach that harmonizes architectural expression with historical and environmental themes. The project reflects a broader commitment to sustainable educational architecture in Taiwan, where cultural identity, ecological awareness, and environmental stewardship merge into a single architectural narrative.


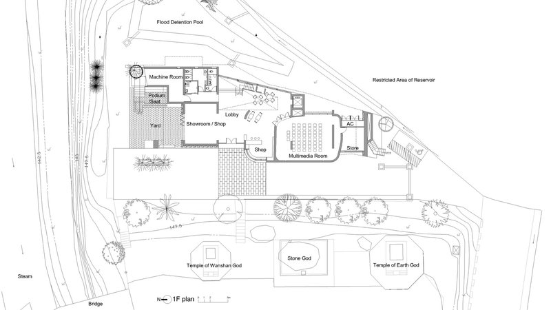
One of the defining cultural elements of the site is the Stone God, a sacred local landmark that was relocated due to the reservoir’s construction. Historically, residents would circle it three times as a ritual for protection while herding cattle. Along with the Wanshan God and the Earth God, it was moved to an open space in front of the dam, creating the Three Gods Park. The education center, positioned between this park and the dam, symbolizes conservation, cultural continuity, and the evolving relationship between nature and human settlement.


Architectural Concept: A Dialogue Between Nature and Culture
The design of the center draws inspiration from three key natural elements—stone, water, and earth—reflecting the region’s historical, environmental, and emotional significance. The architectural form of the building is deliberately shaped to symbolize the revealing of the Stone God, marking the shifts in history and landscape. Its trapezoidal volume mirrors the dam’s structure, fostering a visual and symbolic connection between the reservoir, the cultural heritage of the site, and the surrounding settlements.



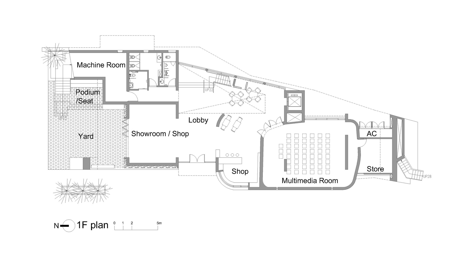
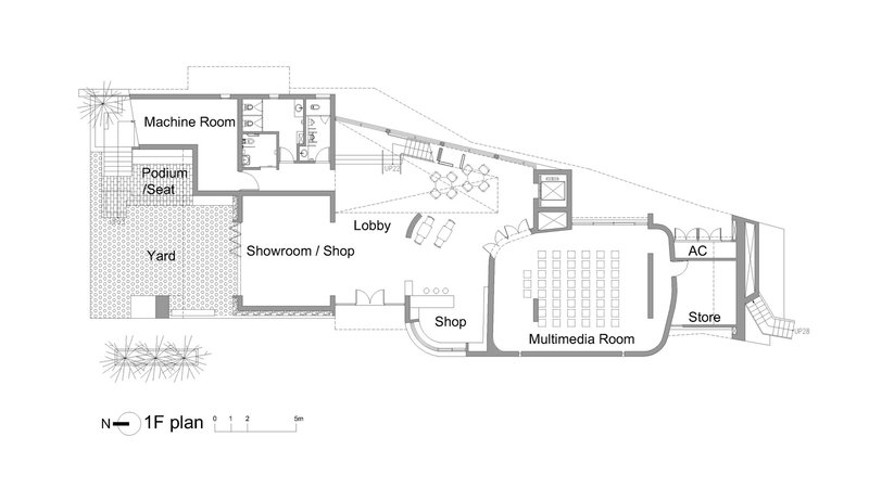
A core aspect of the center’s architectural philosophy is fluidity. The interior of the structure is designed as a column-free space, allowing an unobstructed flow between areas. This seamless spatial experience aligns with the natural elements of the reservoir and the nearby stream, reinforcing the building’s integration into its environment.



Sustainable Design Strategies and Environmental Harmony
Sustainability is central to the project, ensuring that the building remains in harmony with its natural setting while minimizing its environmental footprint. The center employs passive design strategies such as shaded windows, natural ventilation, and foldable doors to regulate indoor temperature and reduce energy consumption.


Large openings frame panoramic views of the dam, the Stone God, and the conservation area, enhancing the visitor’s connection to the landscape. The circulation route of the building mimics the ritual movement around the Stone God, reinforcing historical memory while creating a meaningful spatial journey.


A significant feature of the building’s sustainable approach is its rooftop, which includes greenery and wind turbines. This highlights the balance between land transformation, conservation, and energy efficiency. The design also emphasizes the importance of water, with a rooftop shaped like a water droplet and a basin that symbolizes the reservoir’s role in sustaining life.


Cultural and Material Integration
The Hushan Reservoir Environmental Education Center is deeply rooted in local materials and traditional construction techniques. Regional stone, reclaimed wood, and metal elements allow the building to seamlessly blend into its surroundings while maintaining a low environmental impact. This choice of materials reflects a commitment to low-tech, low-cost architecture, ensuring durability and ease of maintenance while embracing traditional craftsmanship.



The south-facing stairs reference the historical journeys of herders ascending the mountains, adding a cultural narrative to the building’s design. This symbolic approach enhances the connection between the past and present, reinforcing the educational center’s role as a space for learning, memory, and environmental awareness.







A Holistic Approach to Sustainability and Community
The Hushan Reservoir Environmental Education Center is more than just a physical structure; it is a reconciliation between human development and environmental preservation. As a hub for ecological education and cultural heritage, the center fosters a deeper understanding of the delicate balance between nature and community.





All Photographs are works of Manka Huang
Popular Articles
Popular articles from the community
Flamboyant House by Juliana Camargo + Prumo Projetos
Modern Brazilian house integrating existing tree, pool, and volumes with glass, wood, and transitional spaces blending interior, exterior, and landscape seamlessly.
Louis Malle Cinema: A Limestone Cultural Landmark Revitalizing Community Life in Prayssac
Limestone cinema extension with public forecourt, blending heritage and modern design to create flexible cultural spaces and strengthen community interaction.
The Ken Roberts Memorial Delineation Competition (Krob)
As the most senior architectural drawing competition currently in operation anywhere in the world, it draws hundreds of entries each year, awarding the very best submissions in a series of medium-based categories.
Solar Steam: A Climate-Responsive Architecture That Redefines the Monument
A climate-responsive memorial architecture that transforms heat, decay, and time into a living system reflecting humanity’s ecological impact.
Similar Reads
You might also enjoy these articles
Bamboo Housing Challenge 2026: Design Affordable, Sustainable Homes Using Bamboo
An international design competition by Bamboo U and IBUKU inviting architects and designers to reimagine affordable housing using bamboo — with the winning design built full-scale in Bali.
Computational Design & Education: Beegraphy Design Awards Introduces 7th Category (Featuring Jiyun's Innovative Approach)
Dive into Beegraphy’s 7th Design Awards category, where computational design meets education to create immersive, interactive learning tools, inspired by Jiyun’s work.
From Parametric Lighting to Urban Furniture: Join the 2nd Workshop in Beegraphy’s Computational Design Series
Dive into Cutting-Edge Design Techniques and Practical Applications with Industry Experts
Introducing Sphere by UNI: Pioneering a New Era in AEC Industry
Unlocking Global Potential with BIM and Agile Management
Explore Architecture Competitions
Discover active competitions in this discipline
The International Standard for Design Portfolios
The Global Benchmark for Architecture Dissertation Awards
The Global Benchmark for Graduation Excellence
Challenge to reimagine the Iron Throne
Comments (0)
Please login or sign up to add comments
No comments yet. Be the first to comment!