Mass Timber Office Building: T3 Collingwood by Jackson Clements Burrows Architects
An exploration of T3 Collingwood by Jackson Clements Burrows Architects, highlighting its innovative mass timber office building design and sustainability.
T3 Collingwood, designed by Jackson Clements Burrows Architects, exemplifies the innovative use of mass timber in office building construction. Located in Collingwood, Australia, this 29,300 m² project, completed in 2023, aligns with the T3 corporate strategy focusing on transit, timber, and technology. The building merges sustainability with local authenticity and urban connectivity, creating a forward-thinking commercial space.


Project Overview
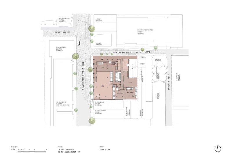
T3 Collingwood stands as a pioneering example of mass timber office buildings. The client’s ambitious brief called for a structure that integrates sustainable practices with the rich industrial context of Collingwood. The design features a five-level brick and concrete podium with a 10-12 story lightweight mass timber structure above, reflecting the building's structural composition and the area's industrial heritage.


Architectural Concept
Integrating Industrial Context
The design draws on Collingwood's distinctive context, characterized by elegant warehouses, narrow streets, and vibrant arts precincts. The brick podium integrates seamlessly into the streetscape, while the glazed curtain wall tower above reflects the emerging typology of mixed residential and commercial buildings in the area. Aligning the northern façade with a heritage building to the east creates a generous arrival space with a civic quality.



Use of Materials
The use of red brick in the podium, terracotta in the window shades, and curtain wall shading fins in the upper façade creates a cohesive color block response. This material palette continues internally, featuring brick, galvanized metal, concrete, and timber, maintaining an honest, industrial aesthetic. The warm timber aesthetic of the interiors fosters a sense of well-being and biophilic connections, unusual for high-rise office buildings.



Functional and Aesthetic Elements
Efficient Floorplates
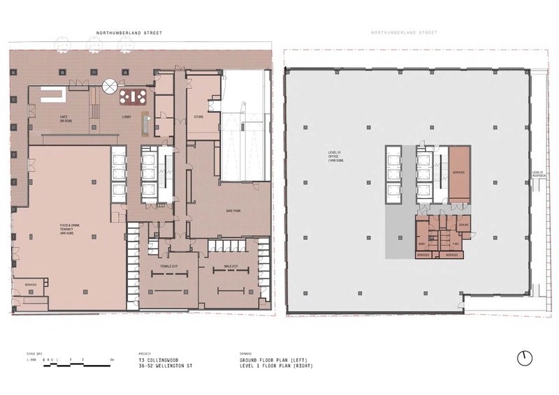
The building features highly efficient and flexible floorplates that capitalize on the mass timber grid, providing excellent access to light and amenities. Ground floor amenities include food and beverage offerings and end-of-trip facilities. Terraces created by the building's stepping back at higher levels add to the functionality and appeal of the space.


Sustainable Design
Sustainability was central to the design of T3 Collingwood. The building is thermally efficient and low-carbon, with its mass timber construction sourced ethically from local renewable forests. This construction method results in 34% less embodied carbon than an equivalent concrete structure. T3 has been awarded a 6-star Green Star (Design), reflecting its high sustainability standards.

Design Challenges and Solutions
Approval and Construction
Meeting the approval authority challenges for delivering a mass timber building of this height required extensive coordination and integration with consultants. The design team tested multiple grid layouts and fire engineering models to validate the final solution. Extensive modeling ensured the design was cost-effective while maintaining sustainability and performance goals.

Cost and Value Outcomes
The design process involved continuous cost and value analysis to ensure the project remained within budget. The focus was on maximizing yield, which supported the additional construction cost uplift of a mass timber system. This approach ensured that the building is not only sustainable but also economically viable.


T3 Collingwood by Jackson Clements Burrows Architects sets a new standard for mass timber office buildings. By integrating sustainable practices with local context and modern design, the project creates a forward-thinking commercial space that aligns with the T3 strategy of transit, timber, and technology. This innovative approach signals a shift towards carbon-conscious commercial spaces, showcasing the potential of mass timber construction in high-rise office buildings.


All photographs are work of John Gollings, Tom Blachford
Popular Articles
Popular articles from the community
Alton Cliff House: A Harmonious Retreat by f2a Architecture in Lake Country, Canada
Alton Cliff House blends corten steel, prefabrication, and sustainable design, creating a luxurious, energy-efficient retreat perched on Canadian cliffs.
TGK Nirasaki Plant: A Smart Factory Blending Technology, Landscape, and Wellness
Smart factory in Japan blending IoT manufacturing, scenic trail design, natural ventilation, and landscape integration to enhance user experience and sustainability.
20 Most Popular Commercial Architecture Projects of 2025
From sustainable market concepts to heritage factories, the commercial buildings and proposals that drew the most attention on uni.xyz this year.
Similar Reads
You might also enjoy these articles
Filtering Space: A Gradual Spatial Experience
From urban intensity to spatial calm.
The Ken Roberts Memorial Delineation Competition (Krob)
As the most senior architectural drawing competition currently in operation anywhere in the world, it draws hundreds of entries each year, awarding the very best submissions in a series of medium-based categories.
Waterfront Redevelopment and Urban Revitalization in Mumbai: Forging a New Dawn for Darukhana
A transformative waterfront redevelopment project reimagining Darukhana’s shipbreaking heritage into an inclusive urban future.
OUT-OF-MAP: A Call for Postcards on Feminist Narratives of Public Space
Rhizoma Design and Research Lab invites artists, designers, architects, researchers, and students to reflect on how feminist perspectives can reshape public space. Selected works will be exhibited in Barcelona, October 2026. Submissions open until 15 April 2026.
Explore Architecture Competitions
Discover active competitions in this discipline
The International Standard for Design Portfolios
The Global Benchmark for Architecture Dissertation Awards
The Global Benchmark for Graduation Excellence
Challenge to reimagine the Iron Throne
Comments (0)
Please login or sign up to add comments
No comments yet. Be the first to comment!