Modern Concrete House Design: PPA House by NØ ARQ in Portugal
The article examines PPA House by NØ ARQ, a modern concrete house design in Portugal that blends minimalism, sustainability, and privacy.
Modern concrete house design has become a defining trend in contemporary residential architecture, offering durability, aesthetic purity, and sustainability. PPA House, designed by NØ ARQ, exemplifies this architectural approach through its innovative use of concrete, functional layout, and integration with its surrounding landscape in Trofa, Portugal.



Site Context and Architectural Response
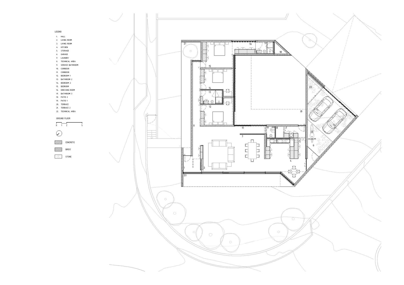
Situated on a 931-square-meter plot at a street corner, the site for PPA House presented unique challenges due to its irregular shape and elevated position one meter above street level. The area is a transitional zone between rural and urban landscapes, characterized by scattered developments and an eclectic visual context.


The architectural intervention by NØ ARQ embraced the site's complexities, transforming them into opportunities for a refined and private single-story residence. The house’s geometry follows the angular contours of the plot, resulting in an irregular polygon footprint that aligns with the bordering public roads.


The Courtyard as the Heart of the Design
A central quadrangular courtyard lies at the heart of the modern concrete house design. This courtyard serves as both a visual and functional anchor, around which the entire home is organized. It fosters natural light penetration and provides a private outdoor retreat, shielded from the gaze of passersby.


The courtyard is framed by a covered exterior gallery, ensuring protection from weather elements while enabling seamless indoor-outdoor living. This spatial configuration reinforces the concept of a home that revolves around its internal landscape, prioritizing privacy and tranquility.


Functional Zoning and Open Living Spaces
PPA House is divided into three primary zones that reflect both the site’s conditions and the family’s lifestyle needs. The social area is positioned towards the street corner, facing southwest to maximize daylight and views. This section includes a living room, dining area, and an open kitchen seamlessly integrated into a fluid layout.

The kitchen features cabinetry at a height of 2.1 meters, creating a subtle division while maintaining visual continuity. This design strategy allows the kitchen to interact with the dining and living spaces while providing discrete access to a pantry and laundry area.

The private area of the house is oriented towards the north and east, ensuring seclusion. It consists of two bedrooms sharing a bathroom and a master bedroom suite with a private dressing area and en-suite bathroom. Large openings towards the courtyard enhance the sense of openness while preserving privacy.

The parking zone is positioned along the southern boundary, offering a covered space with convenient access to the kitchen through a vestibule. This practical arrangement ensures smooth transitions between interior and exterior spaces, emphasizing functionality in the overall modern concrete house design.

Concrete as the Defining Material
The architectural language of PPA House is rooted in the raw expression of concrete. Structural walls and slabs are left exposed, celebrating the material's texture and strength. Concrete’s robustness not only ensures longevity but also resonates with the ethos of modernist architecture, where material honesty takes precedence over decorative embellishments.

Complementing the concrete framework, non-structural walls are constructed with plastered masonry for economic efficiency. The facades are further insulated using an External Thermal Insulation Composite System (ETICS), enhancing the house’s energy performance while maintaining a minimalist aesthetic.

Interior ceilings are clad in plasterboard, concealing mechanical and electrical networks to achieve a clean, uncluttered appearance. Heating is integrated into the flooring system, promoting thermal comfort and energy efficiency.

Sustainability as an Architectural Principle
Sustainability is a guiding principle behind the design of PPA House, influencing both material selection and construction methodology. Concrete, while durable, is balanced by passive design strategies that optimize thermal performance. The house's orientation and courtyard configuration facilitate natural ventilation and daylighting, reducing reliance on artificial cooling and lighting.

Locally sourced granite is used for outdoor paving, establishing a tactile connection to the site’s geological context. The landscape design incorporates native plant species, reinforcing the ecological integrity of the project. Vegetation softens the concrete surfaces, embedding the house within its natural environment.

Merging Architecture with Landscape
PPA House exemplifies how modern concrete house design can harmonize with its surroundings through thoughtful landscape integration. Greenery envelops the perimeter walls, diminishing their visual dominance and fostering a sense of belonging within the rural-urban fabric. The vegetation selection reflects the region’s biodiversity, ensuring resilience and minimal maintenance.

The courtyard garden, visible from all key areas of the house, becomes an ever-changing focal point. It blurs the distinction between built form and nature, transforming the interior experience into one that is deeply connected to the outdoors.

Minimalism as a Compositional Strategy
NØ ARQ’s approach to PPA House is underpinned by a commitment to minimalist architecture. The house eschews formal extravagance in favor of clarity and restraint. Every element serves a functional and aesthetic purpose, from the exposed concrete walls to the concealed infrastructure within plasterboard ceilings.


This skeletal and passive architectural approach not only reduces construction costs but also ensures the house’s longevity. The design anticipates the inevitable aging of materials, allowing the patina of concrete and natural elements to enrich the house over time.



Privacy and Openness in Perfect Balance
One of the defining successes of PPA House is its ability to balance privacy with openness. The perimeter walls protect the home from external scrutiny, addressing the site’s exposure to public streets. Simultaneously, the central courtyard introduces light, air, and nature into the heart of the residence, ensuring that the interior remains bright and inviting.


This duality—of defense against the outside world and embrace of an internal sanctuary—is a hallmark of modern concrete house design. PPA House demonstrates how architecture can mediate between these opposing needs to create a home that is both secure and liberating.




Redefining Modern Concrete House Design
PPA House by NØ ARQ stands as a refined example of modern concrete house design that fuses structural honesty with spatial ingenuity. It responds to the complexities of its corner plot with a layout that prioritizes privacy, while celebrating the materiality of concrete and the vitality of nature.



Through a combination of passive design principles, sustainable material choices, and meticulous spatial organization, the house exemplifies contemporary residential architecture’s potential to be both functional and poetic. It is a residence that not only meets the needs of its occupants but also engages in a meaningful dialogue with its context and the passage of time.



