Modular Kindergarten Architecture in Lisbon
This article explores the modular kindergarten architecture in Lisbon, highlighting its innovative design, sustainability, and rapid construction.
In response to a public initiative aimed at increasing Lisbon's network of public kindergartens, the architectural firm SUMMARY has delivered an innovative solution: four modular kindergartens spread across the city. Completed in 2023, these buildings stand out for their efficient, cost-effective design and rapid construction. By adopting modular construction techniques and prioritizing sustainability, these kindergartens redefine educational architecture, balancing functionality, durability, and aesthetics.




The Concept Behind Modular Kindergarten Architecture
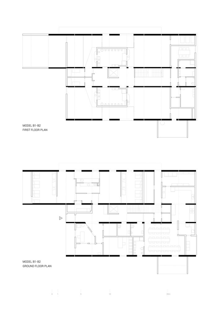
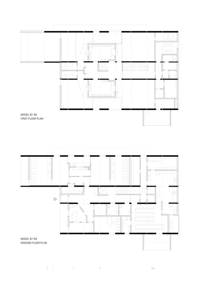
The idea for the modular kindergartens was born out of a citywide competition launched by Lisbon's Municipality. The aim was to create a standardized architectural solution that could be implemented quickly and economically while maintaining a strong, identifiable image throughout the city. SUMMARY's proposal is rooted in a modular design approach, using overlapping structural modules with a “U” shape to form the building’s surfaces. This modular configuration ensures durability and low maintenance, aligning with the competition’s requirements.



The choice of reinforced concrete as the primary material was strategic, not only for its durability but also for its compatibility with prefabrication. The structural modules, produced in a controlled factory environment, were transported and assembled on-site. This process minimized construction time and environmental impact, making it an efficient and sustainable solution for urban development.



Architectural Design: A Standardized Yet Unique Solution
The four kindergartens share a standardized design that creates a cohesive visual identity while meeting specific site requirements. The buildings are organized around two groups of overlapping “U-shaped” modules, connected by a central corridor that houses circulation spaces and HVAC infrastructure. This linear layout enhances user orientation, safety, and functionality, allowing for easy navigation within the buildings.



The modular design makes it possible to clearly discern each structural component from the exterior. Visible joints and the arrangement of the modules highlight the tectonic nature of the architecture, showcasing the potential of modular construction systems. Inside, the design prioritizes practicality and accessibility, with essential service areas such as kitchens and administrative zones located on the ground floor and activity rooms spread across both levels.



Integrating Indoor and Outdoor Spaces
One of the defining features of the modular kindergartens is their seamless integration of indoor and outdoor spaces. The circulation spaces are designed to promote visibility and connectivity between different areas, while the outdoor spaces serve as extensions of the indoor activities. These external areas include non-slip paved surfaces for wheeled toys, gardens for nature-based activities, and vegetative coverings that enhance soil permeability.



The selection of plant species for the outdoor areas reflects a commitment to sustainability. All plants were chosen for their adaptability to Lisbon’s climate, low water requirements, and non-allergenic properties, ensuring a safe and eco-friendly environment for children.



Sustainability and Efficiency in Modular Construction
The prefabrication process used in the construction of these kindergartens represents a significant advancement in sustainable architecture. By producing all structural components off-site under controlled conditions, the project minimized waste, noise, and dust during the assembly phase. The prefabricated modules not only form the building’s structure but also define its facades, floors, and interior spaces, streamlining the construction process and reducing disruption to the surrounding urban neighborhoods.


Additionally, the compact footprint of the two-story buildings optimizes the use of limited urban plots while maximizing recreational areas. This thoughtful design ensures that children have access to ample outdoor spaces without compromising the functionality of the buildings.


Redefining Modular Kindergarten Architecture in Lisbon
The four modular kindergartens in Lisbon exemplify the potential of modular architecture to address urban challenges efficiently and sustainably. By embracing prefabrication and standardized design, SUMMARY has delivered buildings that are not only functional and durable but also environmentally conscious. These kindergartens stand as a testament to the power of innovative architectural solutions to enhance urban life and create meaningful spaces for the community.








