Nature-Inspired Architecture: Frame House by Théque Atelier
An exploration of Frame House by Théque Atelier, highlighting its nature-inspired architecture and innovative design in Szőreg, Hungary.
Frame House, designed by Théque Atelier, is a captivating example of nature-inspired architecture. Located in Szőreg, the oldest district of Szeged, Hungary, this 140 m² house, completed in 2024, redefines residential living by embracing its natural surroundings. The project’s primary goal was to integrate nature closely with the home, creating a harmonious living space that breaks away from the dark, closed interiors typical of the neighborhood.



Project Overview
Frame House stands as a testament to the principles of nature-inspired architecture. The house is situated on a loess hill next to nature conservation woods, and it incorporates elements that allow nature to be an integral part of the living experience. The design features a black framing porch and facade that create a striking visual impact while fostering a deep connection with the natural environment.



Architectural Concept
Embracing Historical Context
Szőreg, older than Szeged itself, has a rich historical background, having been a bustling area due to its higher position on the Hungarian Great Plain. The site of Frame House underwent a six-month archaeological excavation, unearthing numerous artifacts from the Avar period, reflecting the area’s long and storied past.



Cantilevered Framed Porch
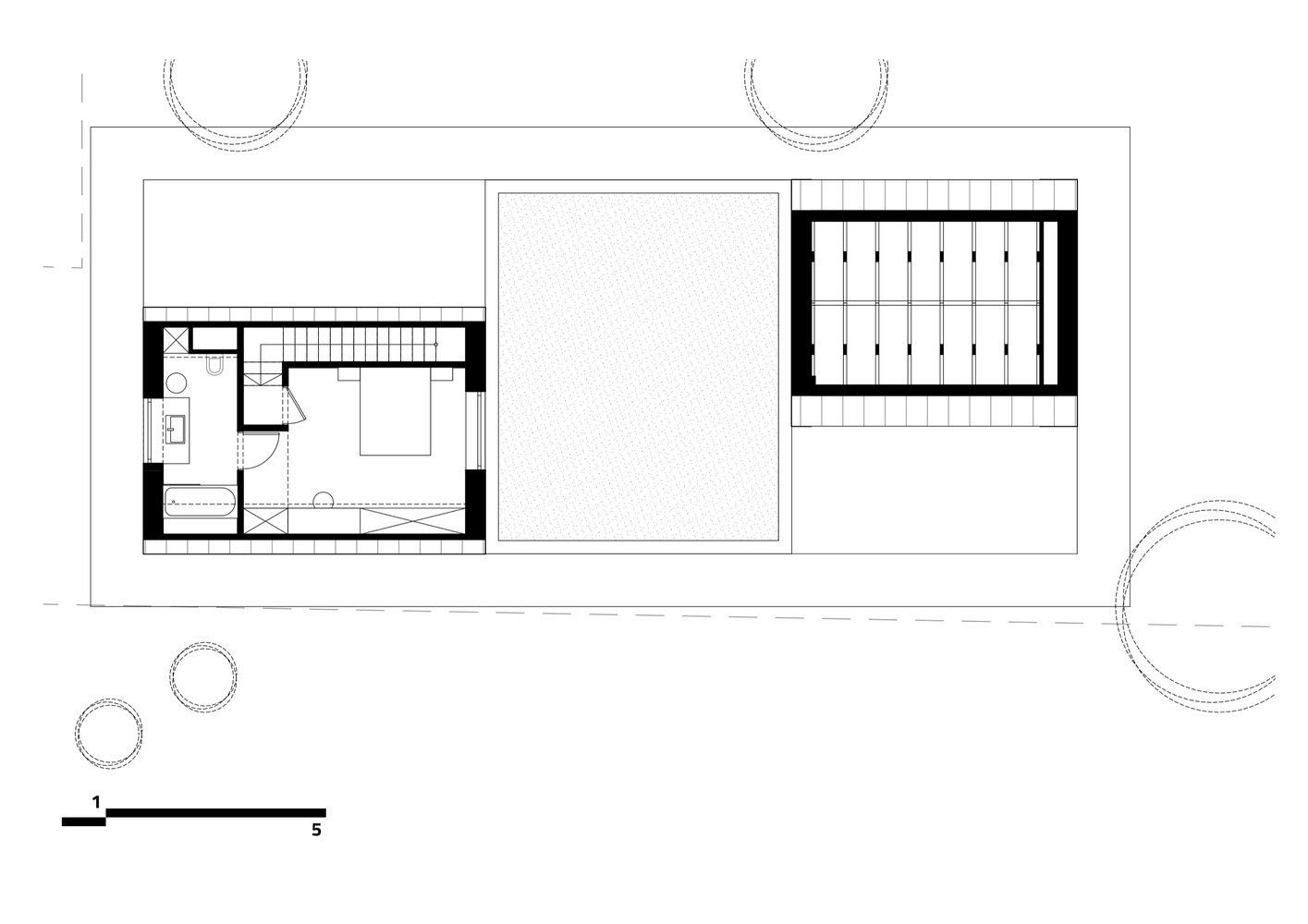
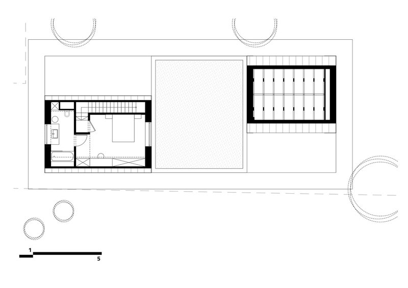
The primary architectural feature of Frame House is its cantilevered framed porch, which floats above the sloping terrain. This design allows vegetation to grow under the house, further integrating the structure with its natural surroundings. The frame surrounds and organizes the two main blocks of the house, one containing the intimate rooms and the other housing the common living spaces. This frame also defines two atriums, the arrival area, and the sunny terrace, enhancing the connection with nature and providing transparent views between different spaces.



Design and Materials
Connection with Nature
Every room and interior space in Frame House has a direct connection with nature through the surrounding porch. Large glass windows and doors ensure that the natural landscape is always visible, reducing stress and creating a serene living environment. The house’s modular system, reflected in the design of the porch, contributes to the building’s well-proportioned rhythm and aesthetic appeal.



Sustainable and Natural Materials
The use of natural and sustainable materials is a key aspect of Frame House’s design. The choice of materials not only enhances the house’s connection with nature but also ensures durability and environmental sustainability. The modular design system contributes to efficient construction and a harmonious architectural rhythm.




Functional and Aesthetic Elements
Interior Layout
The interior layout of Frame House is designed to maximize functionality while maintaining a strong connection with nature. The house is divided into intimate rooms and common living spaces by a central service area. This division ensures privacy while fostering a sense of community in the shared spaces.


Atriums and Transparency
The design includes two atriums: the arrival area and a sunny terrace. These atriums strengthen the connection with nature, providing special transparent views between different spaces and allowing natural light to flood the interiors. This design choice not only enhances the visual appeal but also promotes a sense of openness and tranquility.


Frame House by Théque Atelier exemplifies the principles of nature-inspired architecture. By integrating natural elements and sustainable materials into the design, the house creates a harmonious and serene living environment. This innovative approach sets a new standard for residential architecture, showcasing the potential of nature-inspired design to enhance both the aesthetic and functional aspects of a home.


All photographs are work of Balázs Danyi