Oracle Coffee: A Masterpiece of Minimalist Café Design by True Thing Design Studio
Oracle Coffee by True Thing Design Studio exemplifies minimalist café design, preserving historical architecture while creating a refined and functional coffee space.
Redefining Simplicity in Café Architecture
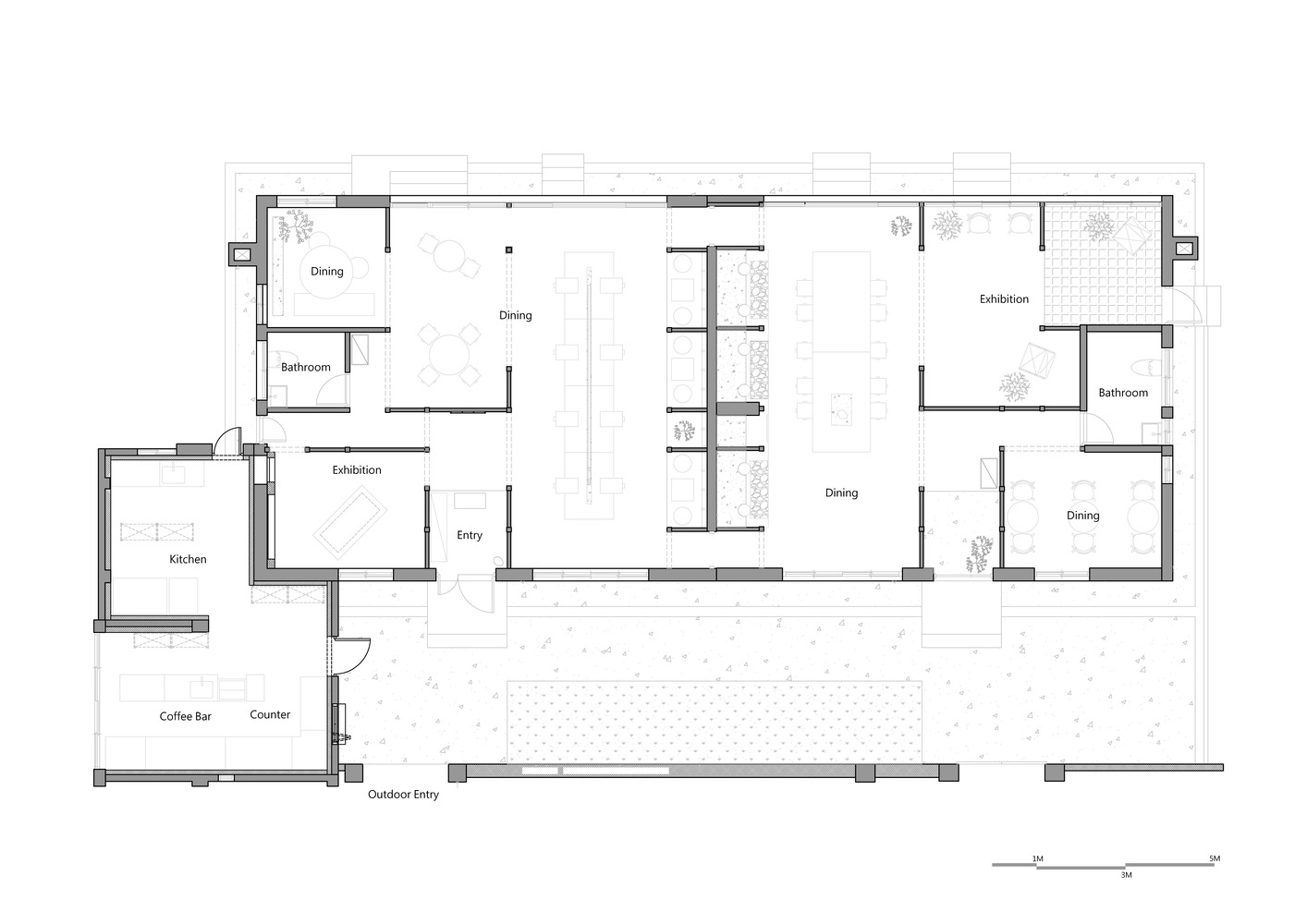
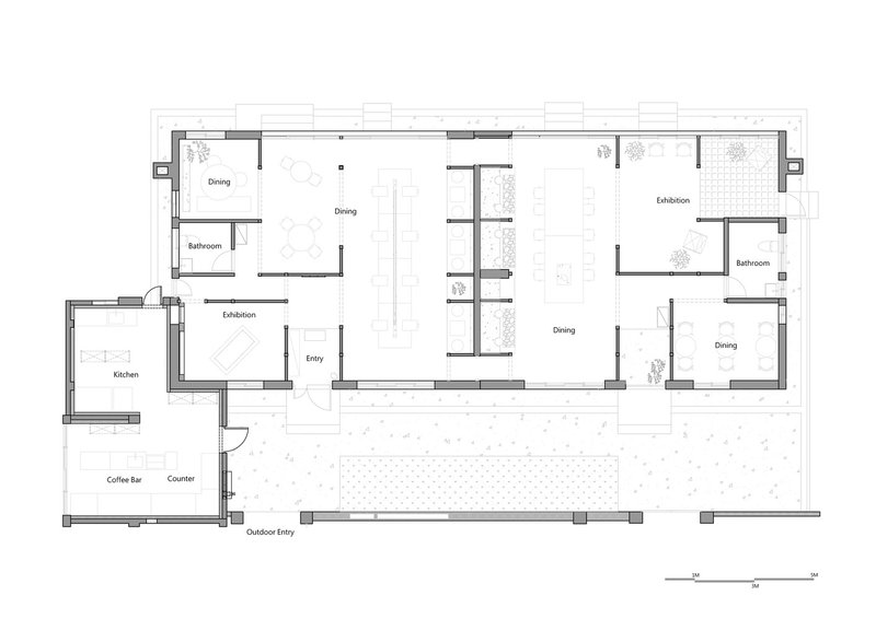
Oracle Coffee, located in the historic Huangpu New Village in Fengshan, Taiwan, stands as a remarkable example of minimalist café design. Designed by True Thing Design Studio, this project transforms a former military dependents' residence into a contemporary coffee shop while preserving its architectural essence. By embracing restraint as a guiding principle, the design seamlessly integrates past and present, offering a space that is both intimate and functional.



Architectural Concept: Balancing History and Modernity
Preserving the Original Framework
One of the defining characteristics of Oracle Coffee is its commitment to preserving the original architectural framework. The existing residential layout remains largely intact, respecting the historical significance of the site. This approach not only maintains the authenticity of the structure but also allows visitors to experience a space that bridges generations.


The Role of Light and Materiality
A key feature of the design is a neon installation at the entrance, tracing the trajectory of time. This dynamic light element serves as both a visual anchor and a guiding force, reinforcing the concept of temporality. The material palette remains restrained, emphasizing the textures of wood, concrete, and glass to create an atmosphere of warmth and simplicity.


Furniture as a Design Intervention
Instead of altering the architectural structure, True Thing Design Studio uses furniture as a primary design intervention. Inspired by the existing wooden roof trusses, custom-designed tables and chairs reflect the traditional joinery techniques while adapting to modern functionality. Seating arrangements vary in height and configuration, fostering a dynamic interaction between visitors and the space.


The Essence of Minimalist Café Design
A Dialogue Between Old and New
Minimalist café design is about more than aesthetics—it is about creating an intentional relationship between space, function, and experience. Oracle Coffee exemplifies this philosophy by maintaining a balance between historical preservation and contemporary evolution. The interplay of old and new elements creates a rhythmic pulse throughout the café, enhancing the sensory experience of its patrons.



Spatial Fluidity and Functionality
The layout of Oracle Coffee is carefully curated to support both social interaction and personal solitude. Open areas encourage communal engagement, while more intimate corners provide a retreat for visitors seeking quiet reflection. Every design choice is rooted in functionality, ensuring a seamless blend of aesthetics and practicality.



Crafting a Timeless Café Experience
The Impact of Minimalist Design in Café Culture
Minimalist café design has become a global trend, redefining the way people experience coffee culture. Oracle Coffee sets a new benchmark by demonstrating how architectural restraint and thoughtful interventions can create a timeless café environment. The careful selection of materials, furniture, and lighting establishes an ambiance that is both calming and engaging.


Honoring Tradition Through Innovation
True Thing Design Studio has successfully reinterpreted a historic space without compromising its essence. Oracle Coffee serves as an inspiration for architects and designers seeking to integrate minimalist café design principles into spaces that honor both tradition and innovation.


A Visionary Approach to Café Architecture
Oracle Coffee stands as a testament to the power of minimalist café design, proving that simplicity can enhance both spatial quality and user experience. By preserving the architectural integrity of the site while introducing modern elements, True Thing Design Studio has created a space that resonates with history and contemporary aesthetics alike. This project not only contributes to Taiwan’s rich architectural landscape but also sets a precedent for future designs that value restraint, authenticity, and timeless elegance.

All Photographs are works of Yi-Hsien Lee and Associates YHLAA