Park1538 Gwangyang Cultural Complex: A Landmark of Steel Architecture and Cultural Regeneration
Park1538 redefines steel architecture as a cultural and regenerative landmark rooted in Gwangyang’s industrial past and civic future.
Introduction to Park1538: A Sculptural Cultural Space in Gwangyang
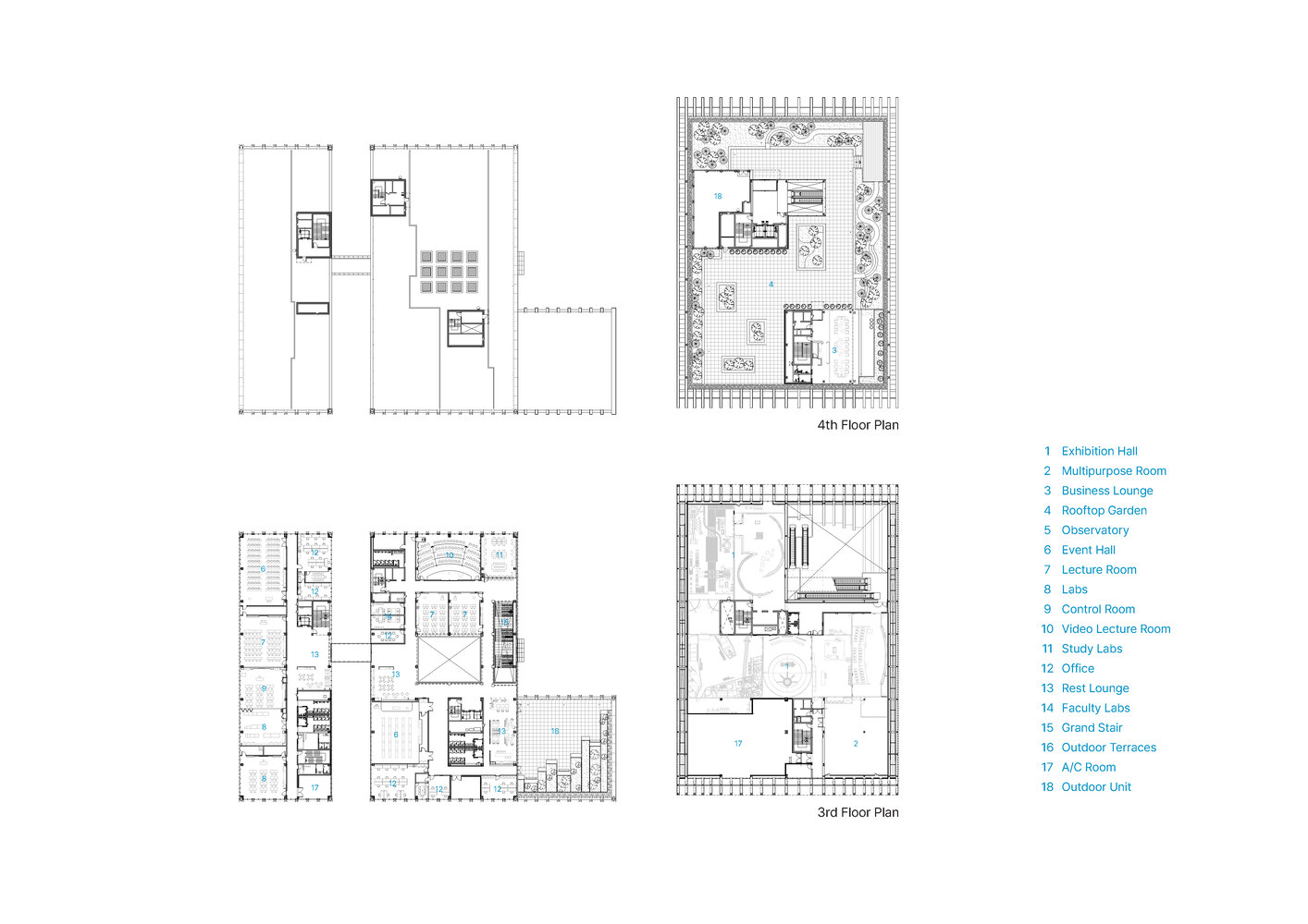
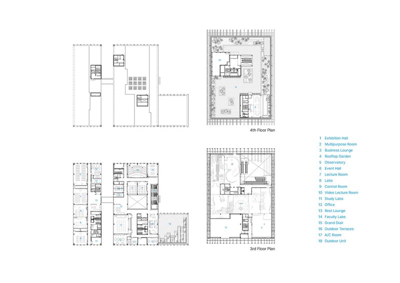
Situated in the industrial heart of Gwangyang-si, South Korea, Park1538 Gwangyang Cultural Complex by UnSangDong Architects in collaboration with POSCO A&C stands as a transformative symbol of industrial heritage, civic openness, and architectural innovation. Completed in 2025, the 8,569 m² facility is not just a cultural building but a sculptural embodiment of steel architecture—a tribute to the city’s legacy as a center for steel production.



Conceptual Origins: Light, Sunlight, and Steel
The design concept draws from the city's name itself—“Gwangyang,” meaning “light” and “sunlight”—infusing the space with a poetic sense of luminosity. These themes translate into architectural form through flowing steel curves, organic spatial rhythms, and an ever-present dialogue between material and light. The structure’s expressive geometry captures the ephemeral nature of sunlight while firmly rooting the building in the industrial narrative of the region.



Structural Innovation with Steel and PosMAC
At the core of Park1538's innovation lies its bold use of PosMAC—POSCO’s proprietary Magnesium Aluminium alloy coated steel. This high-performance material enabled the realization of sweeping curves, cantilevered forms, and dynamic spaces without compromising structural integrity. A total of 4,400 tons of steel was deployed, not only to build the complex but also to symbolize the architectural potential of industrial materials.

Each rib within the structure was custom-fabricated, requiring advanced 3D simulations and a seamless integration between design, engineering, and manufacturing teams. This non-standard construction process was made viable through early digital prototyping, allowing the building skin, skeleton, and spatial flow to evolve in unison.

Spatial Composition: Vertical Flow and Community Engagement
Park1538 is vertically stratified into three distinct yet interconnected zones that offer a multidimensional user experience. On the ground level, a public plaza creates an open, inviting threshold that encourages civic participation. Above it, the third-floor floating gallery hovers as a symbol of lightness and accessibility, offering immersive cultural exhibitions within a steel-clad envelope.

The educational center spirals around a large atrium, anchored by a communal staircase that fosters interaction and openness. This circulation path mimics a narrative journey—guiding visitors naturally through the building while connecting each programmatic element across vertical and horizontal axes.


Material Memory and Regenerative Landscape
More than a feat of steel architecture, Park1538 serves as a regenerative cultural landscape. Recycled remnants from steelmaking processes are embedded into the site’s surface, integrating the industrial past with a vision for ecological renewal. Native landscaping reintroduces natural elements into the once heavily industrial terrain, further anchoring the cultural center as a public gesture of transformation and continuity.

The project embraces both the permanence of steel and the temporality of nature, demonstrating how industrial architecture can be softened through community focus and environmental sensitivity.


Park1538 as a Cultural Beacon of Steel Architecture
In its sculptural silhouette, innovative material use, and civic-minded programming, Park1538 redefines what a cultural center can be in the 21st century. It embodies the synthesis of architectural ambition and community openness, making it a landmark not only of Gwangyang's skyline but also of contemporary steel architecture.



All Photographs are works of Sergio Pirrone
Popular Articles
Popular articles from the community
Split House: A Compact Urban Home Blending Privacy, Light, and Flexible Living in Japan
Compact Japanese home featuring DOMA space, flexible café potential, passive lighting, privacy zoning, and sustainable urban living design.
Inverted Architecture Installation by Studio Link-Arc: Exploring the Intersection of Architecture and Living Organisms
Inverted Architecture Installation by Studio Link-Arc blends mycelium, sustainability, inverted design, ecological cycles, and urban adaptive architecture in Shenzhen.
Gads Hill Early Learning Center by JGMA: Adaptive Reuse Shaping Community-Focused Educational Architecture
Adaptive reuse transforms fragmented structure into vibrant early learning center with playful façade, natural light, and community-focused sustainable design.
Solar Steam: A Climate-Responsive Architecture That Redefines the Monument
A climate-responsive memorial architecture that transforms heat, decay, and time into a living system reflecting humanity’s ecological impact.
Similar Reads
You might also enjoy these articles
Bamboo Housing Challenge 2026: Design Affordable, Sustainable Homes Using Bamboo
An international design competition by Bamboo U and IBUKU inviting architects and designers to reimagine affordable housing using bamboo — with the winning design built full-scale in Bali.
Computational Design & Education: Beegraphy Design Awards Introduces 7th Category (Featuring Jiyun's Innovative Approach)
Dive into Beegraphy’s 7th Design Awards category, where computational design meets education to create immersive, interactive learning tools, inspired by Jiyun’s work.
From Parametric Lighting to Urban Furniture: Join the 2nd Workshop in Beegraphy’s Computational Design Series
Dive into Cutting-Edge Design Techniques and Practical Applications with Industry Experts
Explore Architecture Competitions
Discover active competitions in this discipline
The International Standard for Design Portfolios
The Global Benchmark for Architecture Dissertation Awards
The Global Benchmark for Graduation Excellence
Challenge to reimagine the Iron Throne
Comments (0)
Please login or sign up to add comments
No comments yet. Be the first to comment!