Sustainable Gymnasium Architecture: The Sainte-Croix Gymnasium Design
The article explores the sustainable design and architectural features of the Sainte-Croix Gymnasium in Switzerland.
Introduction to the Sainte-Croix Gymnasium
The Sainte-Croix Gymnasium, designed by MUE Atelier, BSAAR, and Erbat SA, represents a contemporary approach to sustainable gymnasium architecture. Situated in the picturesque town of Sainte-Croix, Switzerland, this 1500 m² structure blends seamlessly with its surroundings while emphasizing sustainability and local material use. Completed in 2021, the gymnasium serves both as a sports hall and a facility for youth development, catering to the needs of local schoolchildren and residents.



A Harmonious Integration with Nature
The gymnasium's design reflects a deep commitment to the preservation of the natural environment. Nestled between a school building and an adjacent garden that offers stunning views of the surrounding mountains, the structure makes efficient use of the constrained site. By maintaining a low profile and utilizing the natural slope of the terrain, the building minimizes its visual impact while enhancing the overall experience of the area. The use of local wood and natural materials further strengthens the connection to its natural context, ensuring that the gymnasium complements rather than competes with the existing landscape.




Materiality and Sustainability
A key feature of the Sainte-Croix Gymnasium is its emphasis on sustainable architecture. The use of locally sourced wood highlights the region's commitment to environmental responsibility and sustainable building practices. The building's exterior features a pre-greyed wood cladding system that not only promotes energy efficiency but also visually ties the gymnasium to the park and its surroundings. The project also engages local stakeholders in the wood industry, from forest owners to carpenters, fostering community collaboration and ensuring the material's quality and authenticity.




Architectural Form and Function
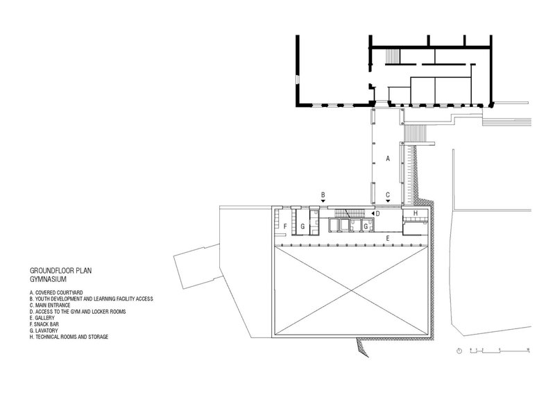
The Sainte-Croix Gymnasium stands as a dual-purpose building, designed to house both a sports hall and educational facilities. The design incorporates two distinct load-bearing systems: trapezoidal beams support the expansive sports hall, while solid wooden slabs create the structural framework for the additional facilities. This efficient approach maximizes the use of space and materials, ensuring that the building serves its intended purpose while maintaining a minimal environmental footprint.





Building Orientation and Natural Light
The gymnasium benefits from a carefully considered orientation that maximizes natural light and panoramic views. The sports hall, located on the south side, enjoys a triple orientation, allowing ample sunlight to flood the space while offering breathtaking views of the surrounding mountains. On the north side, a 6-meter-thick volume houses additional premises, including locker rooms and storage areas, as well as the youth development facility on the upper floor. These areas benefit from natural daylight through the south-facing windows and offer a direct connection to the breathtaking landscape.





A Model of Sustainable Gymnasium Architecture
The Sainte-Croix Gymnasium is an exemplary model of sustainable architecture, combining functionality, beauty, and environmental responsibility. Through thoughtful design choices, material selection, and attention to the surrounding landscape, the building offers a lasting contribution to both the local community and the field of gymnasium architecture. Its harmonious integration into the site, the use of local materials, and its energy-efficient design make it a standout example of how architecture can be both functional and environmentally conscious.










All Photographs are works of Cyrille Lallement, Arnaud Schelstraete, Chaboz et Partenaires SA
Popular Articles
Popular articles from the community
Split House: A Compact Urban Home Blending Privacy, Light, and Flexible Living in Japan
Compact Japanese home featuring DOMA space, flexible café potential, passive lighting, privacy zoning, and sustainable urban living design.
Fifth NRE Jazz Club – De Bever Architecten: Eindhoven’s Revitalized Cultural Hub
Historic gas factory transformed into Fifth NRE Jazz Club blending modern sustainability, jazz culture, dining, and heritage architecture seamlessly.
Alton Cliff House: A Harmonious Retreat by f2a Architecture in Lake Country, Canada
Alton Cliff House blends corten steel, prefabrication, and sustainable design, creating a luxurious, energy-efficient retreat perched on Canadian cliffs.
Inverted Architecture Installation by Studio Link-Arc: Exploring the Intersection of Architecture and Living Organisms
Inverted Architecture Installation by Studio Link-Arc blends mycelium, sustainability, inverted design, ecological cycles, and urban adaptive architecture in Shenzhen.
Similar Reads
You might also enjoy these articles
The Ken Roberts Memorial Delineation Competition (Krob)
As the most senior architectural drawing competition currently in operation anywhere in the world, it draws hundreds of entries each year, awarding the very best submissions in a series of medium-based categories.
Waterfront Redevelopment and Urban Revitalization in Mumbai: Forging a New Dawn for Darukhana
A transformative waterfront redevelopment project reimagining Darukhana’s shipbreaking heritage into an inclusive urban future.
OUT-OF-MAP: A Call for Postcards on Feminist Narratives of Public Space
Rhizoma Design and Research Lab invites artists, designers, architects, researchers, and students to reflect on how feminist perspectives can reshape public space. Selected works will be exhibited in Barcelona, October 2026. Submissions open until 15 April 2026.
Documentation Work on Buddhist Wooden Temple
Architectural syncretism and cultural hybridity: A comparative study of the Buddhist temples in Chattogram Hill tracks
Explore Architecture Competitions
Discover active competitions in this discipline
The International Standard for Design Portfolios
The Global Benchmark for Architecture Dissertation Awards
The Global Benchmark for Graduation Excellence
Challenge to reimagine the Iron Throne
Comments (0)
Please login or sign up to add comments
No comments yet. Be the first to comment!