Unemori Architects: Redefining Residential Design with Two Striking Houses
Are Unemori Architects Setting New Standards in Contemporary Living with Their Exceptional Dual House Projects?

Unemori Architects' Innovative Residential Dwellings Foster Harmonious Living in a Serene Green Enclave
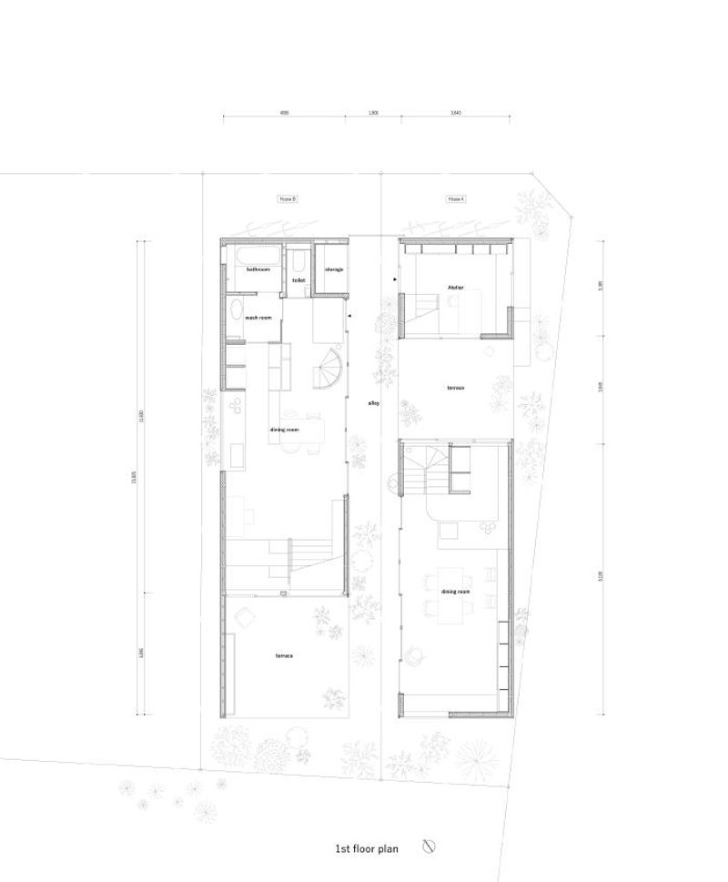
In a tranquil residential area adorned with lush greenery, Unemori Architects have unveiled two remarkable houses that epitomize contemporary living. Designed by the acclaimed architect Hiroyuki Unemori, one of the houses belongs to his own family, while the other is owned by his sister-in-law's family. The vision behind these homes was to create independent living spaces while fostering a sense of support and togetherness, complemented by a shared garden and atelier.
The site was intelligently divided into longitudinal plots, with a narrow house constructed on each side. Connecting the two dwellings is a captivating alley, measuring approximately 16 meters in length and 1.8 meters in width. This alley acts as an inviting passage garden and buffer zone, ensuring a suitable distance between the two families.
A unique feature of this space is the expansive tent structure that gracefully extends above the plants and a water basin, providing a direct pathway for family members without the need to use separate entrances. The intention is to create a versatile intermediary zone that blurs the boundaries between indoors and outdoors, seamlessly merging with the overall living environment.
Inside each house, a continuous open-plan layout spans various floor and roof levels. Meticulous consideration was given to privacy, natural light, scenic views, and ventilation, resulting in carefully positioned roof levels and an abundance of strategically placed windows.
The houses themselves exude a sense of unity, resembling one expansive room that offers glimpses of the neighbouring walls and terraces across the charming alley. This extraordinary spatial design, featuring convex-concave forms and irregular shapes, was achieved through the installation of multiple timber keel beams running longitudinally. The result is an expandable living space that transcends the physical boundaries, fostering a heightened sense of living and environmental cohesion by bringing together smaller interconnected areas.
Unemori Architects have masterfully crafted a residential haven within this serene green enclave, exemplifying their innovative approach to contemporary dwellings. These houses not only embrace independent living but also emphasize the importance of community, connectivity, and the harmonious integration of architecture with nature.



















Popular Articles
Popular articles from the community
Free Architecture Competitions You Can Enter Right Now
No entry fees, real prizes. Here are the best free architecture competitions open for submissions in 2026.
Magic Box Office Barcelona Innovative Sustainable Workplace Design
Innovative sustainable office design featuring triangular form, ceramic façade, flexible interiors, natural light optimization, and creative workspace for modern work culture.
Split House: A Compact Urban Home Blending Privacy, Light, and Flexible Living in Japan
Compact Japanese home featuring DOMA space, flexible café potential, passive lighting, privacy zoning, and sustainable urban living design.
Similar Reads
You might also enjoy these articles
Rede Arquitetos Builds an Open-Air School in Fortaleza That Doubles as a Neighborhood Living Room
Educar II SESC-CE folds sports, dance, and community gathering into a courtyard campus wrapped in mesh and tropical color.
NZ10 Apartment by auba studio: Adaptive Reuse in Palma de Mallorca
Adaptive reuse apartment transforms bakery into light-filled home with patios, privacy layers, and wood interiors enhancing urban living experience.
TGK Nirasaki Plant: A Smart Factory Blending Technology, Landscape, and Wellness
Smart factory in Japan blending IoT manufacturing, scenic trail design, natural ventilation, and landscape integration to enhance user experience and sustainability.
House in Macieira by Nelson Resende Arquitecto: A Sensitive Transformation Rooted in Context and Materiality
Adaptive reuse house blending wood, glass, and landscape, transforming traditional Portuguese architecture into a warm, open, contemporary living environment.
Explore Architecture Competitions
Discover active competitions in this discipline
The International Standard for Design Portfolios
The Global Benchmark for Architecture Dissertation Awards
The Global Benchmark for Graduation Excellence
Design Challenge - Contemporary interpretation of a religious complex
Comments (0)
Please login or sign up to add comments
No comments yet. Be the first to comment!