Bioclimatic Tropical Villa in Vietnam: Sustainable Design by T3 ARCHITECTS and Kanopea Architecture Studio
This article explores the sustainable design and bioclimatic principles of the Bioclimatic Tropical Villa in Vietnam by T3 ARCHITECTS.
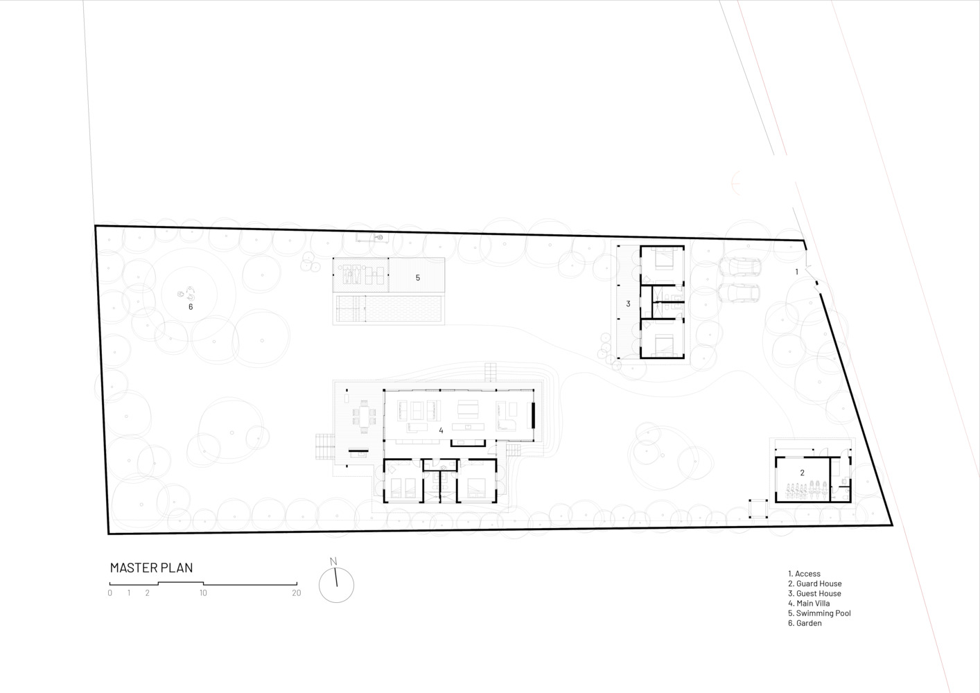
In the heart of Hồ Tràm, Vietnam, T3 ARCHITECTS and Kanopea Architecture Studio have crafted a Bioclimatic Tropical Villa that epitomizes sustainable design tailored for tropical climates. This 300 m² weekend retreat offers an innovative approach to architectural design, blending modern comforts with ecological mindfulness.


Sustainable Architectural Approach
Site Selection and Layout
The villa is strategically located under a partial forest canopy to harness natural shade and thermal comfort. Positioned at the forest edge, it enjoys picturesque views of a tropical garden and pool. This thoughtful placement not only enhances aesthetic appeal but also maximizes environmental synergy.



Privacy and Noise Reduction
To ensure privacy and tranquility, guest accommodations are housed in separate buildings, creating a buffer zone from a nearby road. This arrangement minimizes noise intrusion and fosters a serene environment for relaxation.


Bioclimatic Principles in Action
Roof and Ventilation
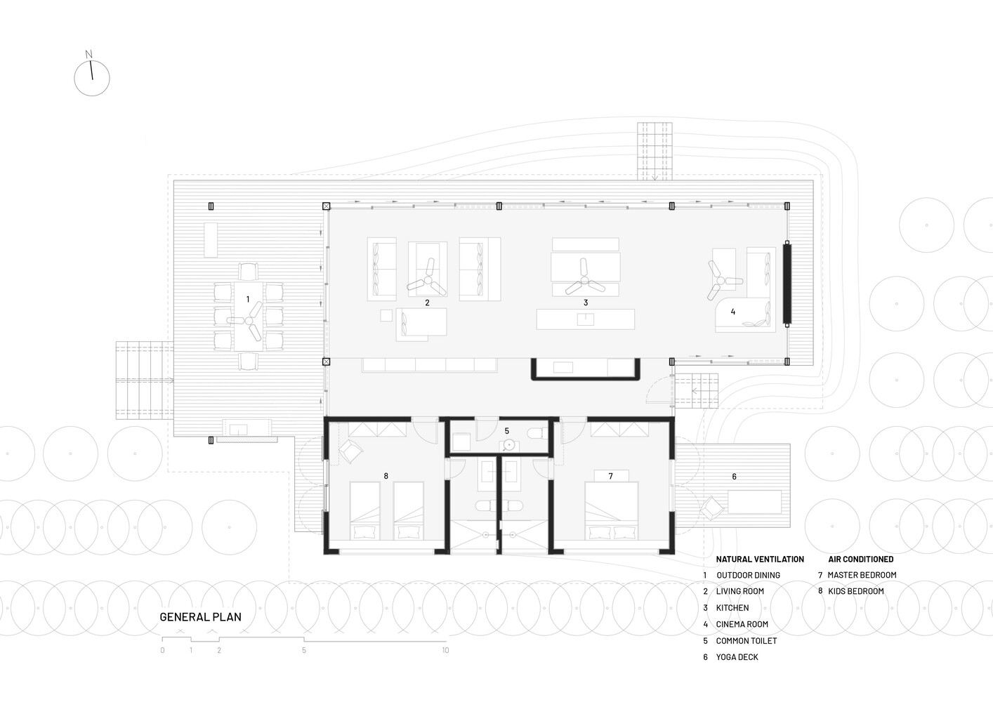
The villa’s large insulated roof covers all functional areas, adhering to bioclimatic principles. Common areas are designed for natural ventilation, eliminating the need for air conditioning. Efficient ceiling fans provide cooling, preserving the tropical ambiance while reducing energy consumption.


Insulation and Energy Efficiency
Bedrooms are well-insulated using rice husk for the roof and light concrete blocks for the walls. Double-glazing doors and windows further enhance thermal efficiency, ensuring comfortable indoor temperatures even with minimal air conditioning use.

Materials and Construction
Local and Low-Carbon Materials
Exterior walls are plastered with lime using locally sourced sand, creating a natural aesthetic and reducing the carbon footprint. The villa’s design emphasizes the use of geo-sourced materials, aligning with an eco-friendly architectural philosophy.


Minimalist Interior Design
The interior design is intentionally minimalist to simplify maintenance and operation. Tailor-made cement tiles and solid wood furniture add a Vietnamese touch, while plywood false ceilings contribute to the villa’s cozy atmosphere.

Thoughtful Lighting Design
Lighting, designed by Kobi Studio, is strategically placed to preserve the night sky’s darkness, respecting the natural environment. Focused lighting ensures that only necessary areas, such as reading corners and dining spaces, are illuminated.


Landscape and Water Management
Native Vegetation
The landscape design promotes the use of native trees and plants, requiring minimal water and maintenance. This approach not only enhances the natural look but also ensures the landscape integrates seamlessly with the surrounding environment.

Eco-Friendly Pool System
The pool uses a saltwater system, eliminating the need for chlorine and reducing maintenance costs. With a depth of approximately 120 cm, the pool conserves water and minimizes equipment expenses.
The Bioclimatic Tropical Villa in Vietnam by T3 ARCHITECTS and Kanopea Architecture Studio stands as a testament to contemporary tropical architecture. It combines low-tech solutions with meaningful design, offering a sustainable and serene escape just 2.5 hours from Saigon. This villa is more than a weekend retreat; it is a manifesto for bioclimatic and eco-friendly architecture, harmoniously blending with its tropical surroundings.



All photographs are work of Phu Dao