Casa da Mata: A Masterpiece of Sustainable Forest House Design
Casa da Mata exemplifies sustainable forest house design, integrating reinforced concrete, natural landscapes, and poetic architectural elements for a harmonious living experience.
Embracing Nature Through Thoughtful Architecture
Casa da Mata, designed by Marise Calçavara Arquitetura, is a stunning example of sustainable forest house design. Nestled within lush Brazilian vegetation, the residence seamlessly integrates with its natural surroundings while offering a sophisticated architectural presence. With three floors carefully arranged to respect the terrain, the structure harmonizes reinforced concrete with expansive glass, allowing for a constant dialogue between the built and the organic environment.


The project was conceived with a clear vision: to create an elegant, airy home that interacts fluidly with the surrounding forest. The setbacks of the plot and the client’s extensive program of requirements posed initial design challenges, which were transformed into opportunities for innovation. Through careful spatial planning, the house balances openness and privacy, forming a sanctuary where architecture and nature exist in perfect unison.


Structural Lightness and Organic Flow
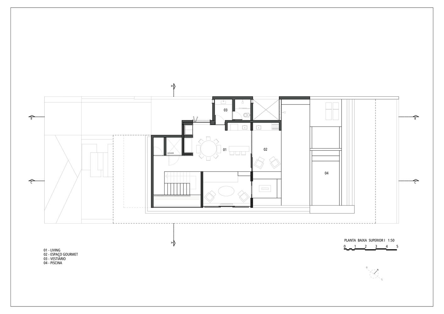
One of the defining characteristics of Casa da Mata is its structural ingenuity. The house appears to float, with recessed beams creating a clean, uninterrupted visual of two cantilevered slabs. This effect enhances the perception of weightlessness, strengthening the connection between the house and its natural setting. The rooftop pool, designed as both a leisure element and an architectural feature, offers panoramic views of the sunset while simultaneously shaping the ceiling of the TV room below, creating a cozy and intimate ambiance.


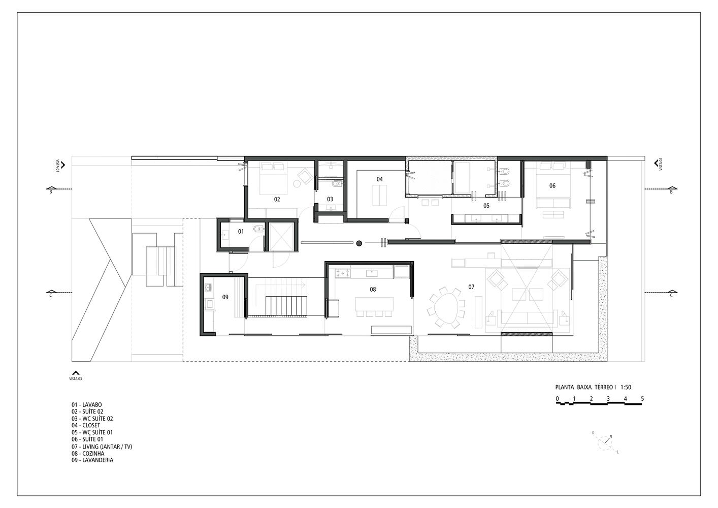
The residence is divided into three fundamental areas, each responding to the unique characteristics of the plot. The basement, leveraging the site's three-meter slope, houses circulation spaces and a garage. The middle level forms the heart of the home, where shared spaces open up to the surrounding forest, fostering a direct relationship with the landscape. The uppermost level is dedicated to leisure, with a garden, pool, and open-air terraces providing a serene retreat above the treetops.



A Staircase as a Sculptural Element
The staircase at Casa da Mata is more than a functional feature; it is a sculptural piece that defines the vertical connection of the home. Designed as a dynamic, flowing form, it enhances the spatial experience and highlights the raw beauty of exposed concrete. The architectural rhythm created by the interplay of solid and void gives the house an inherent poetry, making movement through its spaces feel effortless and organic.




The Essence of Sustainable Forest House Design
Beyond its aesthetic and spatial achievements, Casa da Mata exemplifies sustainable forest house design. By working in harmony with the land, preserving native vegetation, and employing durable materials that age gracefully, the project embraces environmental responsibility without compromising on luxury or comfort. The thoughtful integration of natural ventilation, shading, and passive cooling techniques ensures a comfortable indoor climate while minimizing the home’s ecological footprint.






Casa da Mata is more than an architectural statement; it is a testament to the beauty of designing with, rather than against, nature. Its poetic blend of structure, form, and environment solidifies its place as a benchmark in sustainable residential architecture.




All photographs are works of Marco Luty
Popular Articles
Popular articles from the community
Free Architecture Competitions You Can Enter Right Now
No entry fees, real prizes. Here are the best free architecture competitions open for submissions in 2026.
Inverted Architecture Installation by Studio Link-Arc: Exploring the Intersection of Architecture and Living Organisms
Inverted Architecture Installation by Studio Link-Arc blends mycelium, sustainability, inverted design, ecological cycles, and urban adaptive architecture in Shenzhen.
The Ken Roberts Memorial Delineation Competition (Krob)
As the most senior architectural drawing competition currently in operation anywhere in the world, it draws hundreds of entries each year, awarding the very best submissions in a series of medium-based categories.
Alton Cliff House: A Harmonious Retreat by f2a Architecture in Lake Country, Canada
Alton Cliff House blends corten steel, prefabrication, and sustainable design, creating a luxurious, energy-efficient retreat perched on Canadian cliffs.
Similar Reads
You might also enjoy these articles
Free Architecture Competitions You Can Enter Right Now
No entry fees, real prizes. Here are the best free architecture competitions open for submissions in 2026.
Top 15 Architecture Competitions to Enter in 2026
From student-friendly idea competitions to prestigious international awards, here are the best architecture competitions open for entries in 2026. Updated regularly.
DIY & Engineering in Computational Design : Enter the BeeGraphy Design Awards
Showcase Your Creativity with Computational Design and Open Source Projects

Innovative Design Solutions: Award-Winning Projects from Recent Architecture Competitions
Exploring award-winning architectural projects shaping the future of design, sustainability, and community.
Explore Architecture Competitions
Discover active competitions in this discipline
The International Standard for Design Portfolios
The Global Benchmark for Architecture Dissertation Awards
The Global Benchmark for Graduation Excellence
Challenge to reimagine the Iron Throne
Comments (0)
Please login or sign up to add comments
No comments yet. Be the first to comment!