Kawasaki Korean School Architecture by KACH – A Symbol of Openness and Community Integration
Kawasaki Korean School by KACH blends cultural heritage, open terraces, and flexible learning spaces to create a vibrant educational community hub.
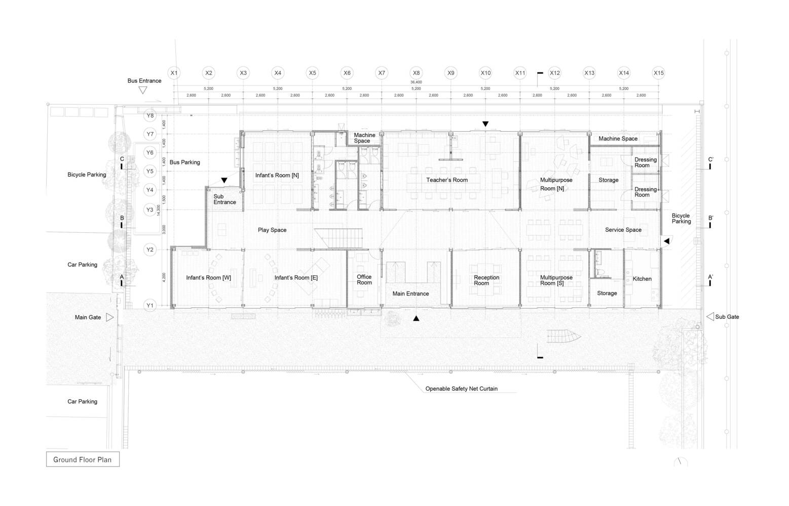
The Kawasaki Korean School, designed by Taiga Kasai + Chong Aehyang Architecture (KACH), redefines educational architecture in Japan by blending cultural identity, community openness, and spatial innovation. Completed in 2024, the 785 m² school stands as a modern interpretation of Korean heritage and local engagement, designed for a small community of around 40 students. Since its founding in 1946, the school has served as both an educational hub and a cultural anchor for the Korean diaspora in Japan.





Historical and Cultural Context
Korean schools in Japan, like the Kawasaki Korean School, carry a legacy of resilience and cultural preservation. These institutions not only teach academic subjects but also nurture the Korean language and heritage among the younger generation. This project respects that history while creating a contemporary space that embraces inclusivity and interaction with its surroundings.



The design responds to the complex history of Koreans in Japan, moving beyond past discrimination and isolation. The new school embodies a sense of openness, turning the building into both a learning environment and a public stage for community life.



Stepped Terraces – Expanding the Schoolyard
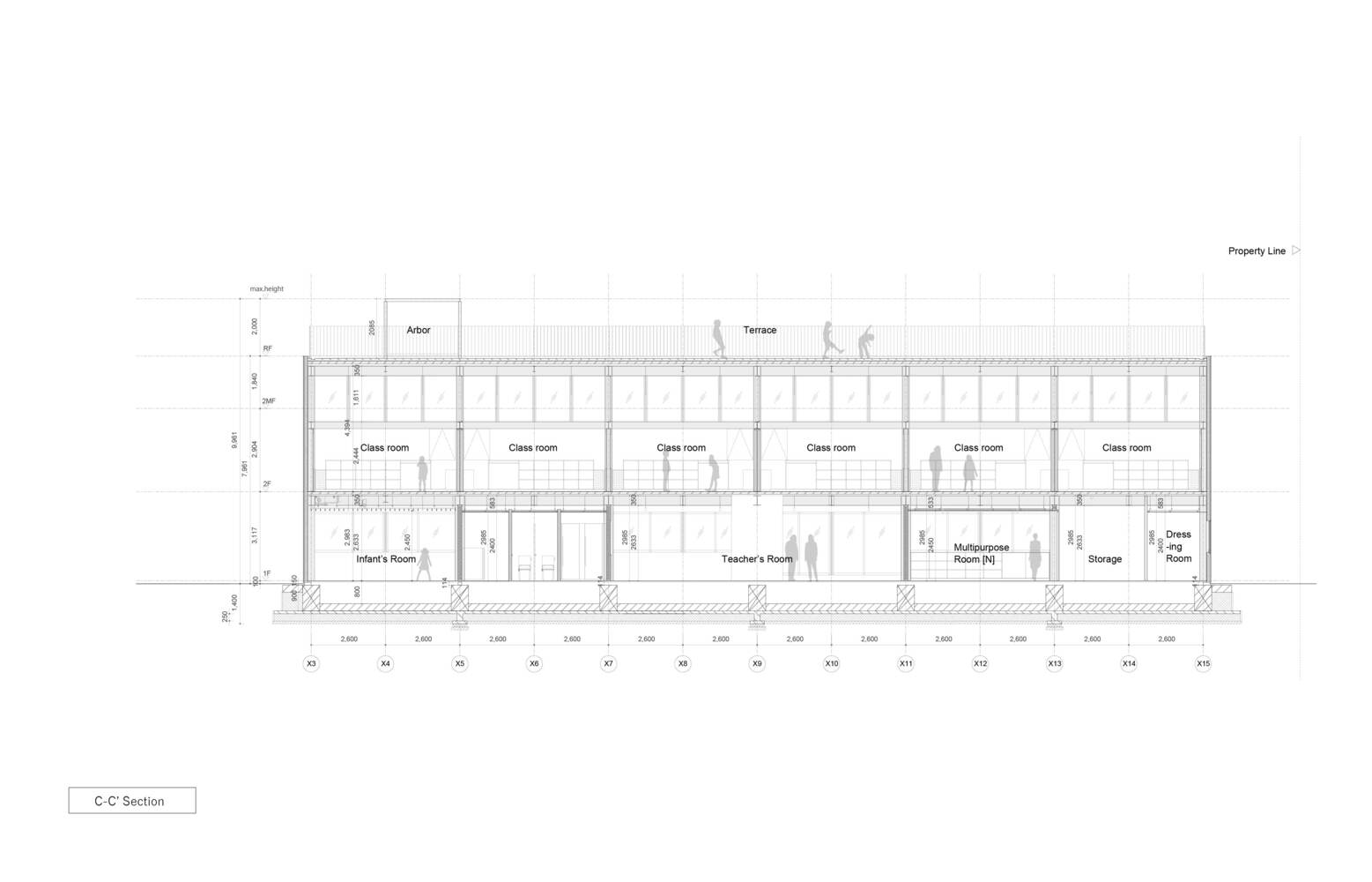
A key design feature of the Kawasaki Korean School Architecture is its three-tiered terrace that extends the schoolyard vertically. Since part of the site was sold to fund the new construction, the architects utilized the vertical dimension to provide additional outdoor space.



These terraces serve as multi-functional areas for play, gatherings, and outdoor learning. Visible from the surrounding streets, they create a lively connection between the children’s activities and the local neighborhood. The terraces become a “stage of the town,” fostering daily visual interactions that strengthen community ties.




Open and Flexible Learning Spaces
The two-story building is structured around flexibility and adaptability. Classrooms are divided by fully openable partitions, allowing spaces to be merged or reconfigured for group activities, events, or larger classes. This approach maximizes the usability of limited space, ensuring that the school can evolve with changing needs.



The interior design emphasizes natural light, ventilation, and visual connections between classrooms, common spaces, and the outdoors, creating a healthy and stimulating environment for young learners.



Structural and Construction Innovation
The school is built on ultra-soft reclaimed land near Kawasaki Port, requiring innovative ground treatment. Rather than expensive piling, the architects implemented a ground replacement method by balancing the building’s weight with excavated soil and lightweight materials such as polystyrene foam. This approach significantly reduced costs while ensuring structural stability.


The building uses a lightweight steel frame with a rigid frame structure, strategically braced for strength while maintaining open and adaptable interiors. This structural system supports the school’s evolving needs over time.




Design as a Cultural and Community Symbol
The design of the Kawasaki Korean School Architecture is deeply symbolic. The tiered terraces and open façade represent transparency, inclusivity, and cultural pride. The building invites the community to engage, bridging the gap between Koreans living in Japan and their neighbors.


The project’s design language is simple yet meaningful, using clean lines, natural materials, and open layouts that reflect both modern architectural aesthetics and the warmth of traditional Korean values.


A New Era for Educational Architecture
The Kawasaki Korean School is not just an educational facility; it is a cultural landmark and a social bridge. Through its innovative use of space, sustainable construction techniques, and emphasis on openness, it sets a new precedent for educational and community architecture in Japan.


All Photographs are works of Kenya Chiba