Lumen Residenc by block722
A duplex apartment in Athens where light, craft, and biophilic design shape a deeply personal vision of contemporary urban living.
Located in the leafy Papagou district of Athens, Lumen Residence is a duplex apartment designed by block722 as both a personal home and a built manifesto of the studio’s architectural philosophy. Occupying the fourth and fifth floors of a newly built residential building, the 230 m² home reimagines contemporary urban living through light, material tactility, and a deeply human-centered approach.


More than a refined residential project, Lumen Residence is the family home of block722’s founders, Katja Margaritoglou and Sotiris Tsergas, making it an intimate exploration of how architecture can shape everyday life.


A Personal Brief, A Precise Response
When designing their “forever home,” the architects sought a space that felt inherently familiar yet unmistakably bespoke—one that embodied their values of organic luxury, craft, and connection to nature. Remaining in Papagou was essential, a neighborhood shaped by 20th-century modernism and the International Style, yet softened by greenery and generous light.


Their search led to a south-facing corner plot backing onto wooded land. Working alongside local developer Thekla Construction, block722 designed a boutique apartment building of five units, reserving the top two levels for their own residence. This dual role—architects of both the building and the interior—allowed for an unusually cohesive architectural outcome.

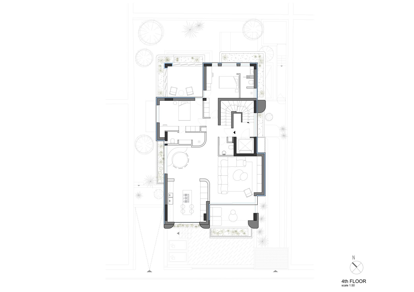
A House in the Sky
Although part of a multi-unit structure, Lumen Residence feels closer to a detached home than a typical apartment. Generous outdoor spaces, layered interiors, and carefully framed views dissolve the boundaries between inside and out.

The lower level accommodates two bedrooms and an expansive open-plan living area, where subtle changes in furniture, lighting, and partitions define zones for cooking, dining, and relaxation without fragmenting the space. Upstairs, the primary suite opens onto a planted roof terrace that includes a swimming pool, timber deck, and even a half-size basketball court—an urban sanctuary elevated above the city.


Light as an Organizing Principle
As its name suggests, light plays a central role in shaping the residence. Large openings ensure that every room maintains a visual connection to greenery, while sunlight animates the interior throughout the day, aligning domestic rhythms with natural circadian cycles.


The architectural composition emphasizes openness and flow, allowing light to move freely while maintaining intimacy through layered spatial sequences.

Materiality and Organic Luxury
The interior palette reflects block722’s signature approach: materials chosen not for polish, but for how they age. Marble, travertino rosso, textured render, ceramic tiles, oiled timber floors, and natural wood surfaces create a tactile environment that celebrates patina and imperfection.


Much of the furniture—both built-in and freestanding—was custom-designed by the studio, crafted in collaboration with local artisans. These elements anchor the home in place, reinforcing the connection between architecture, making, and daily use.

Biophilia and Wellbeing
Biophilic principles underpin every aspect of the design. From planted terraces and framed views of trees to natural materials and flexible social spaces, the home supports both physical comfort and emotional wellbeing.


Rather than imposing a rigid lifestyle, the layout adapts to the evolving needs of a family of four, offering spaces for togetherness, retreat, work, and rest—each defined by atmosphere rather than walls.


Architecture as Lived Experience
Lumen Residence is both a deeply personal dwelling and a broader case study in urban living. It demonstrates how density can coexist with generosity, how apartments can feel grounded in nature, and how architectural rigor can produce warmth rather than distance.

The result is a home that feels instantly lived-in, layered with meaning, and attuned to the rhythms of its inhabitants—an architecture shaped as much by emotion and memory as by form.


All the Photographs are works of Ana Santl