Modern Coffee Shop Design: A Case Study of Demer Coffee in Busan
Explore the innovative design of Demer Coffee in Busan, blending modern aesthetics with historical context in a vibrant urban setting.
The charm of modern coffee shop design often lies in its ability to integrate unique architectural elements with functional spaces tailored for social interaction and business activities. A compelling illustration of this is Demer Coffee, located in the historic Jungang-dong area of Busan, South Korea. Designed by 'Design by 83,' this coffee shop showcases how modern design can enhance a local narrative and provide a welcoming space for community interaction.


Historical Context and Inspiration
The Significance of Location
Demer Coffee is situated in front of the iconic 40-Step Stairway in Jungang-dong, a site steeped in the poignant history of the Korean War. This area was once a shantytown where refugees lived and traversed the stairway daily. This historical layer adds depth to the coffee shop's location, making it a modern landmark infused with historical narratives.



Naming and Symbolism
The name 'Demer,' which translates to 'of the sea' in French, reflects Busan's identity as a maritime city. This thematic connection is not only a nod to the local culture but also enhances the coffee shop’s identity, tying it back to its coastal roots and the historical significance of its location.


Architectural Design Elements
Interior Design: Creating a Warm Ambiance
The interior of Demer Coffee is a testament to modern design principles that emphasize warmth and comfort. The use of an ivory color palette, complemented by wooden materials and finishes, crafts an inviting atmosphere. Cool-toned galvanized steel and translucent polycarbonate are used effectively to hint at the maritime theme, while blue acrylic and furniture echo the colors of the sea.


Unique Layout Challenges
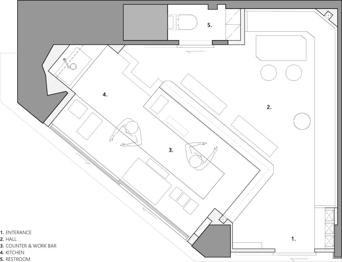
The trapezoid-shaped layout of Demer Coffee presented unique design challenges. The architects utilized glass in the diagonal sections to maintain a seamless connection with the outdoor environment, positioning key functional areas like the bar within these sections. This strategic use of space ensures that the coffee shop remains connected to its urban surroundings while optimizing interior flow.


Exterior Design: Engaging with the Public
The exterior design of Demer Coffee aims to project expertise and approachability. A prominently placed coffee machine near large windows encourages interaction between baristas and passersby. At night, signage crafted from translucent polycarbonate lights up in blue, enhancing the shop's visibility and emphasizing its branding.


The Role of Modern Design in Coffee Shops
Demer Coffee by Design by 83 exemplifies how modern coffee shop design can serve as a focal point for both community gathering and architectural interest. By blending historical elements with modern design techniques, the project not only creates a functional space but also contributes to the cultural tapestry of Busan.
The thoughtful integration of design elements in Demer Coffee makes it a prime example of how modern architecture can transform ordinary spaces into extraordinary ones, providing not just a place for enjoying coffee, but a space that resonates with historical and cultural significance.

All the photographs are work of Donggyu Kim