New Taipei City Art Museum by Kris Yao: A Fusion of Nature and Modern Design
An architectural masterpiece blending modern design with nature, the New Taipei City Art Museum redefines the concept of cultural spaces.
The New Taipei City Art Museum, designed by Kris Yao | ARTECH, is a landmark of contemporary architecture located on reclaimed land in New Taipei, Taiwan. The museum, completed in 2023, merges seamlessly with its natural surroundings while celebrating local heritage, creating a unique destination for art and architecture enthusiasts.




A Site Inspired by Nature
Nestled between the Yingge and Dahan Rivers, the site resembles an island amidst flowing streams. The museum draws inspiration from the region’s iconic landscapes, including Guilun Mountain, the Dahan River, and the seasonal reeds that define the area’s charm. The design reflects these elements in its form and materials, making the museum a “modern art destination among the reeds.”



Distinctive Façade Design
The museum’s façade is a visual masterpiece, crafted from sandblasted aluminum tubes and segmented three-color aluminum panels. The staggered arrangement mimics the sway of reeds in the wind, creating a dynamic and ever-changing exterior. This unique architectural language integrates the built structure with the natural environment, evoking the essence of the surrounding landscape.





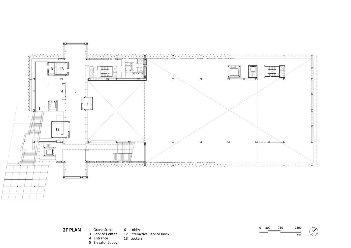
An Open Art Village
Ground-Level Design
At its base, the museum features an open art village, designed as a network of streets and terraces reminiscent of the old streets of Yingge and Sanxia.
- Amenities: Cafes, workshops, restaurants, and art installations encourage public interaction.
- Material Palette: Fair-faced concrete with cedar wood plank imprints contrasts rugged textures, reflecting the erosion patterns of the Dahan River.



Artistic Interaction
Visitors are invited to wander freely, exploring outdoor installations, enjoying the brick-paved pathways, and participating in art activities. The village fosters a sense of community and artistic engagement.



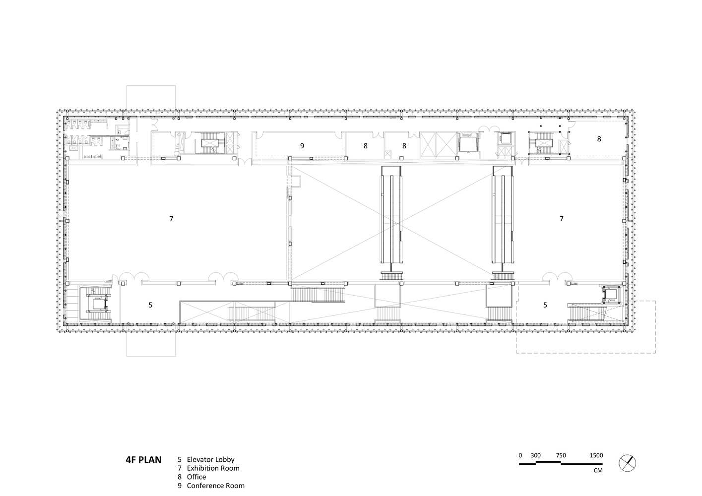
Elevated Art Museum Spaces
Above the art village, the steel-structured museum provides flexible exhibition spaces. The elevated mass, cloaked in the reed-inspired façade, houses:
- General exhibition rooms.
- Large-scale exhibition halls.
- International display spaces.
- Themed exhibition areas.
A grand staircase connects visitors to the second-floor lobby, leading to these spaces. The rooftop garden restaurant offers panoramic views of the riverscape, further enhancing the visitor experience.



Integration of Landscape and Architecture
Landscape Bridge
The weathering steel bridge at the museum entrance harmonizes with the natural setting, symbolizing a seamless transition between nature and the built environment.


Sustainable Design
The museum’s thoughtful integration of local materials and contextual design underscores its commitment to sustainability. From the cedar-textured concrete walls to the weathering steel, the materials evolve with time, mirroring the museum’s dynamic relationship with its environment.

The New Taipei City Art Museum by Kris Yao | ARTECH is a modern architectural marvel that beautifully merges art, culture, and nature. Its innovative design captures the essence of its surroundings, creating a space where art thrives in harmony with the environment.

All Photographs are work of Iwan Baan, Shephotoerd Co., Shawn Liu Studio
Popular Articles
Popular articles from the community
Inverted Architecture Installation by Studio Link-Arc: Exploring the Intersection of Architecture and Living Organisms
Inverted Architecture Installation by Studio Link-Arc blends mycelium, sustainability, inverted design, ecological cycles, and urban adaptive architecture in Shenzhen.
Alton Cliff House: A Harmonious Retreat by f2a Architecture in Lake Country, Canada
Alton Cliff House blends corten steel, prefabrication, and sustainable design, creating a luxurious, energy-efficient retreat perched on Canadian cliffs.
Gads Hill Early Learning Center by JGMA: Adaptive Reuse Shaping Community-Focused Educational Architecture
Adaptive reuse transforms fragmented structure into vibrant early learning center with playful façade, natural light, and community-focused sustainable design.
Similar Reads
You might also enjoy these articles
Free Architecture Competitions You Can Enter Right Now
No entry fees, real prizes. Here are the best free architecture competitions open for submissions in 2026.
Top 15 Architecture Competitions to Enter in 2026
From student-friendly idea competitions to prestigious international awards, here are the best architecture competitions open for entries in 2026. Updated regularly.
DIY & Engineering in Computational Design : Enter the BeeGraphy Design Awards
Showcase Your Creativity with Computational Design and Open Source Projects

Innovative Design Solutions: Award-Winning Projects from Recent Architecture Competitions
Exploring award-winning architectural projects shaping the future of design, sustainability, and community.
Explore Architecture Competitions
Discover active competitions in this discipline
The International Standard for Design Portfolios
The Global Benchmark for Architecture Dissertation Awards
The Global Benchmark for Graduation Excellence
Challenge to reimagine the Iron Throne
Comments (0)
Please login or sign up to add comments
No comments yet. Be the first to comment!