Renovated Warehouse Palermo: Revitalizing a historic warehouse into a modern office and showroom in Palermo, Argentina
Revitalizing Palermo's historic warehouse into a contemporary office and showroom: Ana Smud, Daniel Zelcer, and Camila Jalife's transformative design.
The Niceto Office and Showroom project embarked on the expansion and restoration journey of an aging warehouse nestled in the vibrant Palermo neighborhood of Buenos Aires. This architectural endeavor, led by Ana Smud, Daniel Zelcer, and Camila Jalife, aimed to breathe new life into the space, transforming it into a dynamic hub for offices, warehouses, and exhibition spaces. The team seamlessly blended preservation and innovation, crafting a contemporary haven while paying homage to the property's historical character.








Preserving Heritage: A Tale of Two Buildings
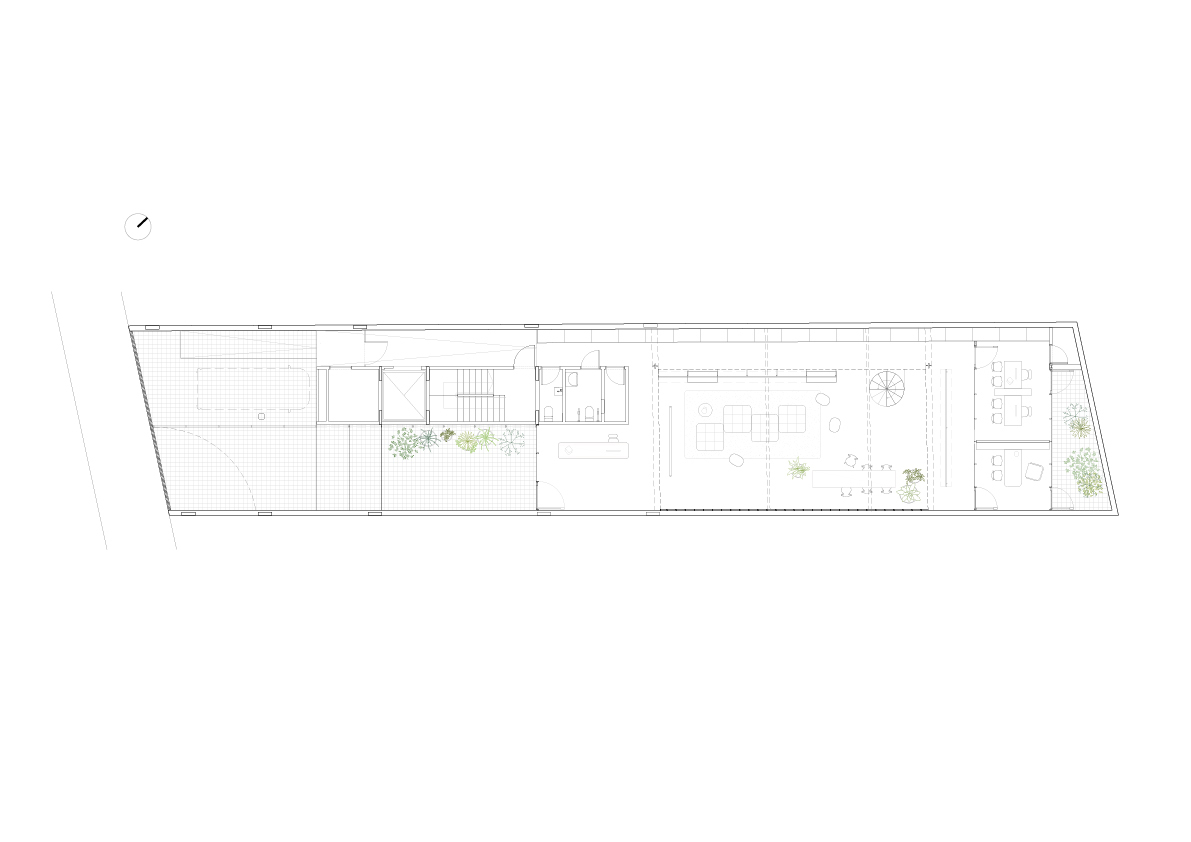
The unique challenge faced by the architects lay in the existing dual structures on the property – a dilapidated sausage-shaped house at the front and a sturdy mechanical workshop warehouse towards the rear. Bridging the two was a courtyard, a vital element that brought natural light and ventilation to both structures. The design decision hinged on preserving this courtyard as the nucleus, fostering a connection between the old and the new.




Design Concept: Courtyards and Creativity
In an unconventional move, the team chose to position the creative area in the existing warehouse, valuing its historical significance. The front side was designated for production areas and brand warehouses. This strategic decision created an intimate atmosphere within the creative spaces, fostering a sense of individuality and supporting the diverse activities of the company.






Natural Light and Connectivity: Central Design Axes
Central to the project's success was the incorporation of natural light and a harmonious coexistence with the exterior. The architects introduced a new courtyard at the back of the property, effectively sandwiching the warehouse between two courtyards. This thoughtful design not only ventilates and illuminates the delineated programs but also provides a seamless connection with the outdoor spaces. Stripping the warehouse's interior elements exposed its bare structure, contributing to the overall aesthetic appeal.













Spacious Aesthetics: Light Colors and Reflective Surfaces
To enhance the feeling of spaciousness, light colors were meticulously chosen for all spaces. A mirror coating on the dividing wall not only amplifies this perception of openness but also maximizes the infusion of natural light. The architects' attention to detail and commitment to preserving the warehouse's structure while infusing modern elements resulted in a revitalized space that seamlessly blends heritage and contemporary design.




The Niceto Office and Showroom project stands as a testament to the transformative power of architecture. Ana Smud, Daniel Zelcer, and Camila Jalife successfully navigated the delicate balance between preservation and innovation, breathing new life into a historic warehouse. This Palermo gem now serves as a dynamic and harmonious environment, where the past and the present coalesce, creating a space that celebrates Argentina's architectural heritage.
Popular Articles
Popular articles from the community
H&P Architects Stack a Vertical River of Brick and Greenery in Hanoi
A perforated terracotta tower in Dong Anh channels water, light, and air through eight staggered levels of domestic life.
Paco Oria Estudio Rebuilds a 1949 Valencian Town House Around Timber, Terracotta, and a New Interior Patio
In Godella, Spain, a semi-detached house from the postwar era is stripped to its party walls and rebuilt with wood and ceramics.
Studio Gram Unfurls a Concrete Curve Through an Adelaide Queen Anne Villa
In Rose Park, a billowing concrete threshold stitches a century-old house to a sun-chasing pavilion organized around an existing pool.
Architects Group RAUM Stacks Offset White Volumes into a Compact Office Tower in Busan
A 524-square-meter building on a tight corner lot in Haeundae plays with sunlight rights and shifting floor plates to create generous terraces.
Similar Reads
You might also enjoy these articles
BICA Arquitectos Buries a Coastal Home in a Man-Made Dune on Portugal's Tróia Peninsula
A 300-square-meter house of timber, sand mortar, and travertine dissolves into the dune landscape it helped regenerate on the Alentejo coast.
The Ranch Mine Runs a White Pavilion Parallel to a 1970s House in Paradise Valley
A hemlock-lined addition reframes desert living by pulling light, views, and a courtyard pool from an outdated Arizona home.
Architects Group RAUM Stacks Offset White Volumes into a Compact Office Tower in Busan
A 524-square-meter building on a tight corner lot in Haeundae plays with sunlight rights and shifting floor plates to create generous terraces.
Studio Gram Unfurls a Concrete Curve Through an Adelaide Queen Anne Villa
In Rose Park, a billowing concrete threshold stitches a century-old house to a sun-chasing pavilion organized around an existing pool.
Comments (0)
Please login or sign up to add comments
No comments yet. Be the first to comment!