Spelman College Mary Schmidt Campbell Center Studio Gang: A New Gateway for Innovation and the Arts
Spelman College Mary Schmidt Campbell Center by Studio Gang unites arts and STEM, creating a sustainable, collaborative gateway between campus and community.
The Spelman College Mary Schmidt Campbell Center Studio Gang is a groundbreaking new academic building dedicated to fostering innovation across arts and STEM. Designed by the internationally recognized architectural practice Studio Gang, led by Jeanne Gang, the 82,500-square-foot facility is Spelman’s first new academic building in nearly 25 years. More than a physical expansion, the Center redefines the college’s relationship with its surrounding Westside Atlanta community while offering transformative opportunities for students of African descent in fields where they remain underrepresented.




A Vision for Cross-Disciplinary Learning
The Mary Schmidt Campbell Center Studio Gang was conceived as a hub for collaboration and exchange. The building is designed to break down silos between arts and sciences, creating a cross-disciplinary environment that empowers women of African descent to excel as technologists, inventors, entrepreneurs, and artists. Spelman’s leadership describes the project as both a transformative learning space and a statement of commitment to innovation, community, and inclusivity.




Architectural Design and Façade Expression
Defining a new “front porch” for the campus, the Spelman College Mary Schmidt Campbell Center Studio Gang embraces the community with a distinctive façade and welcoming threshold spaces. The ground floor features Flemish bonded brick that recalls Georgia’s red clay soil and references Spelman’s historic architecture, while the upper volumes of sleek metal panels express the contemporary spirit of innovation.



The façade integrates layered brise soleils and screens that bring daylight into the interior while providing shade, reducing glare, and improving energy efficiency. A recessed ground level creates shaded outdoor porches that extend gathering spaces into the public realm, reinforcing the building’s role as a bridge between campus and city.


Spaces for Collaboration and Innovation
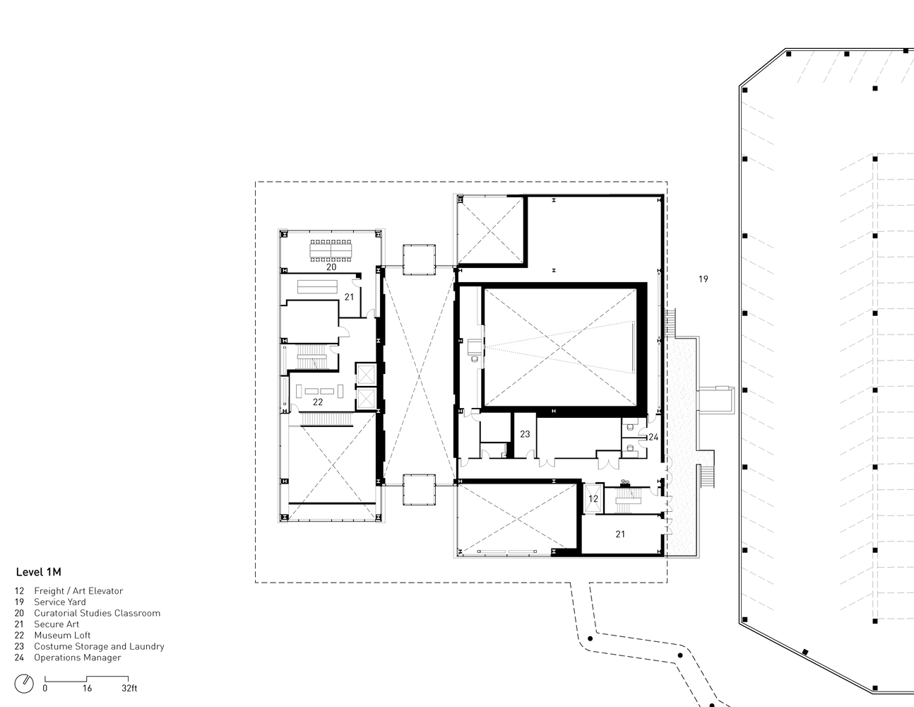
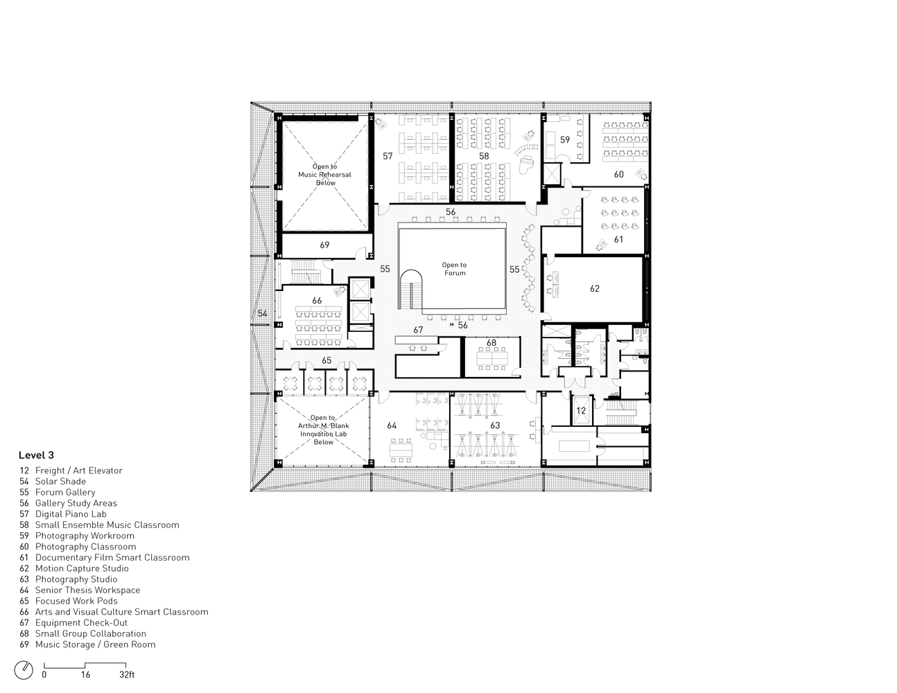
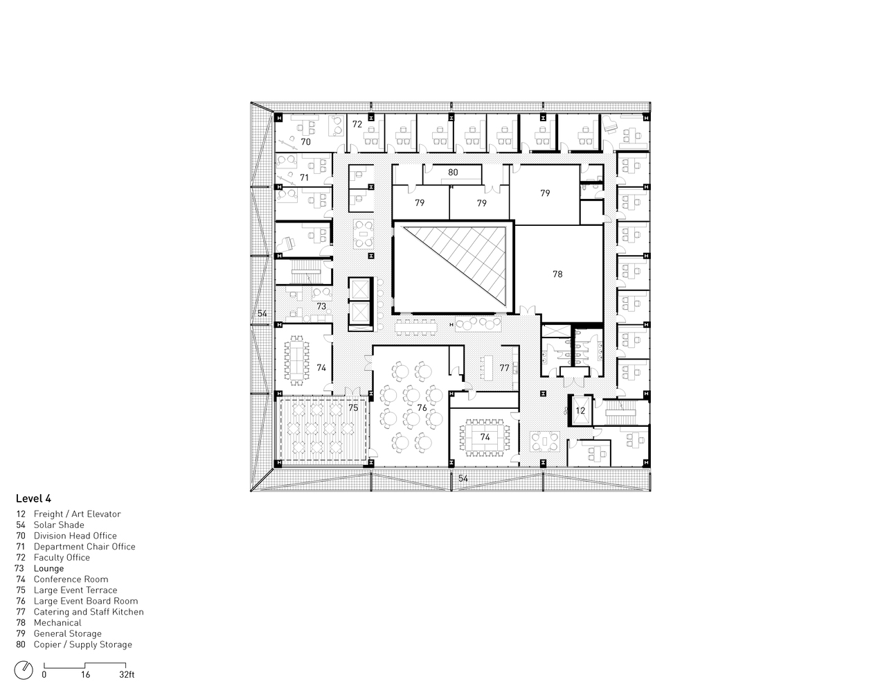
The Center is organized around two primary hubs of collaboration, anchored by a central Forum. This highly visible and flexible space functions as the heart of the building, hosting performances, exhibitions, and interactive gatherings. A skylight above the Forum introduces natural light deep into the interior, symbolizing openness and transparency.


One of the building’s most prominent features is the Arthur M. Blank Innovation Lab, an interdisciplinary maker space located at the southwest corner. This lab offers state-of-the-art tools and expansive glazing, enabling students to experiment, collaborate, and observe. Above, clerestory windows allow connections between quieter classrooms and the lab, promoting cross-pollination of ideas.


Classrooms and workspaces are positioned on the upper levels, where circulation is designed to encourage chance encounters and creative dialogue. An elevated walkway links the Center directly with Spelman’s historic campus, ensuring both accessibility and security.


Environmental Strategies and Sustainability
Sustainability is central to the Mary Schmidt Campbell Center Studio Gang. Passive shading, patterned sunshades, and responsive screens reduce solar heat gain and mechanical loads, increasing the building’s environmental performance. The central skylight provides daylighting without excessive glare, while shaded outdoor porches extend comfort for open-air learning and gathering.

Landscape strategies, including rainwater swales and soft gardens, manage stormwater on-site while enhancing ecological resilience. Future rooftop photovoltaic panels will support renewable energy generation, positioning the Center to achieve LEED Silver certification.

A Gateway Between Campus and Community
The Spelman College Mary Schmidt Campbell Center Studio Gang is more than an academic building. It is a new threshold between Spelman’s historic campus and the surrounding Westside community. By offering porches, public spaces, and visual connections, the building strengthens community engagement while amplifying Spelman’s mission as a leader in higher education for women of African descent.


The Spelman College Mary Schmidt Campbell Center Studio Gang reimagines academic space for the 21st century. By uniting arts and STEM, embracing sustainability, and opening itself to the community, the building stands as both a symbol of progress and a platform for future innovation. It reflects Spelman’s enduring mission of excellence while positioning the college at the forefront of collaborative and inclusive education.

All Photographs are works of Tom Harris
Popular Articles
Popular articles from the community
Free Architecture Competitions You Can Enter Right Now
No entry fees, real prizes. Here are the best free architecture competitions open for submissions in 2026.
Solar Steam: A Climate-Responsive Architecture That Redefines the Monument
A climate-responsive memorial architecture that transforms heat, decay, and time into a living system reflecting humanity’s ecological impact.
Alton Cliff House: A Harmonious Retreat by f2a Architecture in Lake Country, Canada
Alton Cliff House blends corten steel, prefabrication, and sustainable design, creating a luxurious, energy-efficient retreat perched on Canadian cliffs.
Inverted Architecture Installation by Studio Link-Arc: Exploring the Intersection of Architecture and Living Organisms
Inverted Architecture Installation by Studio Link-Arc blends mycelium, sustainability, inverted design, ecological cycles, and urban adaptive architecture in Shenzhen.
Similar Reads
You might also enjoy these articles
Free Architecture Competitions You Can Enter Right Now
No entry fees, real prizes. Here are the best free architecture competitions open for submissions in 2026.
Top 15 Architecture Competitions to Enter in 2026
From student-friendly idea competitions to prestigious international awards, here are the best architecture competitions open for entries in 2026. Updated regularly.
DIY & Engineering in Computational Design : Enter the BeeGraphy Design Awards
Showcase Your Creativity with Computational Design and Open Source Projects

Innovative Design Solutions: Award-Winning Projects from Recent Architecture Competitions
Exploring award-winning architectural projects shaping the future of design, sustainability, and community.
Explore Architecture Competitions
Discover active competitions in this discipline
The International Standard for Design Portfolios
The Global Benchmark for Architecture Dissertation Awards
The Global Benchmark for Graduation Excellence
Challenge to reimagine the Iron Throne
Comments (0)
Please login or sign up to add comments
No comments yet. Be the first to comment!