URA Store by InsideOut: A Minimalist Concept Shop Blurring Boundaries
URA Store in Tokyo is a minimalist concept shop blending architecture and fashion, featuring mirrored surfaces, glass partitions, and sustainable design.
Located in the heart of Harajuku, Tokyo, URA Store is a cutting-edge concept shop designed by InsideOut for renowned fashion designer Mihara Yasuhiro. The store embodies a unique architectural philosophy that challenges conventional retail design by seamlessly merging interior and exterior spaces.

A Vision Rooted in Sustainability and Innovation
Derived from the Japanese word "URA," meaning "reverse," "behind," or "opposite," the URA Store reflects a multidimensional approach to sustainability and social responsibility. The boutique offers an experimental space where fashion and architecture converge to create a thought-provoking retail experience.
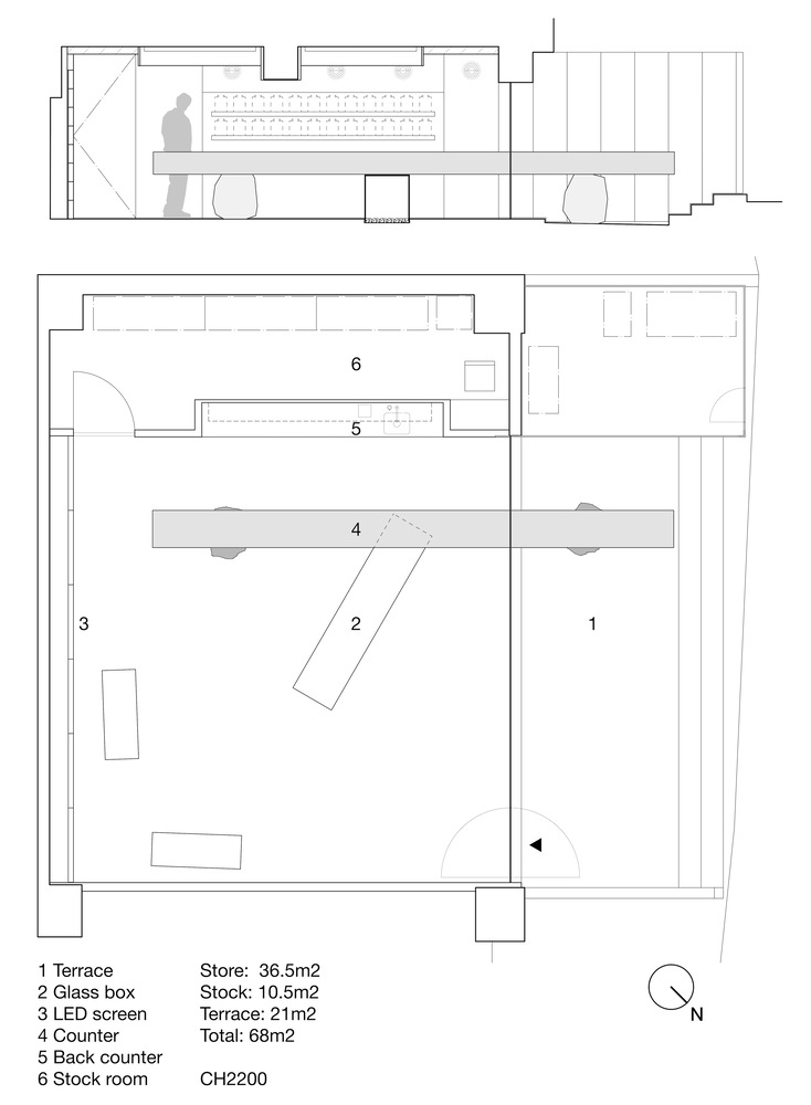
Spanning just 47 square meters, the store is nestled within a quiet, semi-basement plot in Shibuya City. The compact space is designed with a striking combination of mirrored surfaces, glass partitions, and stone elements, creating a dialogue between structure and reflection. The architectural composition is defined by a prominent mirrored rectangle balanced atop two stone blocks, extending beyond the store’s interior to connect with the urban environment outside.

Design Elements: A Play of Surfaces, Reflections, and Transparency
The store’s design weakens the boundary between inside and outside, creating a fluid transition between the retail space and the adjacent residential site. The use of full LED screens, high-contrast materials, and unexpected voids transforms the space into an artistic installation rather than a traditional commercial setting. The mirrored rectangle, seemingly suspended, serves as a focal point—enhancing both visual depth and spatial ambiguity.
Material selection plays a crucial role in reinforcing the store’s unconventional aesthetic. The project features premium materials sourced from leading manufacturers, including ENDO Lighting Corporation, KMEW, Kindred, Komatsu Stone, Seiho, Union, Vola, one by one, and Refojoule. The interior lighting, meticulously curated by HIBIKI Inc., complements the reflective surfaces, intensifying the interplay of light and shadow.

Structural and Construction Details
The execution of URA Store’s design required precision engineering and collaboration with expert craftsmen. The store’s stonework was carried out by Takebayashi Stonemason, while Ishimaru Co., Ltd. handled the overall construction. Mihoya Glass, the glass contractor, ensured seamless integration of reflective panels, enhancing the illusion of continuity between indoor and outdoor environments.
A key structural element—the mirrored rectangular volume—was secured using anchor bolts attached to the stone surface, with its edges seamlessly sealed to the glass. This detailing creates a visual effect that suggests the mirrored element continues uninterrupted through the glass, reinforcing the concept of spatial extension.

Redefining Retail Spaces: An Experimental Approach
Unlike conventional retail stores, URA Store does not conform to standard product displays. Instead, the architectural elements themselves become an interactive backdrop, allowing products to exist as "dots" against a dynamic interplay of surfaces and lines. This unconventional approach aligns with Mihara Yasuhiro’s avant-garde fashion philosophy, emphasizing contrast, reflection, and minimalism.
By redefining the boundaries of retail architecture, InsideOut has transformed URA Store into more than just a shopping destination—it is an immersive spatial experience that challenges perceptions and invites curiosity. The result is a visionary retail space where architecture, fashion, and art intersect seamlessly.


All photographs are works of Hiroto Kubo