150 Melides House: A Minimalist Interpretation of Modern Rural House Design in Portugal
150 Melides House blends modern rural house design with regulation-led planning to create a serene home rooted in Portuguese landscape.
Reimagining a Rural Plot Through Architectural Simplicity
Set on a vast plain near Portugal’s Atlantic coastline, 150 Melides House by José Adrião Arquitetos exemplifies refined modern rural house design. Located in the sparsely populated Melides region, the project transforms a modest, agriculturally purposed plot into a serene architectural retreat. Once home to foresters or farmers, the property—Quinta das Oliveiras—comprised poorly built structures typical of rural support functions. The intervention breathes new life into this landscape through a contextual, regulation-informed design strategy that redefines rural living in contemporary architectural terms.


Contextual Constraints Shaping Form
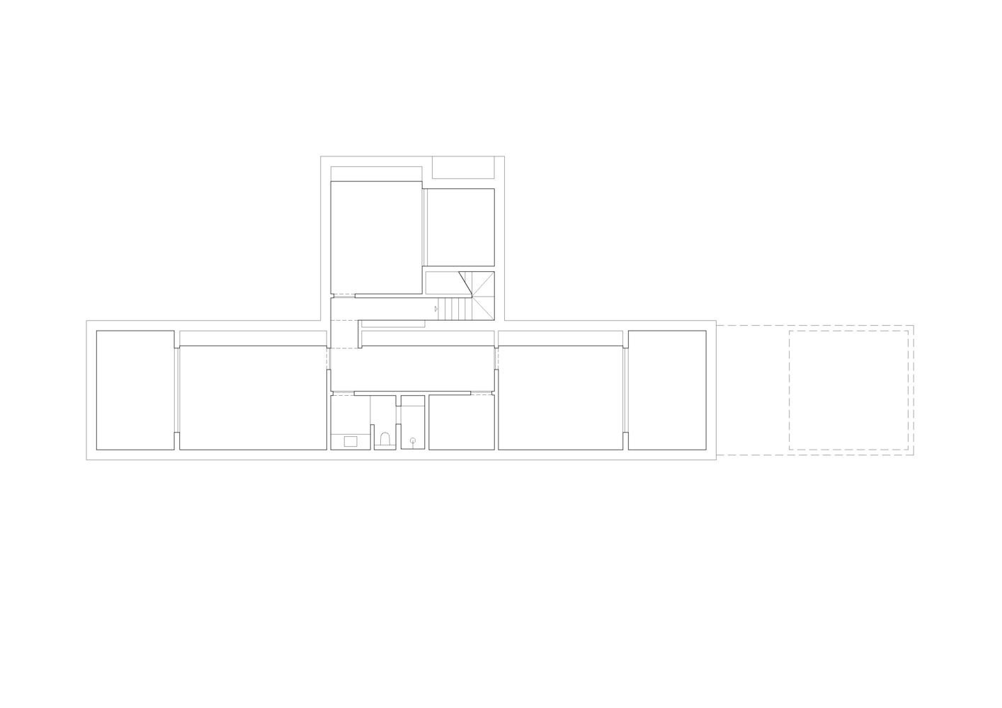
The design emerged as a direct response to Portugal’s strict territorial management rules. While the original structures could be demolished, their footprints had to be preserved in any replacement design. Additionally, the regulations permitted a basement level and a 20% footprint expansion on the upper floor. These legal conditions became formal constraints that informed every spatial decision in the house’s final configuration.

Instead of resisting these limitations, José Adrião Arquitetos embraced them, using them as a framework to craft a dwelling that feels rooted in the land while still evoking the clarity and elegance of modern design.

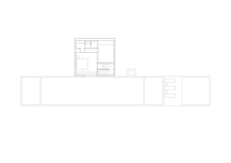
Spatial Composition: Volume, Light, and Landscape
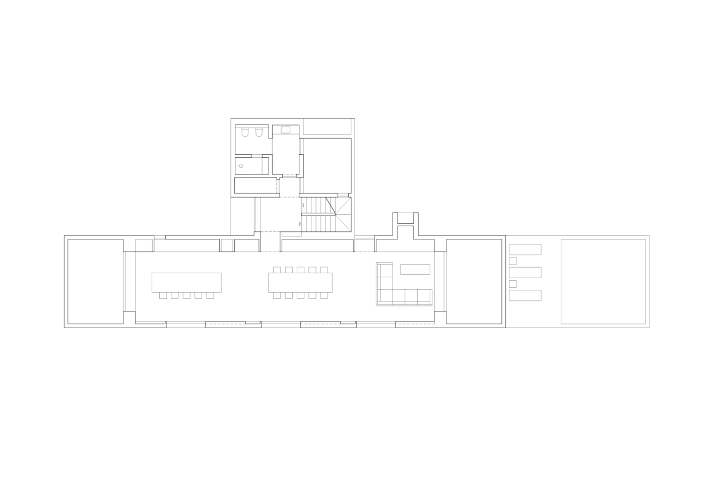
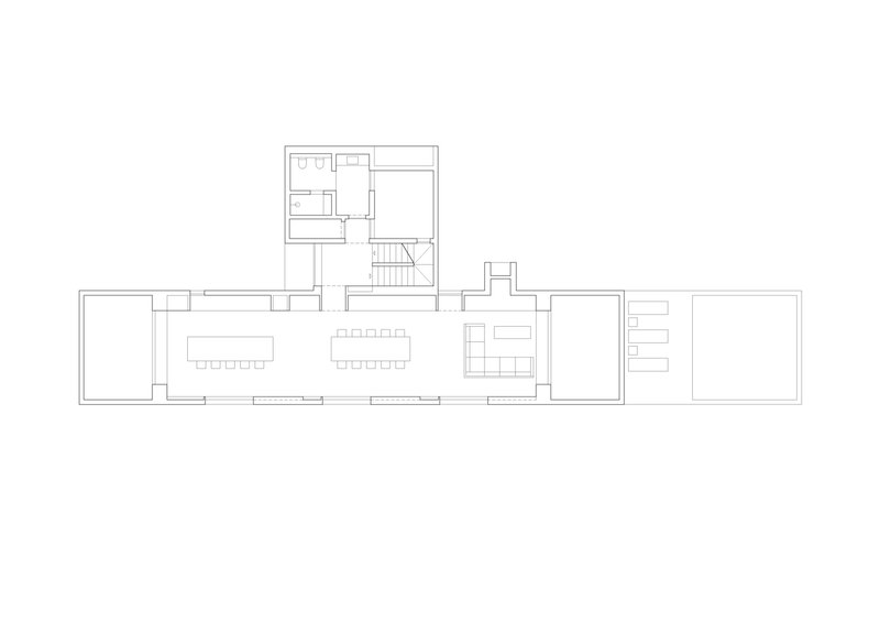
The new residence is composed of two primary volumes. The first, a low and linear form, houses the open-plan living, dining, and kitchen spaces. Its elongated shape establishes a gentle dialogue with the flat terrain, evoking traditional rural construction typologies while maximizing the relationship with the outdoors.

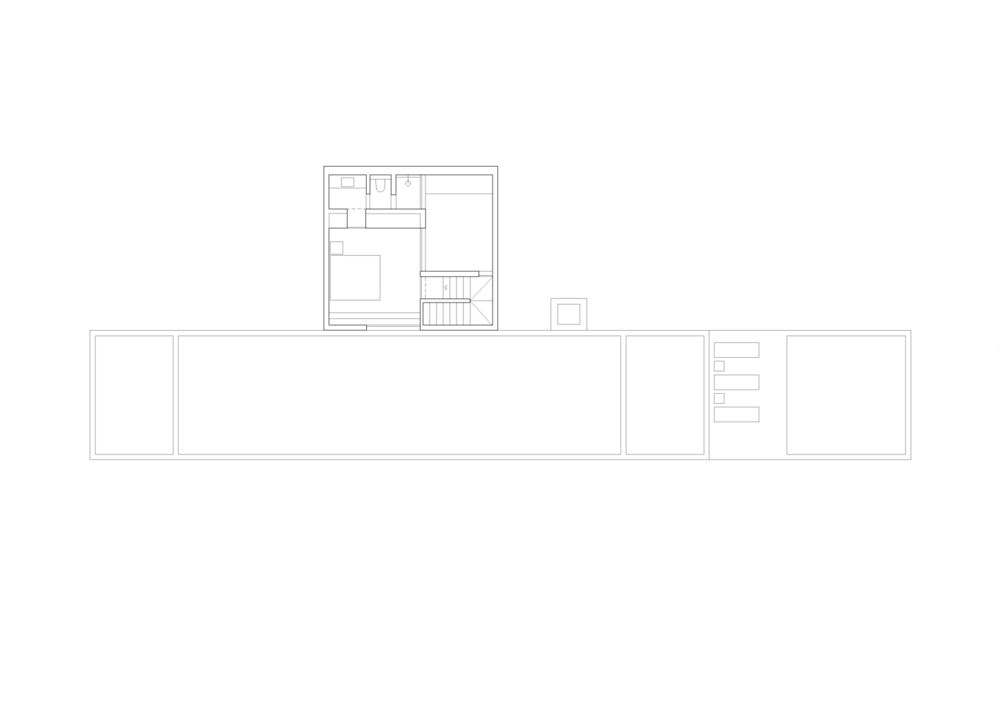
Adjacent to this is a taller, cubic volume. It organizes the vertical circulation and anchors the home with additional program: an upper-level bedroom and a support zone in the basement. The contrasting heights and forms reflect the hierarchy of interior spaces and allow natural light to reach deep into the structure. This volumetric arrangement articulates the dwelling as both a functional and sculptural presence in the landscape.

A Basement Defined by Light and Air
Unusually for rural houses, the basement level is designed not as a dark, subterranean service zone but as a fully integrated living space. It is illuminated and ventilated by three patios strategically placed on the north, south, and east sides. These patios not only serve environmental performance but also introduce moments of spatial surprise—allowing the earth-bound level to feel open and connected.


This integration of the basement enhances the spatial efficiency of the house without disturbing the visual serenity of the landscape. It also demonstrates a nuanced understanding of how to increase usable space while working within rigid regulatory frameworks.


Material Honesty and Environmental Integration
The architectural language of 150 Melides House is defined by simplicity, material honesty, and sensitivity to context. Wood, light-toned plaster, and exposed structural elements foster warmth and tactile intimacy within a restrained palette. Openings are strategically placed to ensure cross-ventilation and to frame views toward the cultivated land and pine forest that surround the house.

The residence does not attempt to impose on the landscape—it emerges from it. This subtle integration affirms its status as a modern rural house that respects the scale, history, and rhythm of its environment.

A New Vision for Rural Portuguese Living
150 Melides House redefines what rural housing can be in contemporary Portugal. It honors the agricultural roots of the site while replacing low-quality structures with an elegant, regulation-aware home that is both sustainable and timeless. Through minimal intervention and maximal clarity, the design achieves spatial comfort, visual beauty, and environmental responsiveness.
This house is a model for architects working within rural zones constrained by preservation and territorial guidelines. It shows that creative rigor and architectural modesty can result in profound spaces for modern living.

All the photographs are works of Francisco Nogueira
Popular Articles
Popular articles from the community
Alton Cliff House: A Harmonious Retreat by f2a Architecture in Lake Country, Canada
Alton Cliff House blends corten steel, prefabrication, and sustainable design, creating a luxurious, energy-efficient retreat perched on Canadian cliffs.
Solar Steam: A Climate-Responsive Architecture That Redefines the Monument
A climate-responsive memorial architecture that transforms heat, decay, and time into a living system reflecting humanity’s ecological impact.
Free Architecture Competitions You Can Enter Right Now
No entry fees, real prizes. Here are the best free architecture competitions open for submissions in 2026.
Similar Reads
You might also enjoy these articles
Free Architecture Competitions You Can Enter Right Now
No entry fees, real prizes. Here are the best free architecture competitions open for submissions in 2026.
Top 15 Architecture Competitions to Enter in 2026
From student-friendly idea competitions to prestigious international awards, here are the best architecture competitions open for entries in 2026. Updated regularly.
DIY & Engineering in Computational Design : Enter the BeeGraphy Design Awards
Showcase Your Creativity with Computational Design and Open Source Projects

Innovative Design Solutions: Award-Winning Projects from Recent Architecture Competitions
Exploring award-winning architectural projects shaping the future of design, sustainability, and community.
Explore Architecture Competitions
Discover active competitions in this discipline
The International Standard for Design Portfolios
The Global Benchmark for Architecture Dissertation Awards
The Global Benchmark for Graduation Excellence
Challenge to reimagine the Iron Throne
Comments (0)
Please login or sign up to add comments
No comments yet. Be the first to comment!