Adaptive Reuse Architecture: Transforming Spaces with Davidson Rafailidis' "Space for Something"
Explore "Space for Something" by Davidson Rafailidis, a project that epitomizes adaptive reuse architecture in Amherst's evolving urban landscape.
In the evolving urban landscape of Amherst, United States, the project "Space for Something" by Davidson Rafailidis stands as a quintessential example of adaptive reuse architecture. This project not only breathes new life into a previously fire-damaged restaurant but also showcases the potential of spaces in transition to adapt and thrive.




The Philosophy Behind "Space for Something"
Embracing the Unfinished
"Space for Something" revels in the concept of architectural liminality—the periods when a space is not 'in use' but still holds potential. This project highlights how architecture isn't just about the end product but also about these in-between states, offering a canvas for future possibilities.



Designing for Flexibility
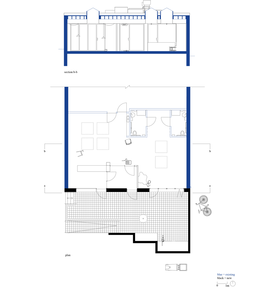
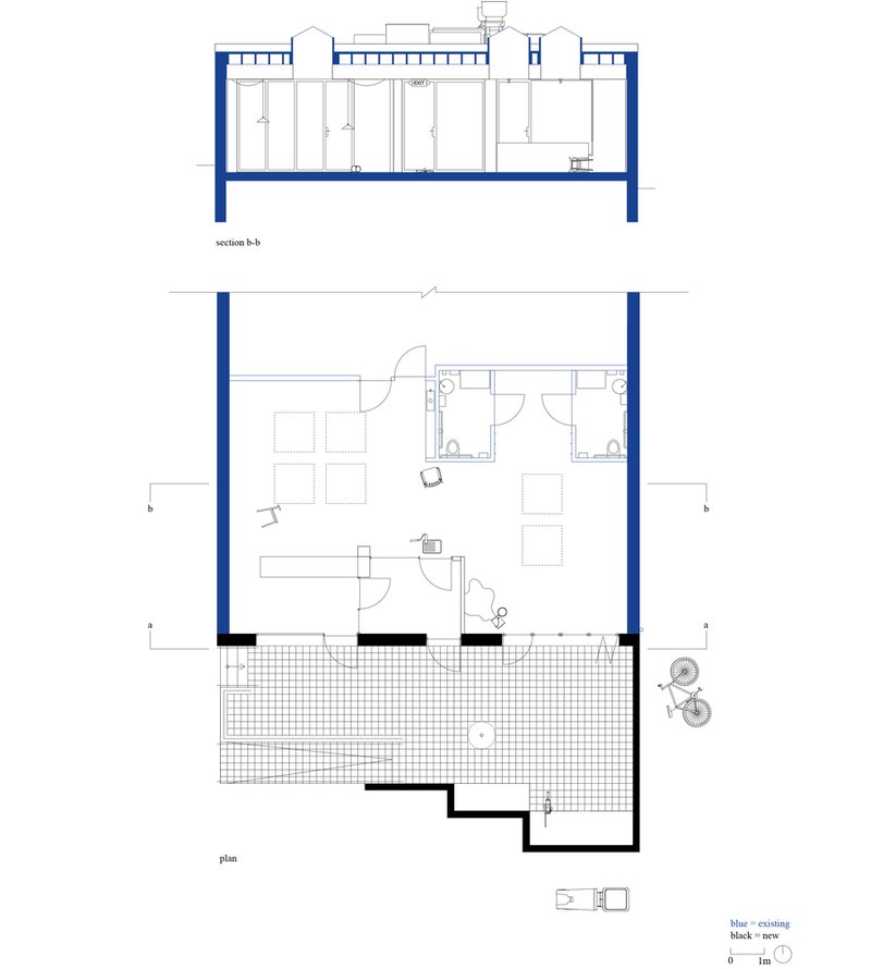
The essence of adaptive reuse is flexibility, and this project is designed to accommodate various future scenarios. This approach is evident in the building's dual-access doors and a folding-sliding façade, which open up the interiors to a new outdoor patio, integrating the space with its urban environment.




Key Architectural Features of "Space for Something"
Structural Integrity and Aesthetic
Following the fire, the integrity of the existing structures was assessed, retaining those elements that remained viable. The front façade was reconstructed to correct previous modifications, employing materials that align with the building’s historical context yet anticipate future needs.



Creating Connections
A significant feature of the renovation is the establishment of a strong connection between the indoor spaces and the outdoor patio. This area, defined by a robust clay block wall, offers a secluded retreat from the urban chaos, mirroring the interior’s potential for peace and utility.



Impact on the Community and Urban Fabric
Enhancing Urban Interaction
"Space for Something" is strategically positioned to engage with the heavily trafficked suburban streetscape. The design incorporates larger openings and public spaces that invite interaction, reflecting a deep understanding of the site’s long-term urban context.




A Catalyst for Change
By transforming a site marked by loss into one of potential, Davidson Rafailidis' project serves as a catalyst for urban renewal. It encourages a reconsideration of other underused or damaged urban spaces, demonstrating how adaptive reuse can invigorate communities.




The Future of Adaptive Reuse Architecture
"Space for Something" exemplifies how adaptive reuse architecture can offer sustainable and innovative solutions to urban development challenges. Projects like this not only preserve the architectural heritage but also inspire new ways to think about space and its role in urban life.



All the photographs are work of Naho Kubota
Popular Articles
Popular articles from the community
Gads Hill Early Learning Center by JGMA: Adaptive Reuse Shaping Community-Focused Educational Architecture
Adaptive reuse transforms fragmented structure into vibrant early learning center with playful façade, natural light, and community-focused sustainable design.
Inverted Architecture Installation by Studio Link-Arc: Exploring the Intersection of Architecture and Living Organisms
Inverted Architecture Installation by Studio Link-Arc blends mycelium, sustainability, inverted design, ecological cycles, and urban adaptive architecture in Shenzhen.
Alton Cliff House: A Harmonious Retreat by f2a Architecture in Lake Country, Canada
Alton Cliff House blends corten steel, prefabrication, and sustainable design, creating a luxurious, energy-efficient retreat perched on Canadian cliffs.
Atelier Macri Concept Store Interior Design by CASE-REAL
Atelier Macri store features a "ko" counter, walnut wood details, cork displays, blending retail, gallery, and seamless customer experiences.
Similar Reads
You might also enjoy these articles
Free Architecture Competitions You Can Enter Right Now
No entry fees, real prizes. Here are the best free architecture competitions open for submissions in 2026.
Top 15 Architecture Competitions to Enter in 2026
From student-friendly idea competitions to prestigious international awards, here are the best architecture competitions open for entries in 2026. Updated regularly.
DIY & Engineering in Computational Design : Enter the BeeGraphy Design Awards
Showcase Your Creativity with Computational Design and Open Source Projects

Innovative Design Solutions: Award-Winning Projects from Recent Architecture Competitions
Exploring award-winning architectural projects shaping the future of design, sustainability, and community.
Explore Architecture Competitions
Discover active competitions in this discipline
The International Standard for Design Portfolios
The Global Benchmark for Architecture Dissertation Awards
The Global Benchmark for Graduation Excellence
Challenge to reimagine the Iron Throne
Comments (0)
Please login or sign up to add comments
No comments yet. Be the first to comment!