Compact Restaurant Design in Belgrade: A Closer Look at MIG by Studio Fluid
This article explores the innovative design of MIG, a compact restaurant in Belgrade by Studio Fluid, focusing on functionality and aesthetics.
In the heart of Belgrade, Serbia, the Margarita & Gelatto (MIG) restaurant presents a masterclass in compact restaurant design. Spearheaded by the innovative architects at Studio Fluid, this 72 m² space transforms fast food dining into an experience of elegance and efficiency. This long-form article delves into the intricacies of MIG’s design, showcasing how limited space can birth boundless creativity.

The Concept Behind MIG
The Challenge of Space
Faced with the challenge of a modest 72 m², Studio Fluid embarked on a journey to redefine compact dining spaces. MIG was envisioned not just as a place for enjoying pizza and gelato but as a beacon of design ingenuity in Belgrade's bustling cityscape.

Architectural Strategy
Maximizing Small Spaces
Studio Fluid's approach was clear from the onset: to maximize the potential of MIG’s limited space while ensuring a seamless flow between the dining and kitchen areas. The architects’ strategy focused on openness and minimalism, avoiding unnecessary details that could clutter the space.


Design Elements That Define MIG
Monochromatic Elegance
A monochromatic color scheme breathes life into MIG, with elements painted in harmonious shades to create an illusion of expansiveness. This simplicity is punctuated by an eclectic mix of materials—stone, terracotta, textiles, wood, metal, and paper—each adding its own texture and character.


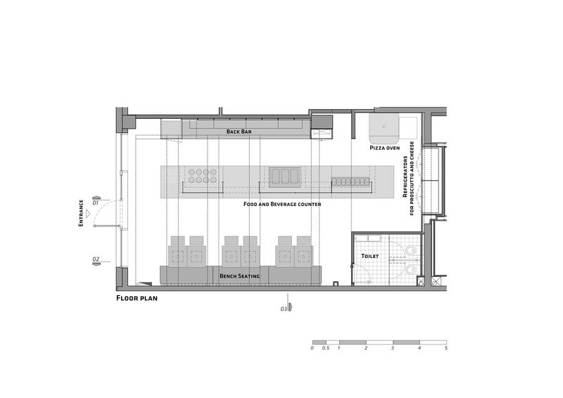
The Multifunctional Counter
At the heart of MIG’s design is the multifunctional counter. This pivotal element serves both as a production area and a welcoming gesture to diners, blurring the lines between the kitchen and the dining space. It stands as a testament to the architects' vision of fluidity and interaction within compact restaurant design.

Spatial Layout
Intelligent Use of Space
The layout of MIG is a study in strategic placement. The dining bench, positioned opposite the counter, maximizes interaction with the kitchen, while the guest toilet is discreetly tucked away. Stainless steel tables and wooden stools offer flexible seating arrangements, embodying the dynamic nature of compact dining.


Aesthetic and Functional Details
Culinary Exhibition
A large glazed refrigerator beside the pizza oven showcases cheeses and prosciuttos, marrying aesthetic appeal with functionality. This element, alongside a bright red retro meat slicer, adds a vibrant touch to the interior, making every corner of MIG a visual delight.
Studio Fluid's MIG restaurant in Belgrade stands as a beacon of compact restaurant design, demonstrating that constraints can indeed fuel creativity. Through meticulous planning and a keen eye for detail, MIG has become more than a dining destination—it’s a showcase of architectural ingenuity in the realm of compact spaces.


Final Thoughts
MIG’s story is one of inspiration for architects and designers alike, proving that even the smallest spaces can be transformed into something spectacular. Studio Fluid’s work in Belgrade’s MIG restaurant sets a new benchmark for compact restaurant design, blending functionality with aesthetic beauty in the heart of Serbia.
This exploration of "Compact Restaurant Design Belgrade" reveals the depth of thought and creativity behind MIG, offering valuable insights for those looking to navigate the challenges of designing in limited spaces.




All the photographs are work of Jovana Rakezic
Popular Articles
Popular articles from the community
An Miên Lumière Cafe by xưởng xép, Ho Chi Minh City, Vietnam
An industrial-inspired café where layered steel and warm light create a dynamic, immersive environment shaped by reflection, depth, and perception.
Solar Steam: A Climate-Responsive Architecture That Redefines the Monument
A climate-responsive memorial architecture that transforms heat, decay, and time into a living system reflecting humanity’s ecological impact.
Flamboyant House by Juliana Camargo + Prumo Projetos
Modern Brazilian house integrating existing tree, pool, and volumes with glass, wood, and transitional spaces blending interior, exterior, and landscape seamlessly.
Louis Malle Cinema: A Limestone Cultural Landmark Revitalizing Community Life in Prayssac
Limestone cinema extension with public forecourt, blending heritage and modern design to create flexible cultural spaces and strengthen community interaction.
Similar Reads
You might also enjoy these articles
Architectural Competition: Create a Luxury Waterfront Community in the UAE!
Mira Developments announces an open competition for the pre-concept design of Mira Coral Bay in Ras Al Khaimah, UAE
Parametric Design: What Can You Learn from the 1st Workshop of Beegraphy?
Discover the Fundamentals and Advanced Techniques of Parametric Design
Feast of flight factory
A new ecological order with sustainable food resources-insects
Beyond Blueprints : How Architecture Presentation Boards Define The Design Narratives?
Unveiling the Art and Strategy Behind Architectural Storytelling
Explore Architecture Competitions
Discover active competitions in this discipline
The International Standard for Design Portfolios
The Global Benchmark for Architecture Dissertation Awards
The Global Benchmark for Graduation Excellence
Challenge to reimagine the Iron Throne
Comments (0)
Please login or sign up to add comments
No comments yet. Be the first to comment!