Craft School Architecture Transformation: Nimeto's Innovative Approach
The article details the innovative transformation of Nimeto, a vocational craft school in Utrecht, emphasizing sustainable design and educational functionality.
The concept of Craft School Architecture Transformation is revolutionizing educational spaces worldwide. In this detailed examination, we explore the transformation of Nimeto, a vocational school in Utrecht, Netherlands. This case study exemplifies how modern design principles can rejuvenate dated educational facilities, ensuring they meet contemporary teaching philosophies and student needs.

Background of Nimeto's Architectural Evolution
MBO Nimeto, dedicated to molding 'creative space makers', faced challenges common to many vocational institutions. Originally comprising two separate schools built in the 1970s—designed for the National Painters School and the Netherlands Butchers School—Nimeto's infrastructure was disjointed and outdated. Recognizing the limitations imposed by fragmented and aged spaces, the school embarked on a Craft School Architecture Transformation, rejecting the demolition trend in favor of revitalization.


Maarten van Kesteren's Visionary Design
Led by Maarten van Kesteren Architecten, the transformation centered on decluttering and unifying the existing structures. Van Kesteren's approach highlights the importance of preserving architectural heritage while adapting to modern educational needs. By making significant architectural interventions, such as creating multi-story open spaces and enhancing natural light, the project illustrates key principles of Craft School Architecture Transformation.


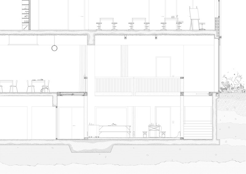
Key Architectural Interventions
- Creating Open Spaces: The removal of parts of the concrete floor to form multi-level voids introduces daylight and fosters community.
- Connecting Buildings: A new colonnade and bridge seamlessly link previously separate structures, fostering a unified educational environment.
- Establishing Communal Areas: The transformation of parking spaces into a green courtyard encourages both school and community engagement.
- Redefining Interior Layouts: The shift from traditional classrooms to open, flexible spaces supports Nimeto's interactive and creative educational model.



Sustainable and Community-Focused Design
Sustainability and community integration stand at the heart of Nimeto's transformation. The project's dedication to sustainable renovation and the involvement of students in the construction process underscore the school's commitment to ecological and educational values. The new design not only serves the school but also enhances the local neighborhood, marking a significant contribution to Craft School Architecture Transformation.


Shaping the Future of Educational Spaces
The Nimeto project sets a precedent for Craft School Architecture Transformation, merging educational needs with architectural innovation. By respecting the past while boldly embracing the future, Nimeto offers a blueprint for revitalizing educational environments worldwide.
In embracing such transformations, schools can create spaces that not only meet the evolving demands of education but also contribute positively to the surrounding community. This case study of Nimeto's transformation serves as a source of inspiration and a guide for future projects in the realm of craft school architecture.



All photographs are work of MWA Hart Nibbrig