Innovative Office Design: The HYBE Headquarters Office by COM + FHHH Friends
Explore the HYBE Headquarters Office, a paradigm of innovative office design by COM + FHHH Friends, showcasing spatial flexibility and modern aesthetics.
In the heart of Yongsan-Gu, South Korea, stands a marvel of modern architecture and interior design – the HYBE Headquarters Office. Designed by the collaborative genius of COM and FHHH Friends, this building sets a new standard for innovative office design. It reflects a deep understanding of the dynamic needs of today's corporate environments.





The Concept of Spatial Flexibility
The Grid System: A Foundation for Flexibility
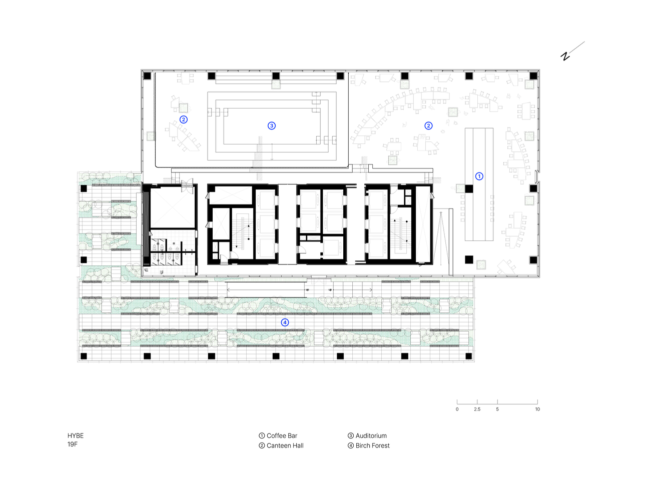
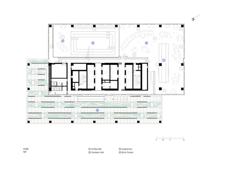
One of the central features of the HYBE Headquarters is its unique grid system. This architectural choice provides a structural basis that supports an adaptable office layout. With a ceiling-based grid that supplies essential infrastructure, spaces within the building can be rearranged swiftly to meet changing needs. This system not only supports the physical movement of modular elements but also fosters a culture of flexibility and innovation.





Adaptable Spaces for Diverse Needs
Each floor is divided into 15 distinct spaces, making up a total of 300 units across the building. This division allows for unparalleled adaptability, accommodating a variety of activities and functions within the company. From quiet work areas to collaborative spaces, the design supports a multitude of uses simultaneously.






Integrating Design and Functionality
Seamless Integration of Technology and Design
Innovative office design at HYBE Headquarters extends beyond spatial configuration to include the seamless integration of technology. Every element, from lighting trays to acoustic panels, is designed to enhance functionality without compromising aesthetics. The finely woven ceilings, equipped with indirect lighting modules, create ambient settings that boost both comfort and productivity.





Furniture Design Aligned with Spatial Needs
COM’s furniture design, embedded within the grid system, reflects a keen attention to detail and a strong emphasis on efficiency. Mobile racks and compact desk combinations are tailored to optimize space utilization and facilitate easy reconfiguration. This approach not only maximizes physical space but also supports the company’s operational flexibility.





The Role of Design in Corporate Culture
Building a Collaborative Environment
The office layout at HYBE Headquarters encourages collaboration and communication. The grid system is not just a physical framework but also a metaphorical tool that facilitates interaction and idea exchange across teams. This design principle helps cultivate a workplace that values transparency, flexibility, and collective problem-solving.





Reflecting Corporate Identity Through Design
HYBE’s innovative office design reflects its corporate identity as a forward-thinking entertainment company. The architecture and interiors embody the company's ethos of continuous evolution and adaptation, much like the dynamic industry in which it operates.


The Future of Office Design
HYBE Headquarters by COM + FHHH Friends is a testament to the transformative potential of innovative office design. It stands as a beacon for future developments in workplace architecture, demonstrating how spaces can adapt to the evolving needs of businesses and their employees. As companies worldwide seek to redefine their work environments, HYBE Headquarters serves as both inspiration and blueprint for what is possible in modern office design.







All the photographs are work of Roh Kyung, Kim Kyoungtae, texture on texture